2022. 3. 10. 14:14ㆍARCHITECTURE/COMMERCIAL & OFFICES

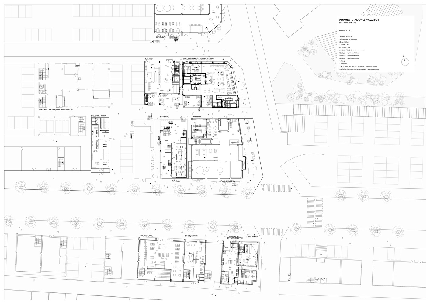
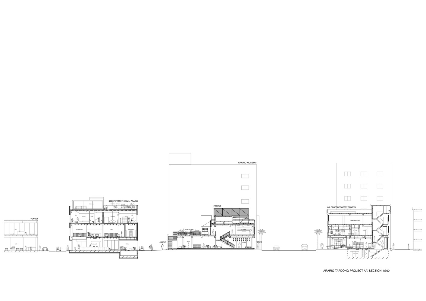
This project is a sequel to the "Invisible Development" project in Tapdong, Jeju. It has been a year and a half since the completion of creamm, and the development area has slightly expanded again. This time, it was the tenant building located across the street south of the ARARIO Museum. It was a conventional three-story reinforced concrete rigid-frame building divided into equal spans, with four tenants in a row.
We renovated the first and second floors of the second span from the east side. The existing building was originally divided into separate sections for each span, with signboards between the first and second floors on the exterior wall, like a typical shopping street. We thought that the current state of the building would prevent us from creating a unique appeal of the " invisible development" that could be only perceived once you go inside.
With the goal of transforming the building into an attractive mixed-use facility in the future, we first removed the stereotypical signage so that the boundaries of each section could not be perceived from the outside. This time we renovated one section of this building, but since the owner owned three sections there, we decided to reorganize them and connect them to the upper part of the building, as well as buildings on the side and back of it to accommodate future changes and developments.
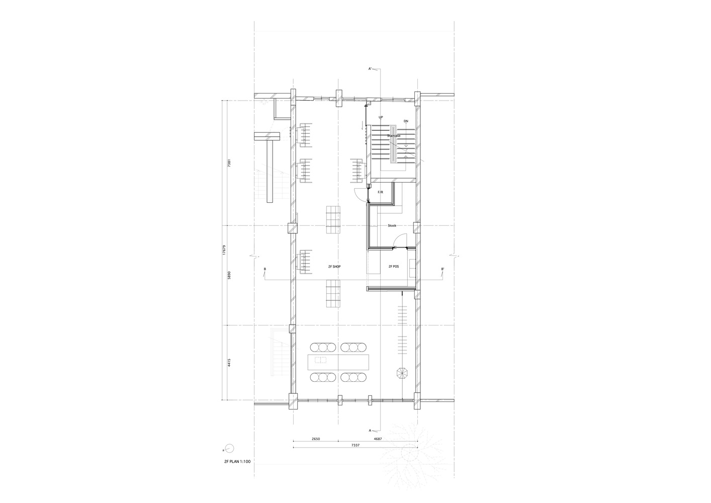
Specifically, our plan was to connect to the neighboring A, B, and C sections on the third floor above, and make an opening that allows easy access to the street on the south side. In addition to rearranging the framework of the building, we designed a concept store for KOLON SPORT on the first and second floors within the designated section.
The store is called SOTSOT REBIRTH, an apparel brand based on the concept of sustainability which sells unique items made from recycled materials. We carried on the concept and made fixtures using marine debris collected near the shores of Jeju Island. The existing infill was removed, and the skeleton was used without modification as much as possible.
Kolon Sport Sotsot Rebirth Shop
Jeju, South Korea
Architects : Schemata Architects
Area : 349㎡
Year : 2021
Photograph : Ju Yeon Lee



























from archdaily