2022. 3. 15. 10:03ㆍARCHITECTURE/PAVILION & INSTALLATION
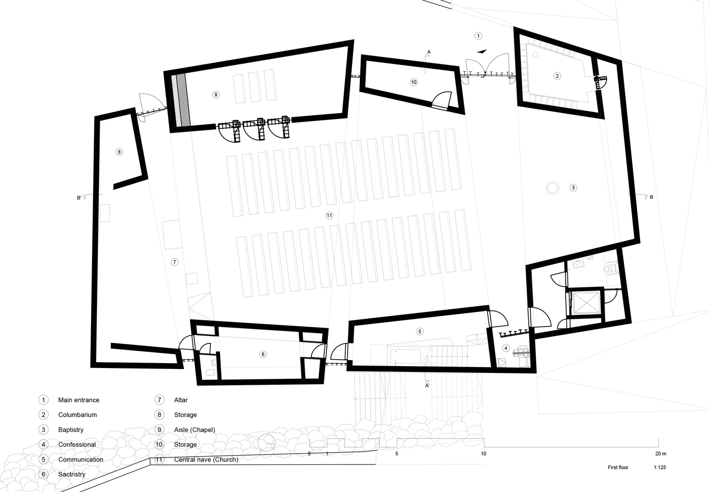
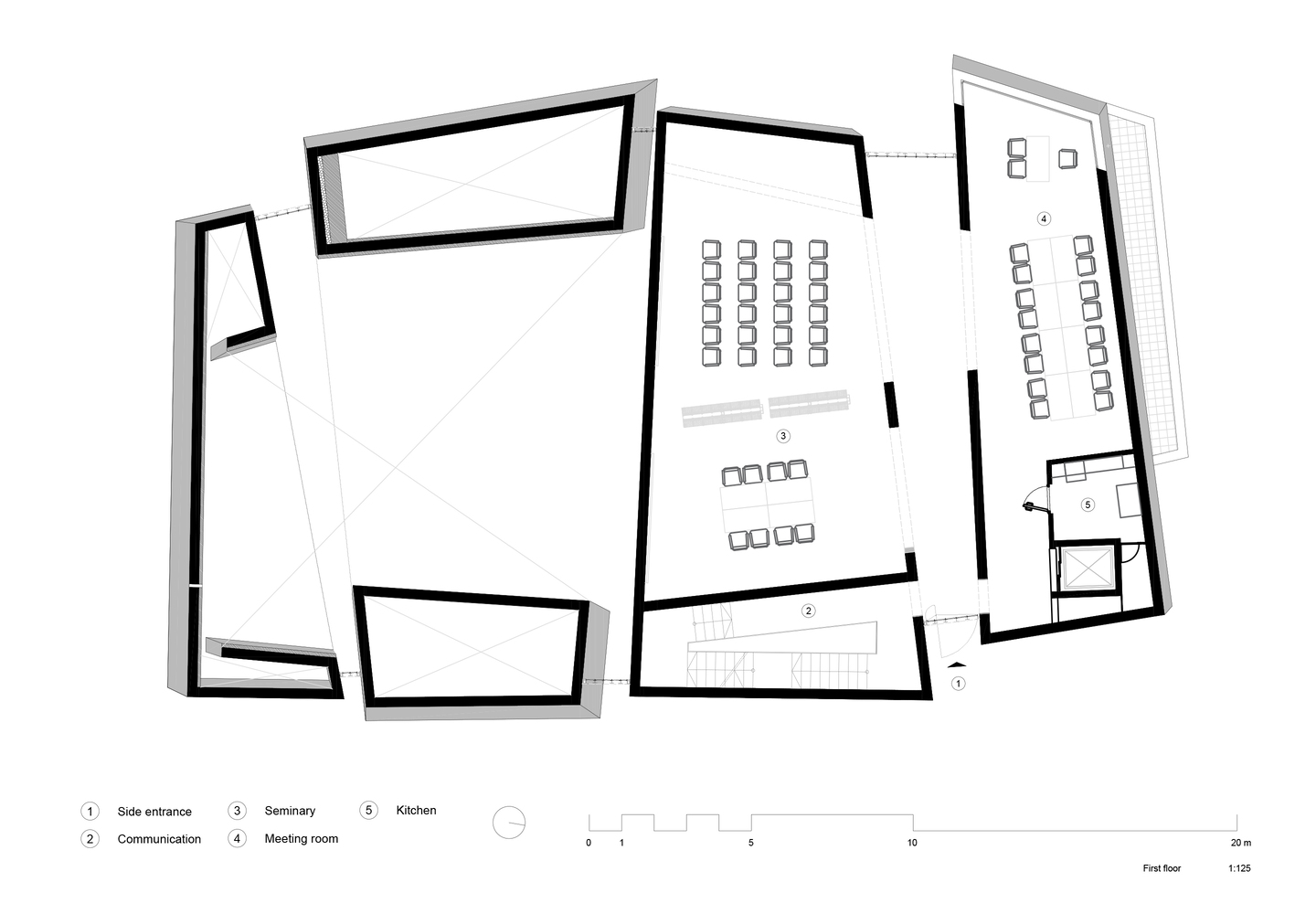
The construction of The Holy Redeemer Church took many years, more than fifteen and it has overlapped with the transformation process of Las Chumberas, which is a neighborhood of 670 homes from the 1970s, organized into 42 blocks, to which were later added shopping centers and industrial buildings. Supported at all times by the Bishopric of Tenerife, initiator of the project, as well as patrons and residents, Menis conceived the Church as a necessary catalyst for the urban and social changes that were taking place in the neighborhood. In his vision, the new building should create a place where there was none, and contribute to giving Las Chumberas an identity of its own, establishing itself as a reference space in a confusing urban fabric. The resulting compound includes a Church, a community center, and a public square surrounded by greenery, that is, a public meeting place that the neighborhood needed.
The building is also an example of collective action since the financing of the works has been carried out through donations from various organizations, many neighbors, and some businessmen committed to the neighborhood where they were born and grew. The uneven rhythm of remittances is in fact what has determined the constructive logic of the project and its subsequent execution: a compound made up of four independent modules plus their surroundings, which has been delivered in phases. The community center, housed in two of the four volumes, was completed in 2008 and has been in use ever since while waiting to raise the necessary funds for the rest of the works.
Low-tech innovation with concrete and Stone. The building, inspired by the geology of the volcanic island, is embedded in the ground and rises with its four massive volumes resembling large restless rocks. The rough texture of the exposed concrete strikes a sharp contrast with the conventional residential context where it goes up. It is as if a geological phenomenon had occurred on the outskirts as if nature were fighting against banality. Its petrous volumes are separated by narrow cracks filled with sculptural structures made of metal and glass, through which daylight enters the building to configure an austere and stark compound, which relinquishes all superfluous elements.
Daylight filters down through the cuts to shape a free-flowing and introverted void and to play an essential role in mass by stressing each of the Christian sacraments. At sunrise, the light comes in through the cross as a cascade of light that fills the space behind the altar to symbolize the entrance to the cave in which Jesus Christ was buried and illuminating the baptismal font, the first light of a Christian. The altar, the confirmation, and the communion receive light at noon through the skylight. Later, a shaft of light falls on the confessional. The strategic layout of the skylights achieves the same effect on unction, matrimony, and priesthood.
The use of concrete as the main material in this building addresses several aspects at the same time: exterior, interior, structure, form, matter, and texture. First of all, it is a common material, accessible locally, which allows the architect to work only with local companies and materials, in accordance with the Km 0 architecture principles to which Menis adheres. Second, the energy efficiency provided by concrete, due to its isotropic nature, is enhanced here by the thermal inertia of the thick solid walls.
Finally, as in his CKK Jordanki Culture, Music and Congress Hall (2015, Poland), or Magma Art and Congress Center (2007, Tenerife), Menis experiments here with the acoustic potential of the concrete and demystifies the common belief that the concrete is acoustically inferior to other materials such as wood. In terms of acoustics, concrete has been used here in two ways: for diffusion, conventional exposed concrete was used, while for absorption, the surface of the exposed concrete previously mixed with light porous volcanic stone (picón) was chipped. The acoustics thus achieved resemble the usual in the opera, suitable for speech and song, ideally designed for a building that combines ecclesiastical and social functions.
Faith & Form International Award for Religious Art and Architecture. While still under construction, the Holy Redeemer Church and Community Centre of Las Chumberas was visited by Barry Bergdoll, then Chief Curator of Architecture at the Museum of Modern Art in New York, who included the project in the MoMA architecture collection. A decade later, the building receives an Honor Award from the Faith & Form International Award for Religious Art and Architecture within the `Religious Architecture: New Facilities´ category in an edition disputed by 92 projects from around the world, of which a total of 16 works have been selected, from United States, Japan, China, Thailand, Rwanda, and Spain. The awards ceremony will take place on the 23rd of June 2022, in Chicago, within AIA’s annual convention.
One of the longest-running architecture awards, the Faith & Form International Award for Religious Art and Architecture has been held annually since 1978 with the aim of honoring the world's best in sacred architecture and liturgical art from all religions. Prizes are awarded in five categories: Religious Architecture, Interior/ Liturgical Design, Sacred Landscape, Sacred Art, and Unbuilt Project. About the Holy Redeemer Church, the jury comments: "This is amazing work. It appears as if blocks of stone have been chiseled and hollowed out to create spiritual spaces in their use of light and texture. It creates intimacy and warmth. The interior surfaces also enhance the acoustics. Structural components are expressive. There is particular attention on acoustics and daylighting".
Chapel in sierra la villa
Santa Cruz de Tenerife, Spain
Architects : Fernando Menis
Area : 1050 ㎡
Year : 2021
Photograph : Patri Cámpora, Simona Rota

































from archdaily
'ARCHITECTURE > PAVILION & INSTALLATION' 카테고리의 다른 글
| 덴마크 나선형 계단 조각전망대[marsk tower in Hjemsted] - Bjarke Ingels Group (0) | 2022.04.01 |
|---|---|
| 페이스타임 설치물[FaceTime Installation] - CLB Architects (0) | 2022.03.30 |
| 스페인 콘크리트 예배당[Chapel in Sierra La Villa] - Sancho Madridejos (0) | 2022.03.14 |
| 1300개 바구니 파빌리온[1300 Recycling Pavilion] - Hyunje Joo (0) | 2022.03.07 |
| 뉴욕 보행로변 회전하는 도서공간 설치물[Storefront Library] - Abruzzo Bodziak Architects (0) | 2022.02.21 |