2022. 5. 24. 13:17ㆍARCHITECTURE/CULTURE
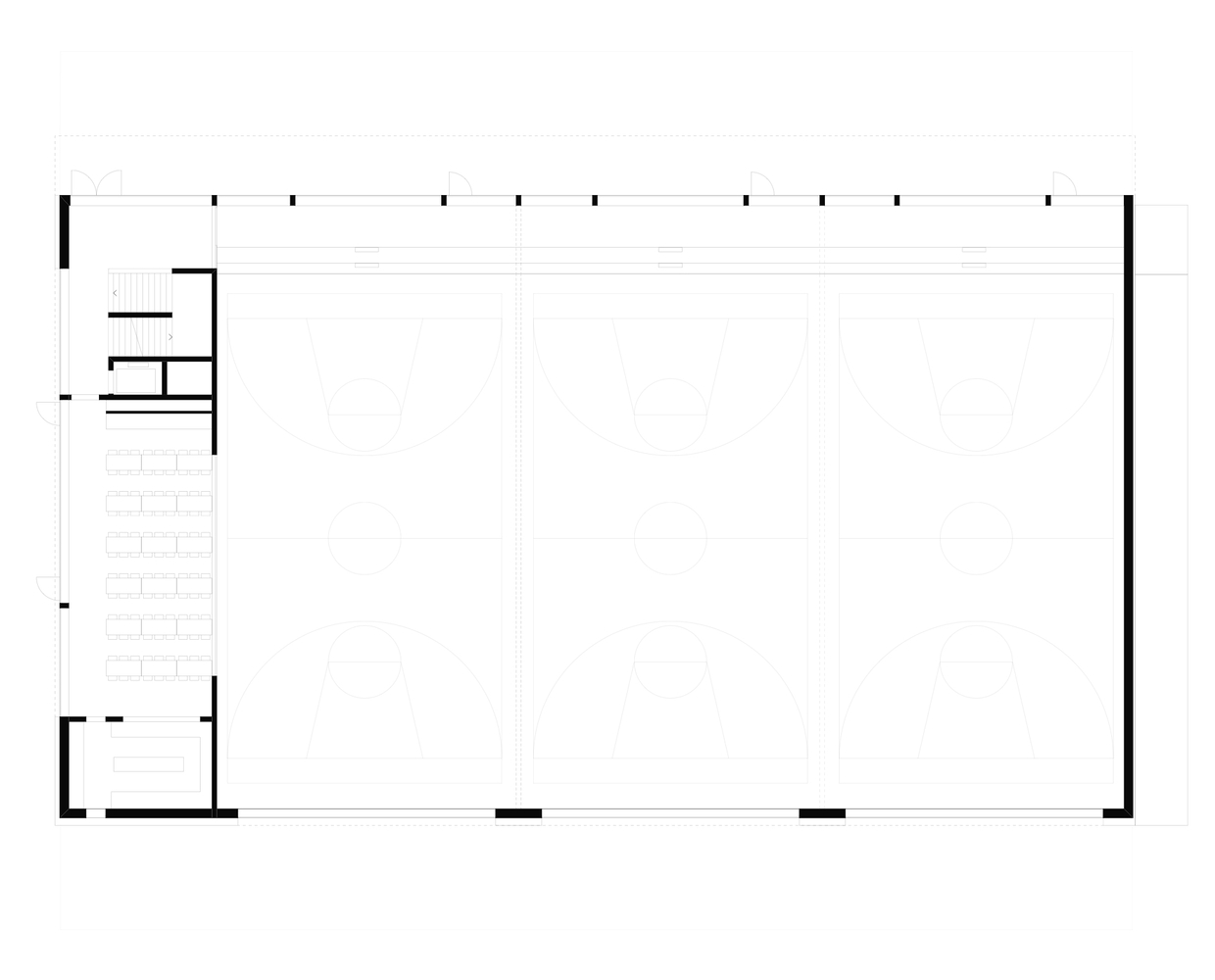
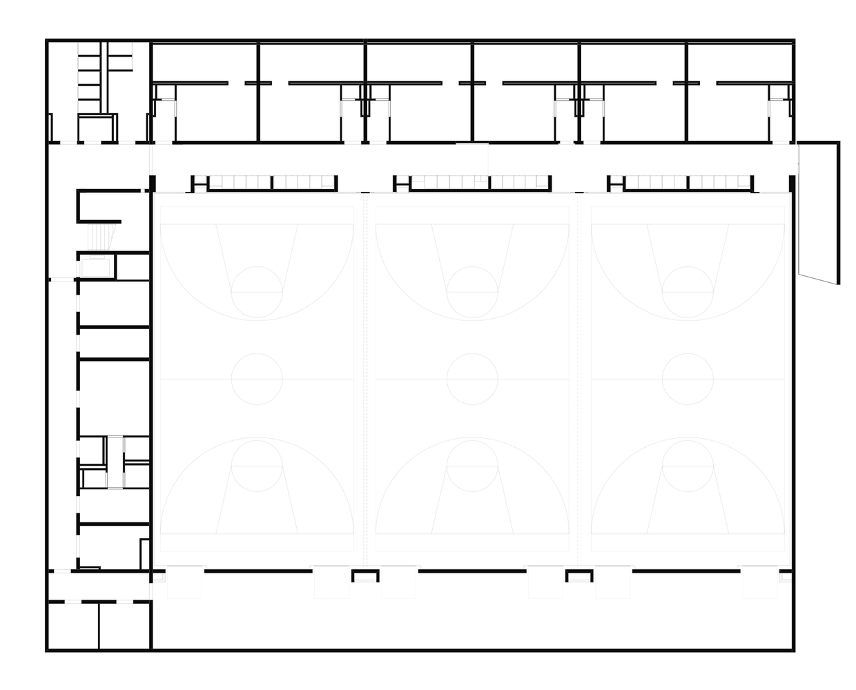
The project "you my roof" proposes clarifying the existing school complex by establishing a triple gym and a school building of 15 classes. Their successive establishments will make it possible to define a central courtyard for all. The characteristic shape of the roofs brings coherence to the heterogeneous composition of the existing complex and the neighboring villas.
The covered courtyard defines the unique access to the building and is part of the extension of the soft mobility of the project: a game of transparency takes place between the covered courtyard area, the interior gallery tier, and the 3 gyms. This volume, half visible, half under "sand", fits into the scale of this district. Lè Tapa-Sabllia, a nickname of the commune's inhabitants, generated the name of the room: the sablliane.
Indeed, the characteristic of the natural sandy terrain is highlighted by the "sandbox" effect of the buried volume. The exterior materiality with a perforated folded sheet sets the long facades in motion. Its soft "green-white" color refers to the elements of the surrounding landscape structures: the great Cariçaie, the Menthue, the hilly landscape of the rock of La Baume as well as the agricultural landscape.
The wooden structure of the roof rests on the exposed concrete walls. The gym welcomes natural light with soft, light surfaces. The false acoustic ceiling in white lacquered perforated MDF panels and the wooden acoustic panels at the level of the "sandbox" contribute to the sound quality for sports practice. The sand-colored polyurethane coating of the sports floor optimizes the catch of natural light.
La Sablliane School
YVONAND, SWITZERLAND
Architects : transversal architectes
Area : 2,820㎡
Year : 2022
Photographs : Bjorn Rapp






















from archdaily