2022. 5. 31. 12:57ㆍARCHITECTURE/COMMERCIAL & OFFICES
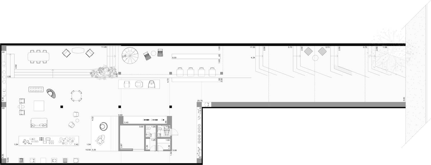
The starting point of the project was the rehabilitation of an old shed in Vila Madalena seeking to maintain its language and structure, contrasting it with specific and precise interventions. The project proposes a neutral architecture and interior that will function as a background to receive a variety of products with different colors, functions, and dimensions.
A large, flexible space brings fluidity from the sidewalk to the store. The recessed entrance, almost a continuity of the sidewalk, makes the path inviting and receptive, being developed through stairs and an access ramp that lead users to the store and transforms the path itself into platforms and spaces of use. The path runs through a canopy that marks the access and creates a shadow space, which lowers the user's view and, after crossing it, expands and opens again, revealing the structure of the shed and a monolithic block that cuts the roof. This transition between full and empty spaces and the very relationship of the spaces with light creates an intuitive dynamic that leads to the interior of the store.
The interventions happen through the simplicity of the walls and volumes, as well as all the infrastructures that are exposed and present themselves in white and start to highlight the materiality and texture both of the old structure and the points of intervention of the project. The idea is to have a project that is welcoming to the various uses proposed by the brand, and at the same time works as a space that highlights the products, bringing a new experience and relationship with the design, as the brand itself proposes from its very beginning.
Boobam store
Architects : Felipe Hess Arquitetos
Area : 550 ㎡
Year : 2022
Photographs : André Klotz





















from archdaily