2022. 11. 15. 17:13ㆍARCHITECTURE/COMMERCIAL & OFFICES
A wavy precast concrete facade formed by an onsite concrete mold for a new restaurant designed by ASWA for Khao Niao restaurant + Onda cafe around Ari, Bangkok, Thailand, surrounded by residential buildings with some restaurants and cafes.
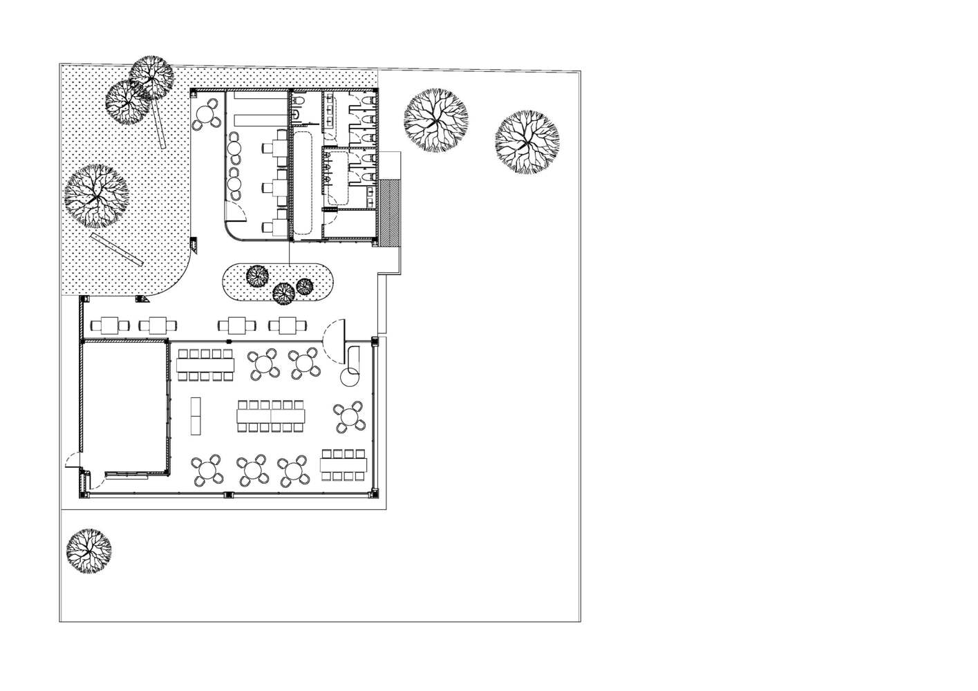
The L-shaped one-story restaurant with approximately 290 square meters tends to hide a private courtyard for a peaceful space from the street. The Khao Niao restaurant + Onda cafe aims to be a new node for the high density of its area by creating a new destination in its neighborhood.
The 6-meter height building can be separated into two main parts by L's legs: the main restaurant with the kitchen and the cafe with all service areas, divided by the central semi-indoor courtyard from the main entrance. At the same time, both spaces can celebrate the view of the enclosed courtyard altogether— this courtyard can arrange small events.
Meanwhile, for a cursory glance, the unique facade metaphorically represents the wave-like (Onda means Wave in Italian) all along the building's elevations. As mentioned before, wavy precast concrete is the main material of this project. In a site experiment, the contractor uses a standard corrugated roof tile as the primary mold casting of 1.20 x 2.40 square meters in a modular size.
Then tile modular all together to create a large 6x8 square meters onsite concrete mold on the ground, which operates as a master mold casting to cast all facade panels. Then, the half-circle voids are applied as openings on the facade to scoop out the solidity of concrete, reveal the wooden interior space, and allow the natural light to brighten the space.
Khao Niao Restaurant + Onda Cafe
BANGKOK, THAILAND
Architects : ASWA (Architectural Studio of Work - Aholic)
Area : 290 ㎡
Year : 2022
Photographs : Phuttipan Aswakool






























from archdaily
'ARCHITECTURE > COMMERCIAL & OFFICES' 카테고리의 다른 글
| 지붕 아래의 시장 타이난마켓[Tainan Market] - MVRDV (0) | 2023.03.08 |
|---|---|
| 망원동 망리단길 상가[REIKIS Mangwon Commercial Building] - Studio Stuckyi (0) | 2023.01.04 |
| 보사노바커피 삼척[Bossanova Coffee] - oftn studio (0) | 2022.09.30 |
| 내외부 다양한 이벤트가 있는 사다리꼴의 안경 가게[Jins Park Maebashi] - Yuko Nagayama & Associates (0) | 2022.08.22 |
| 붉은벽돌 이중스킨 상업건물[Seongsu WAVE Commercial Building] - JYA-RCHITECTS (0) | 2022.08.17 |