2025. 3. 17. 14:28ㆍARCHITECTURE/PAVILION & INSTALLATION
방문자 센터 Stones Water Light, 에더제 호수
독일 에더제 호수에 위치한 Stones Water Light 방문자 센터는 지역 주민과 방문객에게 사회적·생태적 지속 가능성의 균형을 조성하는 열린 문화 공간을 제공합니다. 유네스코에 등재된 켈러발트-에더제 국립공원(Kellerwald-Edersee National Park)과 인접한 이 센터는 재생적 사고와 실천을 탐구하는 장소이자, 지역의 풍부한 역사적 유산을 기리는 공간으로 설계되었습니다.
에더제 댐과의 강한 연계성
방문자 센터는 에더제 댐(Edersee Dam)과 깊이 연계되어 있습니다. 이 상징적인 구조물은 지역 사회의 정체성과 밀접한 관계를 맺으며, 가난한 농촌 지역에서 전국적인 관광지로 변화하는 데 중요한 역할을 해왔습니다.
에더제 댐은 단순한 수리 구조물이 아니라, 시대적 변화를 담은 역사적 유산입니다. 제국 시대에 건설된 이후 100년 동안, 제2차 세계대전 중 파괴와 재건을 거쳐 현재는 친환경 에너지 생산의 거점이자 자연과 문화가 조화를 이루는 대표적인 경관 요소로 자리 잡고 있습니다.
건축적 개념: 댐을 가로지르는 상징적 단면
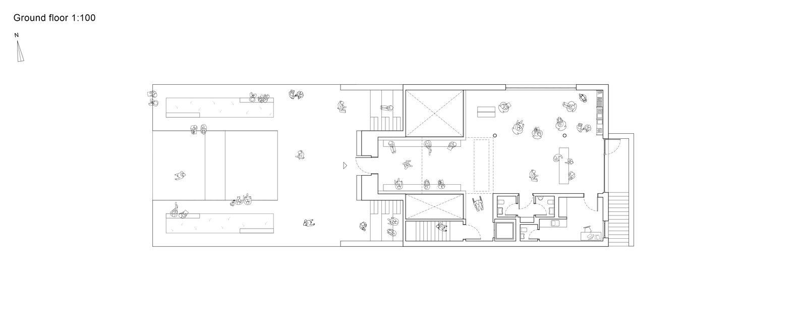
Stones Water Light 방문자 센터의 건축 디자인은 댐을 가로지르는 상징적인 단면(section cut) 개념에서 영감을 받았습니다. 이는 댐의 형태를 반영하면서도 내부의 숨겨진 터널과 수직 동선(shaft) 등의 공간을 드러내는 방식으로 구현되었습니다. 센터는 에더제 마을의 중앙 광장과 댐을 연결하는 물리적·개념적 매개체로서 역사적·문화적 의미를 더욱 강조합니다. 또한, 탑(Tower) 형태의 구조가 주변 지형 위로 솟아오르며, 방문객들에게 호수와 댐의 탁 트인 파노라마 전망을 제공합니다. 특히, 1층 로비의 대형 창문을 통해 댐과의 시각적 연결이 이루어지며, 실내와 외부 환경이 자연스럽게 융합됩니다.
다층적인 방문 경험
방문자 센터는 다층적 경험을 제공하도록 설계되었습니다.
지상층 및 야외 공간은 지역 사회를 위한 개방된 공간으로, 사람들이 모이고 교육과 문화 교류가 이루어지는 장소입니다.
실내 동선은 개방적이며 유기적으로 연결되어 있으며, 방문객들은 정보 및 라운지 공간을 거쳐
지하층의 박물관 전시관으로 자연스럽게 이동하게 됩니다.
지하 전시 공간에서는 몰입형 조명 설치(immersive light installation)를 통해 댐의 생생한 역사를 체험할 수 있도록 구성되어 있습니다.
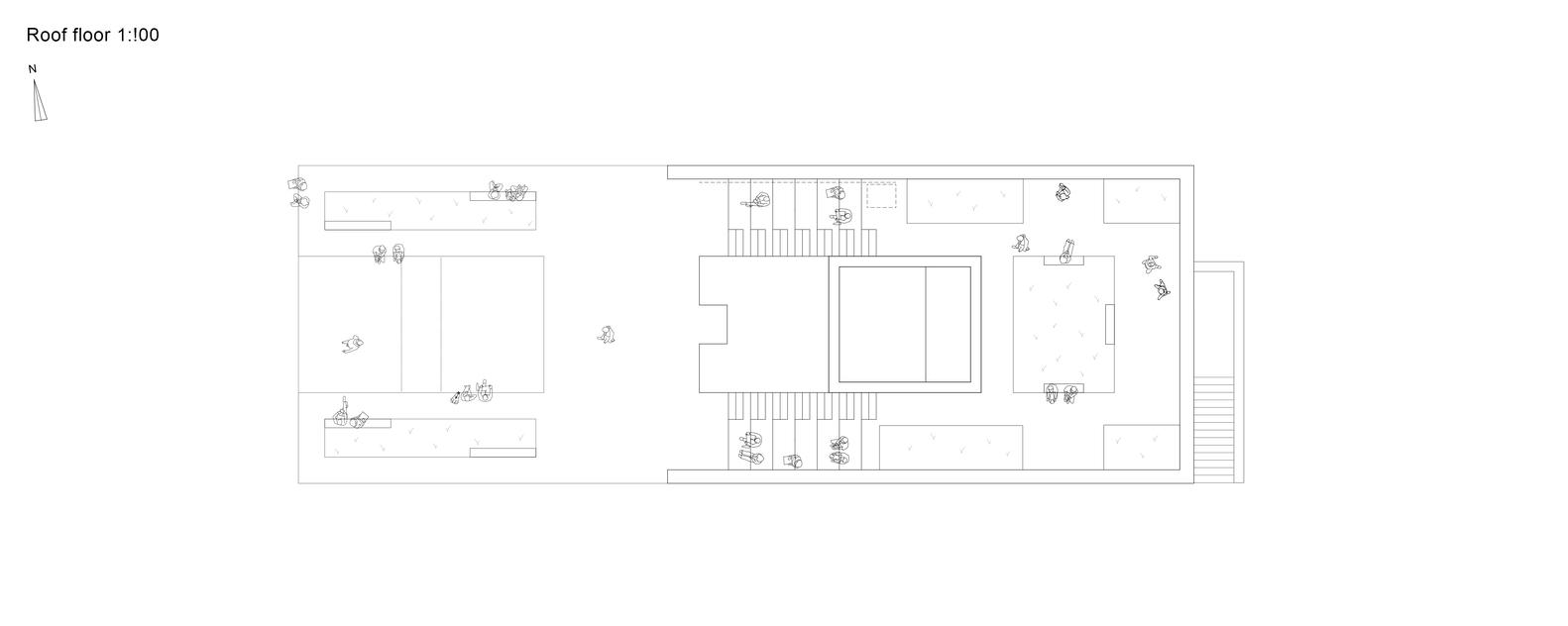
또한, 보행 가능한 옥상은 방문 경험을 확장하며, 댐과 주변 자연 경관을 조망할 수 있는 다양한 시점을 제공합니다.
사색과 배움, 그리고 연결의 공간
Stones Water Light 방문자 센터는 단순한 전시 공간이 아닌, 사색과 배움, 사람과 자연, 그리고 역사적 유산을 연결하는 장소입니다.
건축적 설계와 입지를 통해, 이 공간은 에더제 호수의 문화적·생태적 가치를 재확인하며, 그 의미를 미래 세대에게 지속적으로 전달하는 역할을 합니다.


Stones Water Light
EDERSEE, GERMANY
Architects : Christoph Hesse Architects
Area : 1,500㎡
Year : 2023
Photographs : Laurian Ghinitoiu, Michael Meschede























위 사진과 게시 내용은 archdaily 의 기사를 사용ㆍ편집하였습니다.