2022. 1. 27. 10:29ㆍARCHITECTURE/COMMERCIAL & OFFICES

오뚜기 브랜드의 새로운 이미지를 보여주기위해 시작된 Roly-poly Cotto는 공간계획 및 디자인, 스타일링, 제품디자인, 그래픽 디자인 등 다양한 부분이 개입된 프로젝트이다.
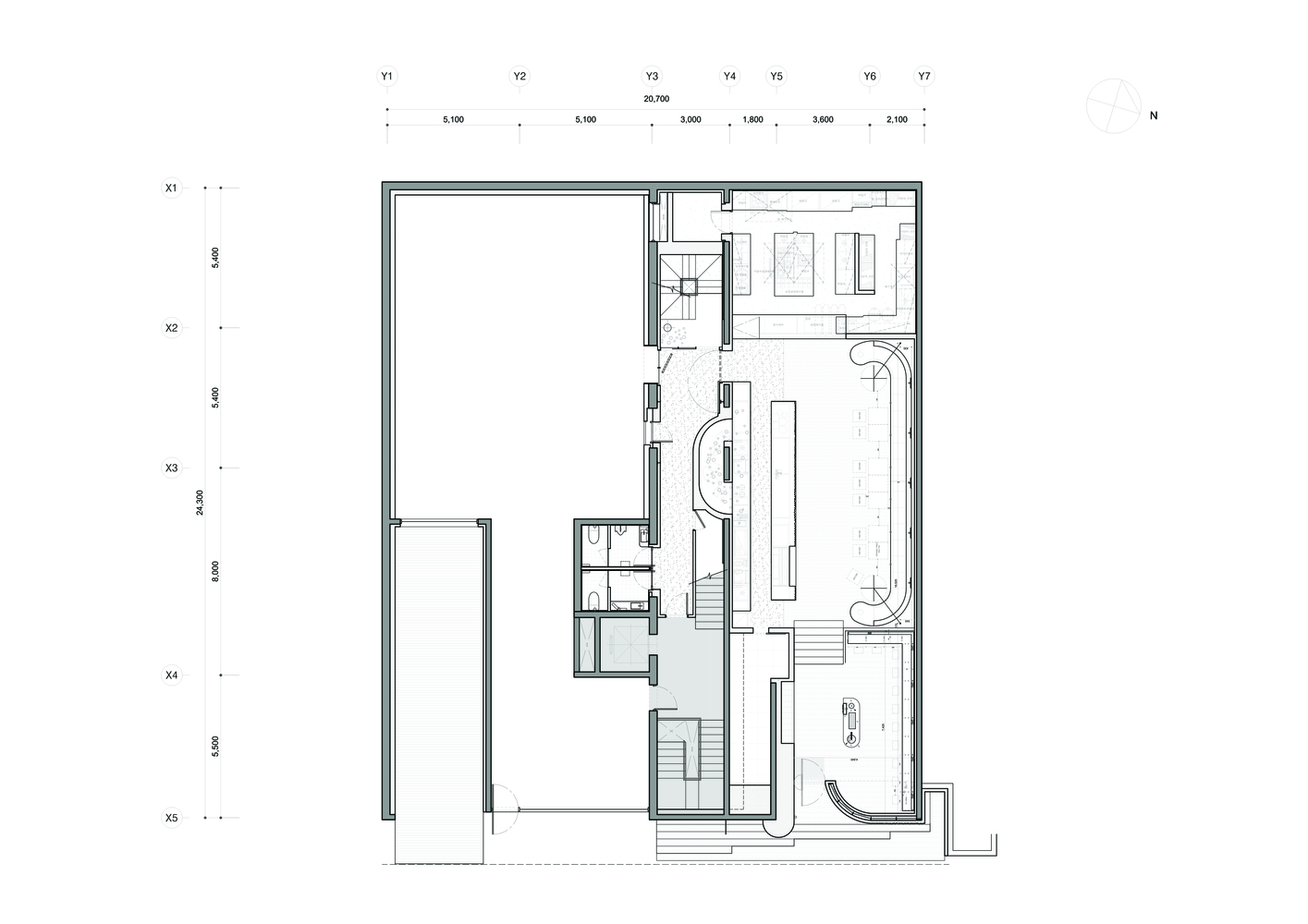
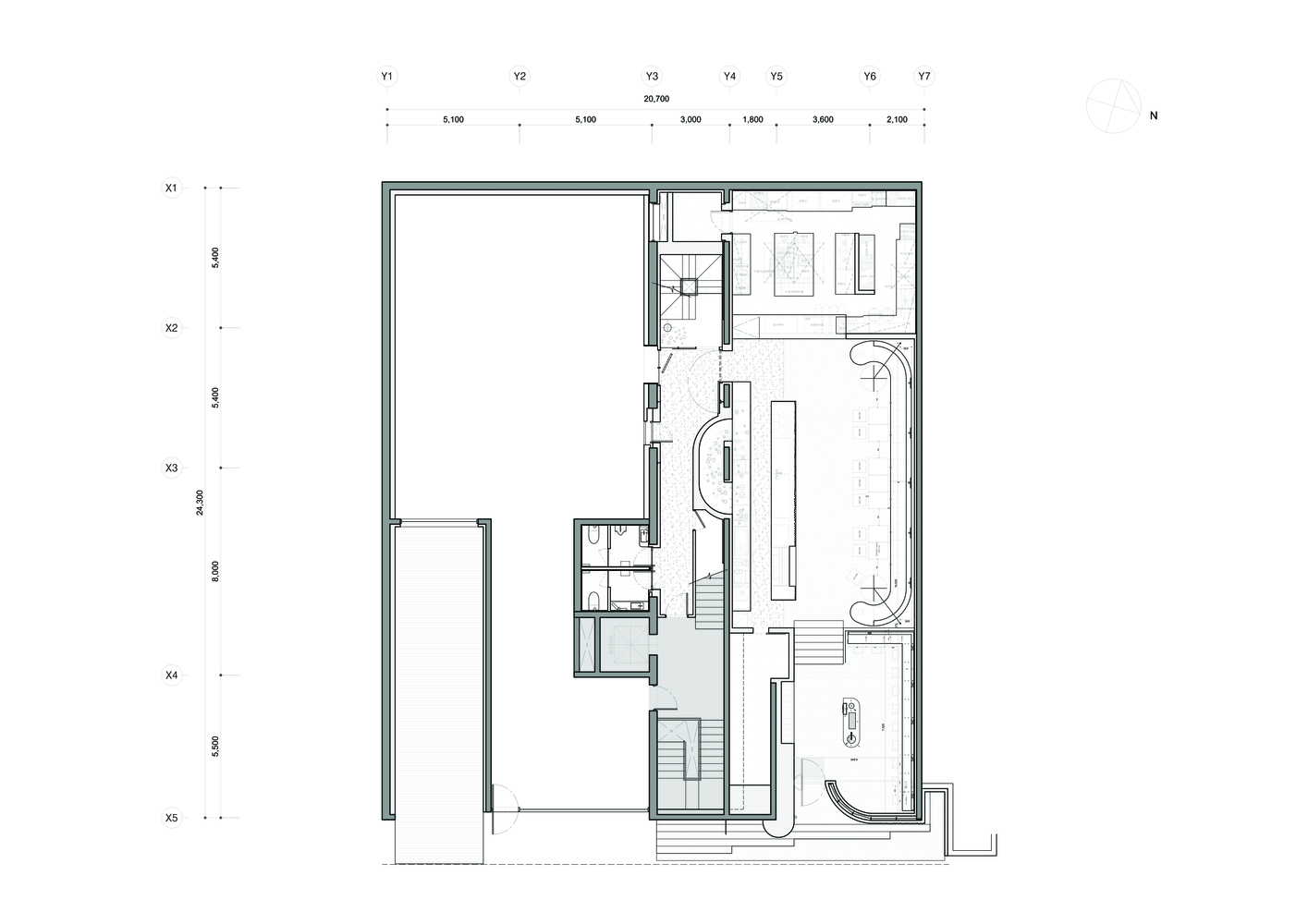
기존 두 건물에 감춰진 정원을 하나로 결합하여 전체 공간에서 가장 넓은 면적을 확보하고 매개체를 제공하는 것이 디자인의 핵심이다. 흩어져 있는 6개의 공간은 이 정원을 통해 관계를 형성하여 각각의 기능을 수행한다. 동굴, 큐브, 슬로프, 그늘, 정원, 홀, 살라의 순서로 분할된 7개의 공간은 역할과 높이가 다르며 다양한 시퀀스를 제공한다.
The story in the space can be compared to the relationship between body and mind. No matter how the visual completeness of the space is excellent, if the story is too simple or poor, if it is very similar to something, the users are not interested in it or feel empty. Even if all the restaurants in the district are disguised as original, eventually, the scene, people just line up only one famous one, means its identity makes others imitators. The true origin story makes emotions and various interpretations. The space has the possibility of being complete only with the soul of the story.
Numerous brands have their own stories. The stories are passed on to the public as the brand image and become the mixed symbol of positivity and negativity. Ottogi has good and healthy images, but conservative and loutish images at the same time. Thus, the brand is not relatively progressive or elegant. It would be an obvious thing for the future to the company that shows and experience the new image of Ottogi, which has overcome this dilemma, to 20 ~ 30’s generation. So, the company actively accepted our proposals, and it was quickly promoted.
Roly-poly Cotto is a project that involves and intervenes in all parts from naming, spatial planning and design, styling, product design, and even graphic design. Initially requested space was planned to sell curry and ramen on an area of about 265m2, and 80 pyeong, but was expanded to about 310 pyeong by suggesting the possibility of expansion through using remaining space. The simple composition just selling ramen and curry made us expect to serve as a symbolic space that would give a complex function on the expanded space and make consumers impress the brand’s new image. However, it needed a metaphorical interpretation that could appeal to the young generation while avoiding the brand’s direct expression.
In the era of simulacrum, which considers the status quo more than the reality, the young generation may feel a strong isolated image to Ottogi. Thus, we have come to plan our role as a space to overcome this dilemma and show the future of the embedded company. Through the analysis from various aspects, we set up the concept to identify positive, negative, and deficient images, and to overcome them. It is still very ironic, but we thought that we should make an innovative, kind but strong, friendly but sensuous image. To do so, we thought that more complex than simple, more emotional than provocative, more analog than digital, that would be the solution as a non-temporary and sustainable space. So, we hoped after the space become more familiar, it would be delivered to the uses step by step.
Composition of Space - The key to the design is to combine the gardens hidden in two existing buildings into one, to secure the widest area in the whole space, and to provide a medium. The scattered six spaces formed a relationship through this garden to perform each function. 7 spaces divided in the order of cave, cube, slope, shade, garden, hall, and sala, have different roles and heights and provide various sequences.
The main material of the space is red brick. The red brick is a material that contains universality and persistence and builds the structures by gathering small cells. The bricks, which are built with about 100,000 blocks, are like the conservative nature of materials that has been kept over the years, and the meaning of the corporate spirit which has developed steadily. The various construction methods and patterns of the bricks are performance that overcomes conservatism. Moreover, yellow is the symbolic color of the Ottogi. The yellow gives a completely different feeling depending on the color, brightness, chroma, area of use, so we decided not to insist on the brand’s symbolic color but to focus on delivering the image of the color. The materials used inside were wood, fabric, and ceramics that are suitable with the bricks, the main material. However, we used stainless steel for the rhythm of the material, thus, we cut every single segment so that it could feel the temporality.
The cave facing the road is a windowless semi-basement and a space for selling food and beverages. About 400 fluorescent objects hanging from the ceiling make us feel the landscape of the garden. The interior of the space is finished with various patterns of bricks, and an 8m bar and booth sofa become the axis of the narrow and long space. When going up the ground through a narrow vertical staircase, it will meet a cube and a slope facing each other. The cube is a space to sell goods developed for the project. The front wall inside the cube, which is finished with bricks inside and outside is shinny by the light through a thick crack in the brick and looks like the single large metal shelf floats in a curved shape. The ceiling was hung with large balloons and lights together gives a cheerful atmosphere and making it easy to recognize from the outside. The stair-shaped slopes stacked by bricks are designed to sit more actively, and the small grass space created at the top provides an opportunity to watch the whole garden.
On the stairs, various fluorescent ceramic objects of the artist, Lee Hyun-Jung places, so it would be the source of entertainment for users. The shades bonded to the cube are finished with the roofing material of punching metal to transmit sunlight and relieve the texture of the hard cube. The long form of the shade crosses the garden to the center, but it adds depth making the layers of space at eye level. About 40 landscapes made with ceramic under the roof put there, so even when the breeze blows, the whole senses of the body could feel at the garden.
The garden becomes the center of the whole space and all the spaces on the ground are directed toward it. Unlike the mass of the hard bricks, the garden differently changes to the season. The garden, being composed of various flowering plants, is designed to harmonize with several firs that were planted in the past. The flowering plants, are sensitive to the wind, react to the firmness of the bricks and show the balance of the entire garden. The end of the garden is located opposite a small hill using the existing level and communicates with sala. The ceramic table of the artist, Lee Hyun-Jung on this hill combines with first to make another space in the garden. The hall is going to open to customers in the future but will be intended to be used for company events or tasting events. The hall, which can accommodate more than 50 people, has the form for multi-purpose use.
The panels of the metal nets were installed to the ceiling, so that lighting, heating and cooling equipment, and sound equipment are not exposed. A large sliding door installed at the front of the hall opens about 6m, so it connects the hall and the garden like a bridge. The sala, the last space, is not an open space for the public. But the sala’s front is exposed to the garden. On the front of the square, more than 4,800 yellow spangles respond to wind and light, reflecting the garden.
The interior of the Sala is designed to feel cozy and comfortable like a domestic drawing-room. Yellow, the symbolic color of the company, was used but was expressed by various finishing materials to give depth to the colors. Inside the space, there is furniture like a treasure box. When opening the door of the heavy furniture, tools for enjoying music, coffee, and wine, present users’ entertainment. All sala’s windows are also designed to open so that the entire garden can be viewed through the space. The roly-poly Cotto was the project of understanding and transforming the two different buildings into one concept to create synergy. To do that, we gave the meanings to each 7 space that was used for unrelated purposes each other, so that they could relate to each other in context over the new story. The newly expanded grass garden was hidden from the outside, so it made users surprisingly.
The various elements inside the garden that stimulate vision, hearing, and touch become a medium to create separate space into one. The image of the firm brick covering the whole is neutralized from the round shape of roly-poly inferred curves and designed to balance the space. The various different levels of the floor inside the space help users produce various scenes and understand space more in three-dimensional ways. Eventually, we expect that all of these relationships will play a role in creating visual entertainment and experience and making the brand’s new image.
Roly-Poly Cotto
Gangnamgu, South korea
Architects : studioVASE
Area : 1,015㎡
Year : 2020




























from archdaily