2022. 2. 7. 14:29ㆍARCHITECTURE/RESIDENTIAL
This house in a quiet residential neighborhood of central Tokyo was built for a couple who had long lived on the property but wanted to rebuild as they entered a new phase of life after their three children left home. The simple exterior design comprised of two massive volumes piled on top of each other takes advantage of the corner lot, with a façade of exposed concrete imprinted with cedar formwork. Outward-facing windows are limited to horizontal slits to preserve privacy and increase security.
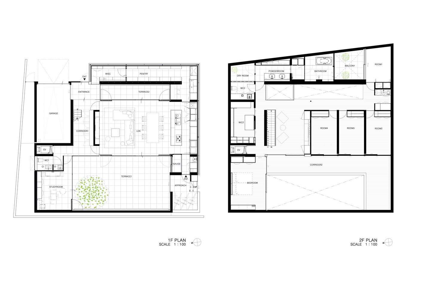
Inside, the house is defined by two courtyards, one large and the other small, that are arranged in parallel. The main courtyard is on the south side and features a bamboo grove that draws the eye when one steps into the entryway. Because the living room, study, and bedrooms all face onto this courtyard, the clients and their dog can enjoy outdoor time as they please. A smaller slit-shaped courtyard on the north side is also dotted with plantings and serves as a lightwell, filling the first-floor living room and entryway as well as a second living room upstairs with pleasant, diffuse light.
Deep eaves over the south-facing upstairs windows block direct sunlight, giving the first-floor living room a subdued, formal atmosphere. By contrast, the upstairs living room is more casual and has an attached roof balcony, giving the second floor a different mood. This allows the residents the freedom to move through the house over the course of the day, spending time where they are most comfortable.
In the post-covid era, residential clients are less interested in rooms with clear functions or houses that are mere collections of individual rooms. Families want homes where they spend meaningful quality time, maintaining both distance and closeness as they cross casually between indoor and outdoor spaces almost as if they were traveling within their own house. We believe that this kind of free environment is what clients will be seeking in residential architecture in years to come.
Timeless Residence
Bunkyo city, Japan
Architects : APOLLO Architects & Associates
Area : 202㎡
Year : 2021





































from archdaily
'ARCHITECTURE > RESIDENTIAL' 카테고리의 다른 글
| 파리 기찻길 앞 주상복합 [Mixed-use Building Rue Castagnary] - TANK (0) | 2022.02.17 |
|---|---|
| 핀란드 숲 속 다면체 형태 목조주택[Meteorite Cabin] - Ateljé Sotamaa (0) | 2022.02.09 |
| 베트남 붉은 지붕주택[The Red Roof] - TAA DESIGN (0) | 2022.02.03 |
| "Opening"도쿄 협소주택[A Life With Large Opening] - ON design partners (0) | 2022.02.03 |
| 계단이 관통하는 형태의 도쿄 다가구주택[Stairway House] - nendo (0) | 2022.02.03 |