"Opening"도쿄 협소주택[A Life With Large Opening] - ON design partners
2022. 2. 3. 18:16ㆍARCHITECTURE/RESIDENTIAL

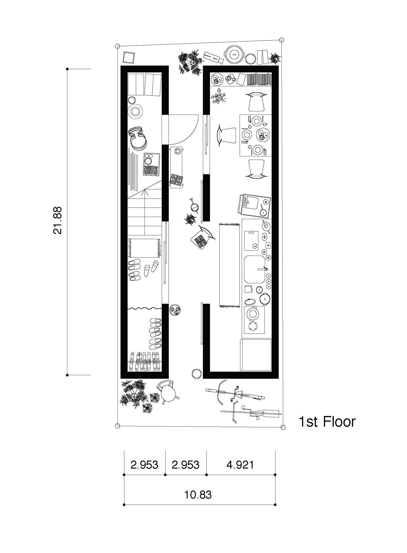
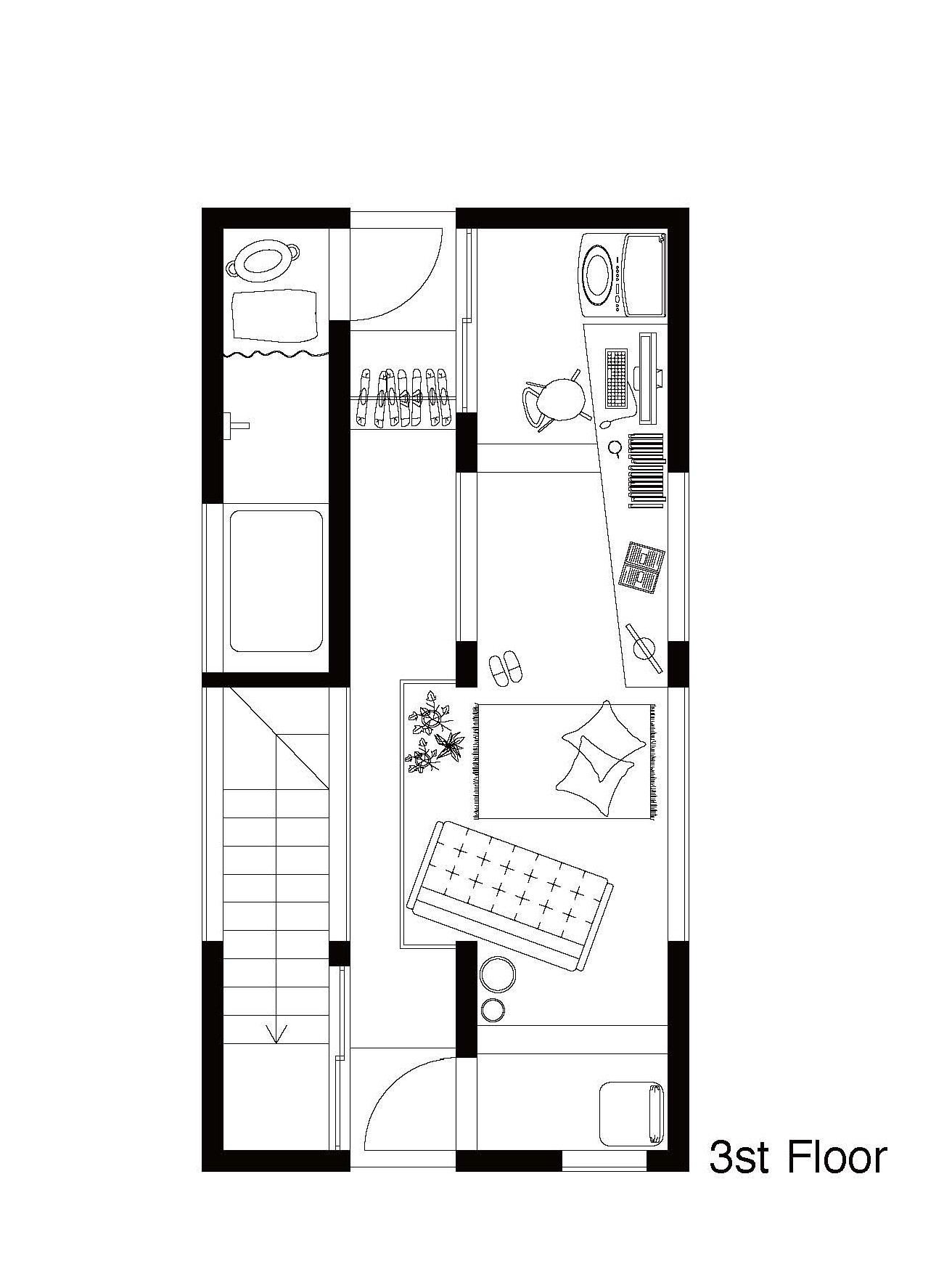
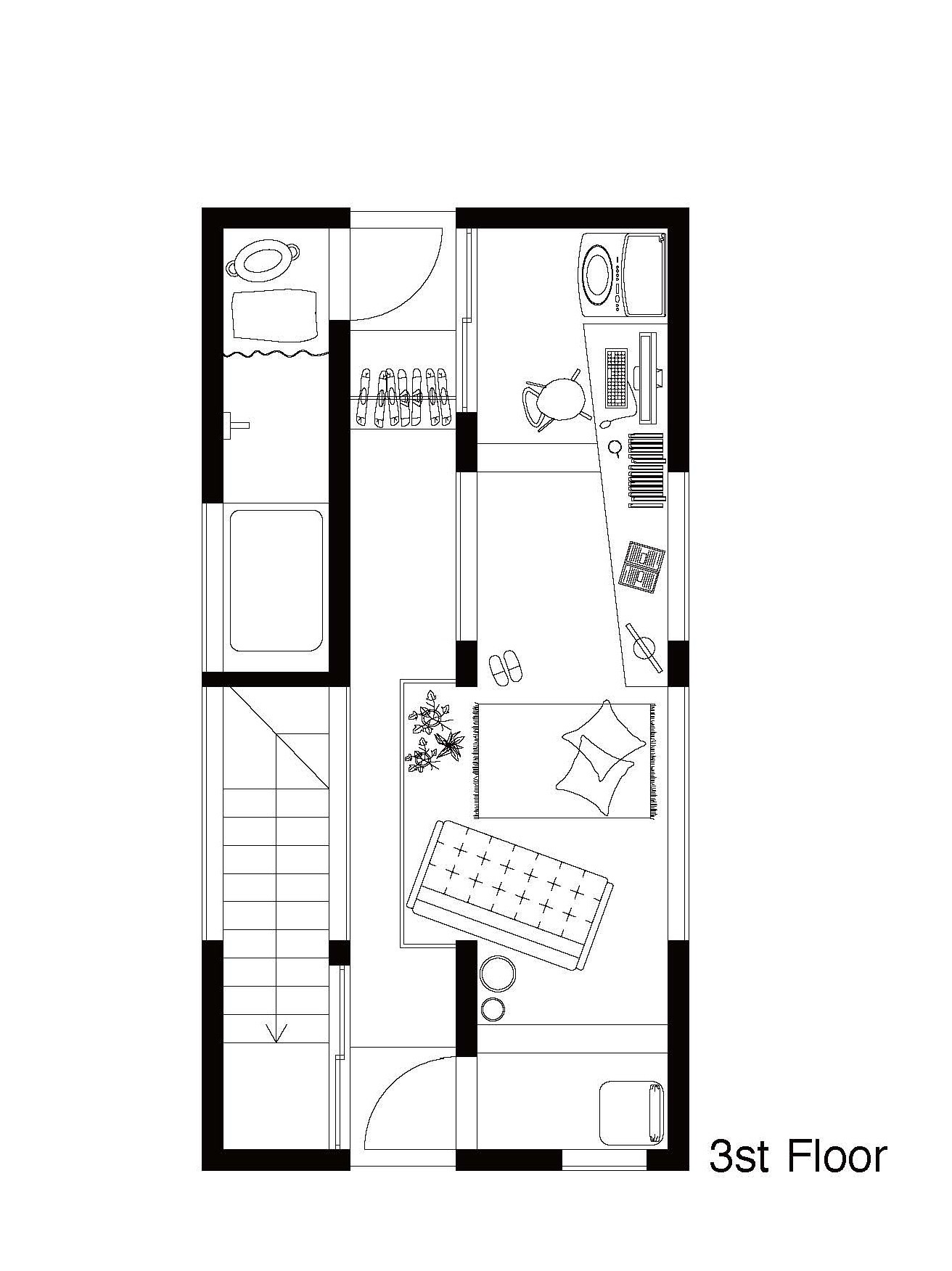
A very small land in a very high density city , Tokyo . Discover new style of usage as a living environment , which compact urban house cannot carry, Inside a small outer space the “opening”.
The “opening” is a place to move from one building to another building, It is a bay window to put a flower pot, And a space where furnitures can crowd out. The “opening” take root in daily life , as the people living in this house update how to use and utilize the most of it.
A life with large opening
Bunkyo-ku, Japan
Architects : ON design partners
Area : 50.70㎡
Year : 2012




















from archdaily
'ARCHITECTURE > RESIDENTIAL' 카테고리의 다른 글
| 깊은 처마를 가진 일본 노출콘크리트 주택 Timeless Residence / APOLLO Architects & Associates (0) | 2022.02.07 |
|---|---|
| 베트남 붉은 지붕주택[The Red Roof] - TAA DESIGN (0) | 2022.02.03 |
| 계단이 관통하는 형태의 도쿄 다가구주택[Stairway House] - nendo (0) | 2022.02.03 |
| 루마니아 작은 거리 아파트 커뮤니티[Urban Spaces 2 / Mumuleanu 14 Apartment Building] - ADNBA (0) | 2022.01.24 |
| 노약자를 위한 주택 [Paul Meurice Home for Disabled Adults] - Lambert Lénak (0) | 2022.01.21 |