2022. 1. 24. 10:54ㆍARCHITECTURE/RESIDENTIAL
Bucharest's central areas are faced nowadays with fast and somewhat chaotic densification. While we believe that density can, and many times must be seen as a form of sustainability, we also admit that the relationship between habitation within an old urban fabric and the increase of its density is often a fragile one, as places might lose their character. Our project seeks an appropriate answer to this problem by mediating between different sizes and densities in a central neighbourhood with small streets, long, narrow plots, and a puzzle of old and new buildings of all types and scales, not far from the socialist intervention of a large boulevard and its "curtain" of tall apartment blocks.
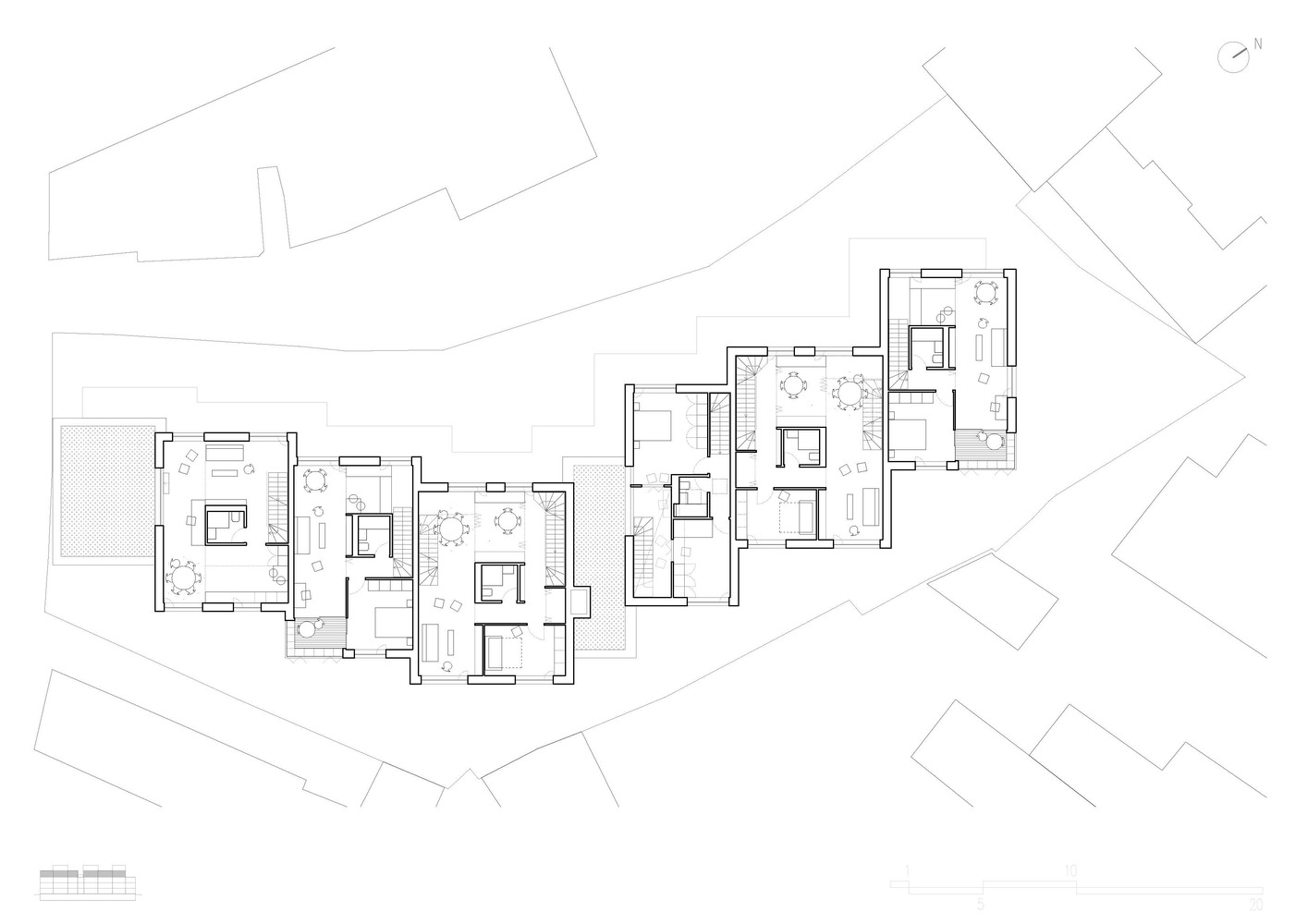
The project is built on Barbu Mumuleanu street on a long, narrow, and irregular plot. The proposal consists of a succession of 7 houses-like volumes, a community of 20 unique apartments placed along a garden. The elongated volume stretches along the deep plot and stays connected to the street through an access courtyard that runs along the site's western boundary. On the plot's eastern side, the long and irregular strip of land is split into a sequence of private gardens. Between these two narrow gardens are all the dwellings and their rooms, opening their doors and windows to both, receiving both the morning and the afternoon sun.
The access points' customization and the units' double orientation are characteristics borrowed from the “wagon” dwelling, a housing model typical of Bucharest's old central neighbourhoods. Thus, on the ground floor, duplex apartments are accessed directly from the common garden, like a series of maisonettes. On the second floor, an external corridor runs along the entire building, becoming a genuine "alley", through which all apartments from the 2nd and 3rd floor are accessed. The communal western garden and the small private gardens on the east are replicated above by means of winter gardens - loggias with movable glass enclosures - which allow all apartments, at ground level or above, to enjoy the same spatial sequence.
The project thus seeks to work with a local typology and the neighbourhood's character by attaching and overlapping dwellings with individual accesses and introducing a diverse array of relationships with the exterior through porches, gardens, terraces, and the elevated walkway. In order to articulate the project to the neighbourhood’s scale, the building's mass is fragmented in volumes with different heights, as an attempt to connect the new building to the old ones and protect the urban fabric, while also allowing the light to pass through towards the neighbours.
At the same time, the project has searched to reclaim the plaster as a simple, yet beautiful façade material. A widespread and rich technique in Bucharest's historical architecture, it has almost disappeared recently, as the city is being arbitrarily clad in colourful polystyrene. The plastering was applied and finished manually - all minor errors were left visible precisely because they enhance the beauty of the material. We believe that such "syncopes" complete the design's expressiveness and may recover some of the craftmaniship's lost qualities.

Urban Spaces 2 / Mumuleanu 14 Apartment building
Bucharest, Romania
Architects : ADNBA
Area : 1,924㎡
Year : 2020


























from. archdaily
'ARCHITECTURE > RESIDENTIAL' 카테고리의 다른 글
| "Opening"도쿄 협소주택[A Life With Large Opening] - ON design partners (0) | 2022.02.03 |
|---|---|
| 계단이 관통하는 형태의 도쿄 다가구주택[Stairway House] - nendo (0) | 2022.02.03 |
| 노약자를 위한 주택 [Paul Meurice Home for Disabled Adults] - Lambert Lénak (0) | 2022.01.21 |
| 케이프타운 테라스아파트[Clifton Terraces Apartments] - SAOTA (0) | 2022.01.20 |
| 틈을 통해 소통하는 집[Gap House] - Archihood WXY (0) | 2022.01.19 |