2022. 1. 20. 13:14ㆍARCHITECTURE/RESIDENTIAL
케이프타운 빅토리아 로드에 위치한 아파트는 이 지역의 독특한 절벽 환경속에 대서양과 해변을 바라보도록 계획되었다. 쌓인 정면이 후퇴하는 테라스 층은 독특하고 시각적으로 즐거운 아이덴티티를 만들어 내고 해안 경관적으로도 긍적적으로 어우러지게 해주는 요소로 작용된다.
Clifton Terraces apartments on Victoria Road, Cape Town, designed by SAOTA, makes a striking but sensitively integrated architectural statement in the area’s distinctive cliffside setting. The development recedes from the street in a series of stepped, articulated terraces that follow the site's natural contours, boasting panoramic views of the Atlantic Ocean and local landmarks such as Table Mountain and Clifton’s series of sheltered beaches.
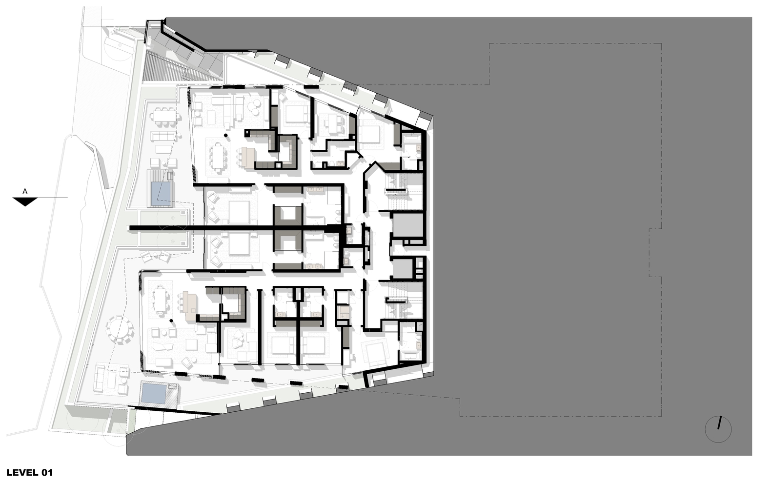
Clifton Terraces accommodates ten apartments, including four levels of side-by-side simplexes, plus a level of duplexes above them and a pair of five-level penthouses set back behind private gardens. Parking is accommodated on three levels: one basement, one at street level and one above. The reception area includes a large-scale site-specific artwork by top-tier artist Marcus Neustetter, which imparts a unique sense of place and adds a layer of creative engagement with the development’s setting.
A central spine of greenery divides the tiered levels vertically, allowing each side of the building to pivot independently of the other as the levels step back, making for a dynamic architectural expression of the building’s form. The site, which occupies a prime elevated position on Lion’s Head, consolidated three adjacent properties, two facing the street and one landlocked site behind it. Its position was considered sensitive in terms of the grain of its natural and architectural context, the scenic drive along Victoria Road, and, perhaps most of all, consideration for the views and privacy of neighbouring properties. Behind the site is a protected green belt of public space just below the scenic drive along Kloof Road, with views it was imperative to preserve.
SAOTA actively engaged with the city and the building’s neighbours, analysing the impact of the development on the outlook of each of their properties and ensuring that their lateral views across the front of the building would be unaffected. In most instances, SAOTA managed to improve them. The building’s raked-back terraces and articulated form has its genesis in these considerations, ultimately transforming multiple constraints into the basis of an authentic, highly motivated design solution.
The plinth of the building contributes to the public domain. From a pedestrian perspective at street level, the building’s proportions have been carefully integrated with the existing streetscape, harmonising with the scale of the adjacent buildings. The plinth’s sandstone finish is a nod to the natural colour and texture of the decomposing granite boulder that protrudes from the basement onto the sidewalk, preserving the historical and geological character of the scenic thoroughfare. (The fact that the boulder was decomposing meant significant feats of engineering were required to preserve it.)
On the residential levels, the retreating layers of the stacked facade are deliberately unimposing even as it creates a distinctive and visually pleasing architectural identity for the development, ultimately making a positive architectural contribution to the public domain. The pivoting faces of the terraces and deep overhangs create protected outdoor living spaces for each apartment with spectacular views. At the same time, frosted glass lateral fin walls have been angled to maximise ocean views and maintain the privacy of residents and neighbours.
The refined detailing of the façade, contrasting crisp white horizontal lines with dark, blade-like pergolas (which in turn complement the dark bands of fenestration), fragments the building’s mass while providing moments of interest within a holistic aesthetic. The restrained natural palette of materials blends in with the beautiful natural surroundings while planted terraces on each level soften the building’s edges and blend in with the natural environment, as does the treed ‘spine’ running the vertical length of the development. The development retained 25 existing trees on the site and added 101 large trees (plus over 3 000 small plants and shrubs).
Generous landscaped bands of indigenous greenery on either side of the property soften its relation to the public thoroughfares on either side, such as the Biskop Steps, a popular training route for joggers and walkers.

Clifton Terraces Apartements
Cape town, South Africa
Architects : SAOTA
Year : 2018
















from. archdaily
'ARCHITECTURE > RESIDENTIAL' 카테고리의 다른 글
| 루마니아 작은 거리 아파트 커뮤니티[Urban Spaces 2 / Mumuleanu 14 Apartment Building] - ADNBA (0) | 2022.01.24 |
|---|---|
| 노약자를 위한 주택 [Paul Meurice Home for Disabled Adults] - Lambert Lénak (0) | 2022.01.21 |
| 틈을 통해 소통하는 집[Gap House] - Archihood WXY (0) | 2022.01.19 |
| 지형을 따라 지어진 7가구 주택[Oito Casas] - Murmuro (0) | 2022.01.18 |
| 경사지 코너에 둘러진 안마당이 있는 주택 [Zinzin House] - Architects Zinzin (0) | 2022.01.17 |