2022. 1. 18. 19:58ㆍARCHITECTURE/RESIDENTIAL
The Project is part of an alottment plan that previously predicted a set of seven isolated houses that would follow the existing topography. In the northern side of the site is defined by the city’s urban limit. The aim of the promoter was to maximize the interior areas of the dwellings and the usufruct of each individual exterior space assuming a particular importance of the southern views to the city valley and the Sanctuary of Bom Jesus.
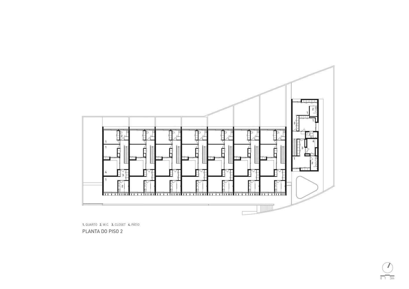
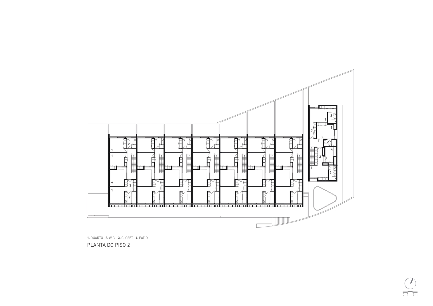
Our proposal redefines this existing allotment plan by transforming the seven houses into eight units unified in a single block anchored to the topography and one single house, to the east, that adjusts to the street’s curve. The access to the housing block is possible, at the west and lower level through an exterior pedestrian gallery parallel to the street that also connects to the common car acess to the individual garages. The pedestrian gallery is also accessible, from the street, at the opposite side, to the east, via a staircase where one also finds the single direct access from the street to a unit, to the single and detached house
This option allowed us to optimize the available construction area as it fits the existing topography and grants that each individual house possesses an individual entrance, access to the common areas, an individual garage for two vehicles and, at the floor 1, an open-space defining a kitchen, dining room, with an exterior garden, and living room spatially extended by the balcony in the southern facade. The most private program of the house - the bedrooms - is reserved for the upper floor, from which we highlight the main bedroom suit, facing south, with several concrete brise soleils that operate as shadow devices. The introduction of an inner patio in this floor allowed a third bedroom; it also acts as a natural light, ventilation system and natural heating, taking advantage of the sun exposure.


Oito Casas
Braga, Portugal
Architects : Murmuro
Area : 2,400㎡
Year : 2019




























from. archdaily
'ARCHITECTURE > RESIDENTIAL' 카테고리의 다른 글
| 케이프타운 테라스아파트[Clifton Terraces Apartments] - SAOTA (0) | 2022.01.20 |
|---|---|
| 틈을 통해 소통하는 집[Gap House] - Archihood WXY (0) | 2022.01.19 |
| 경사지 코너에 둘러진 안마당이 있는 주택 [Zinzin House] - Architects Zinzin (0) | 2022.01.17 |
| 붉은 안뜰을 가진 복합주거 [fein 1 Central] - HQ Architects (0) | 2022.01.14 |
| 프레임사이 숲과 계곡이 보이는 집[Patio House] - studioNOLET (0) | 2022.01.11 |