2022. 1. 17. 14:49ㆍARCHITECTURE/RESIDENTIAL

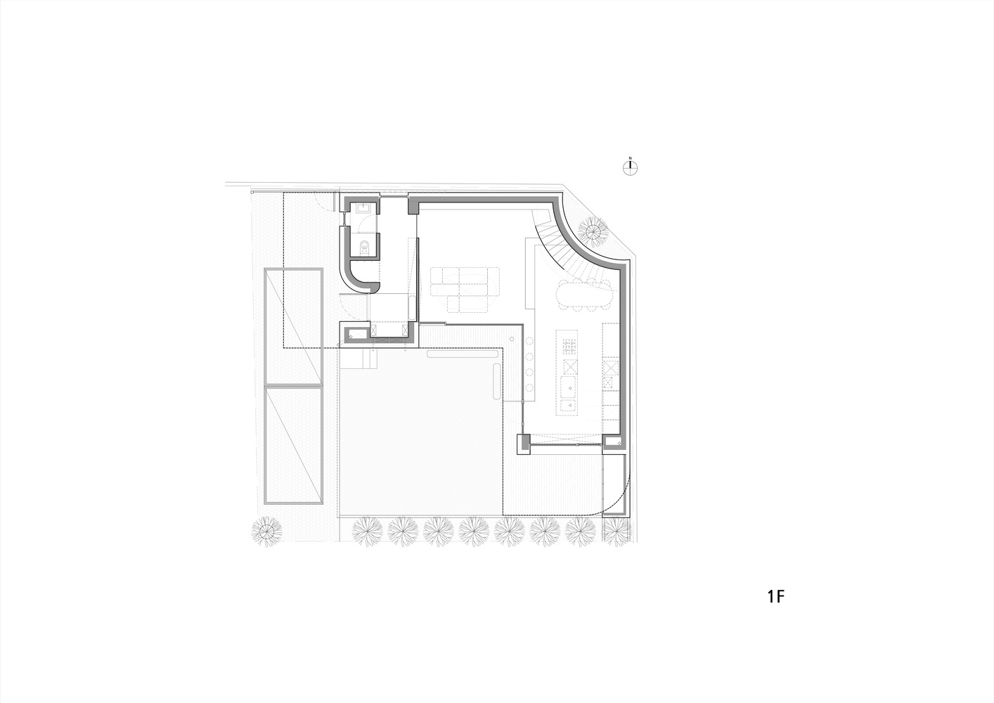
A slopped site. The site is slopped from north to south. The entrance and yard are each planned on the top and bottom level of the site. The top and the bottom level are connected naturally through transition spaces and through depth modification inside and outside spaces. Living room and kitchen have one step level difference and are each connected to outside yard by toenmaru, - a narrow wooden porch running along the outside of a room - or deck. Exterior space consists of an entrance area with parking lot and a yard area. The level difference between these two areas is connected by stairs. In other words, sloped site divides entrance and yard, and toenmaru works as a transition space between inner and outer spaces.
Curves. The site is at a corner. A concave curve at the corner becomes convex staircase connecting inner spaces placed where circulations flow. It is a small space to fill up green outside and a hub of inner circulation. Varied curvatures of the floors meeting with the curved wall prevent space being cramped or stuffy. In other words, inner space extends vertically along curved wall and overlapping various curves on floors.
Also, a wall facing the entrance of the residence block is also curved to give a gentle impression. Light. North elevation facing the road is planned with restrained windows to give a large window towards the yard on south. A skylight and void along the curved wall prevents this closed space feeling tight. A skylight on a sloped roof draws sky and lights to every inner space. The warm natural light slides down into inner spaces, where straight and curved lines harmonize. Light creates different scenes every moment coming through a skylight, staircase, and void.
Materials and details. Materials reveal the characteristic of this house, which is closed to outside and opened towards inside. White STO on the wall facing outside vivifies the concave curve at the corner and the mass of house. On the other hand, inner faces are finished with wood. Time is naturally reflected on inner wooden facade since the wood panels on the second and third floor are coated with SiOO instead of oil stain. Plus, simplifying where the two different materials - STO and wood - meet improved the completeness. A stainless steel is installed as a material separator where STO and wood meet to distinguish the materiality.
Zinzin House
Yongin, South Korea
Architects : Architects Zinzin
Area : 226㎡
Year : 2020































from. archdaily
'ARCHITECTURE > RESIDENTIAL' 카테고리의 다른 글
| 틈을 통해 소통하는 집[Gap House] - Archihood WXY (0) | 2022.01.19 |
|---|---|
| 지형을 따라 지어진 7가구 주택[Oito Casas] - Murmuro (0) | 2022.01.18 |
| 붉은 안뜰을 가진 복합주거 [fein 1 Central] - HQ Architects (0) | 2022.01.14 |
| 프레임사이 숲과 계곡이 보이는 집[Patio House] - studioNOLET (0) | 2022.01.11 |
| 툇마루와 덧지붕을 가진 주말주택[Bugok Friday House] - TRU Architects (0) | 2021.12.24 |