2022. 4. 4. 15:15ㆍARCHITECTURE/RESIDENTIAL
The project is located in a small town of Provence called Gréasque, in a rural environment largely covered by oak and pine trees.
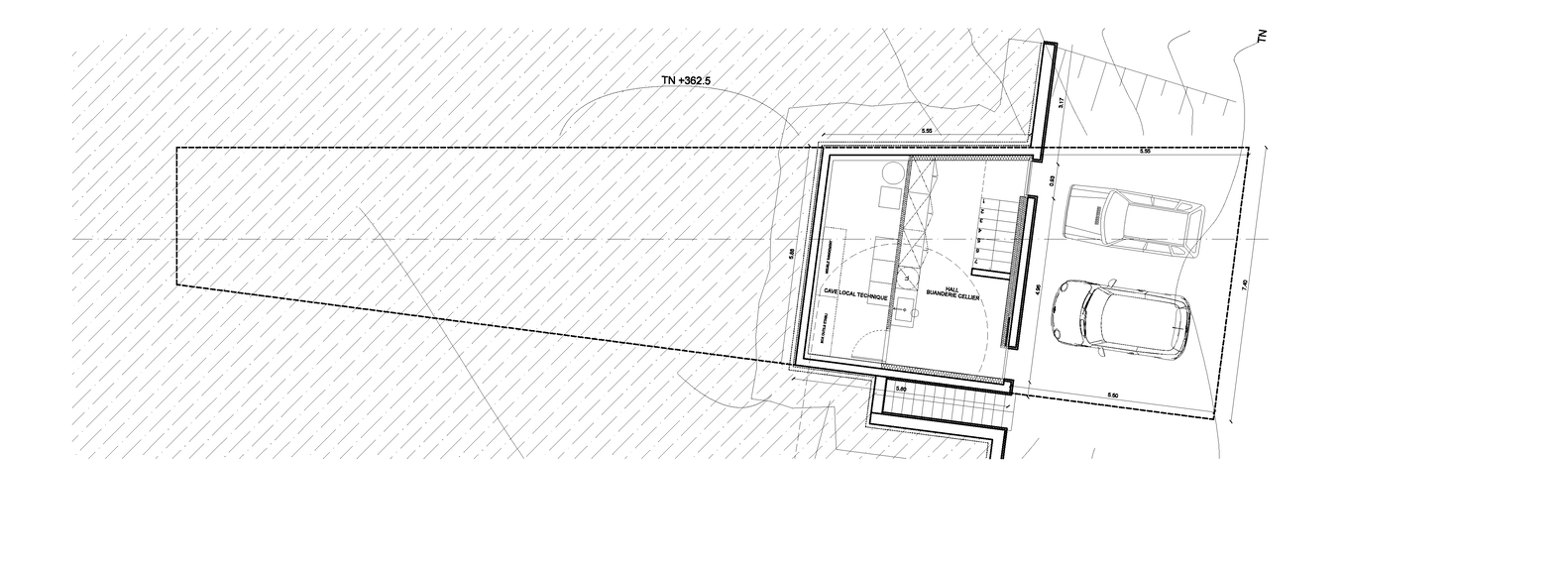
At the edge between a housing area and a forest, our proposal takes advantage of the morphology of the site and its strong topography. A simple linear geometry placed on a hill makes it possible to exploit at best the climatic and visual qualities of the plot. This project aims to make this site habitable by protecting itself from the major wind (the mistral) and by opening on the landscape.
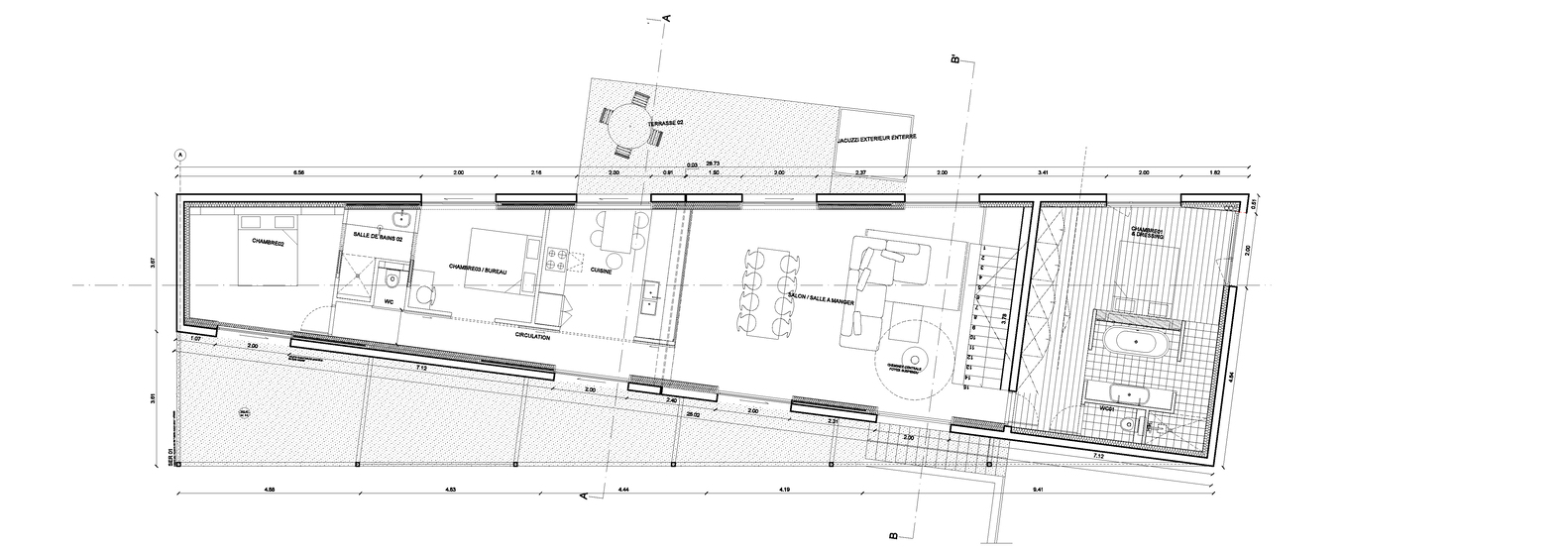
Due to the cramped parcel and the proximity with the closest neighbor, the house is located at the northern limit in order to provide privacy. The openings are oriented North towards the view of the local mountain (the Sainte-Victoire), and South towards a garden area released by the North implantation of the house. This "Sainte Victoire - Jardin" axis, becomes the guideline of the project.
The traditional archetype of sloping roofs is here mistreated. These two axes split the main volume into two distinct parts, the north face house (stable, protective, massive, and solid) and the south face house (frivolous, light, and empty). This compositional dynamic values internal and external relations. It creates singularity in the opposition of architectural writings of the two volumes while maintaining a common referential volumetric unit.
Playing on the variation of the surrounding housing, this project stands out as an obvious challenge to the generalized, uniform, standardized and idealized “Provençal” housing around. Our conviction defended here, is that contextual singularity architecture can make a unique place and values all of its surrounding environment.
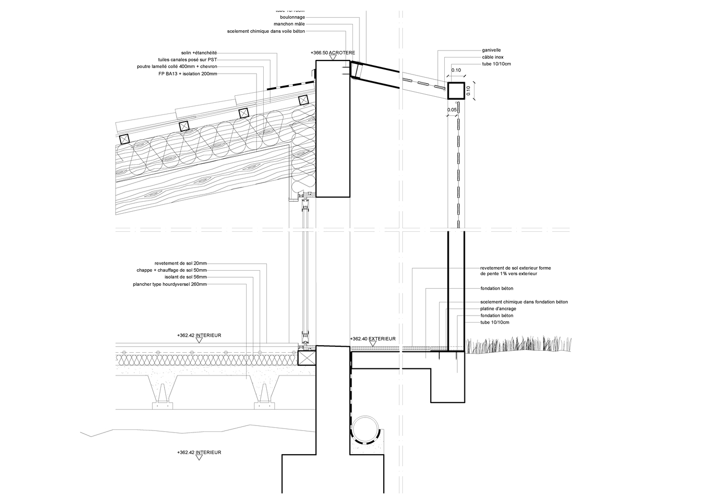
Highlighting the expertise of local craftsmanship, the project plays with the expressiveness of concrete. Rolled out with a high level of know-how, this rough white architectural concrete creates a deep relation between the project and the limestone environment. Its monolithic aspect creates an effect of mass and tension specific to the fiction of the place. This project tries to maintain a magnified relationship with the landscape. It is an open house to the outside whose strange shape becomes obvious on this site.
MGG House
GRÉASQUE, FRANCE
Architects : PAN Architecture
Area : 135㎡
Year : 2018
Photographs : Sébastien Normand
















from archdaily
'ARCHITECTURE > RESIDENTIAL' 카테고리의 다른 글
| 다양한 보이드를 가진 주택[House in Takamatsu] / Fujiwaramuro Architects (0) | 2022.04.13 |
|---|---|
| 내부 큰 전시벽을 가진 경사지붕주택[8.5 House] - DOG (0) | 2022.04.06 |
| 아르헨티나 투명도가 조절되는 파사드 주택[Housing Building Sucre 812] - Ana Smud + Alberto Smud (0) | 2022.03.29 |
| 마드리드 폭4m 협소주택[Greyhound House] - Murado & Elvira (0) | 2022.03.25 |
| 벨기에 콘크리트 캐노피 주택[House N-DP] - GRAUX & BAEYENS Architecten (0) | 2022.03.24 |