2022. 4. 13. 20:30ㆍARCHITECTURE/RESIDENTIAL
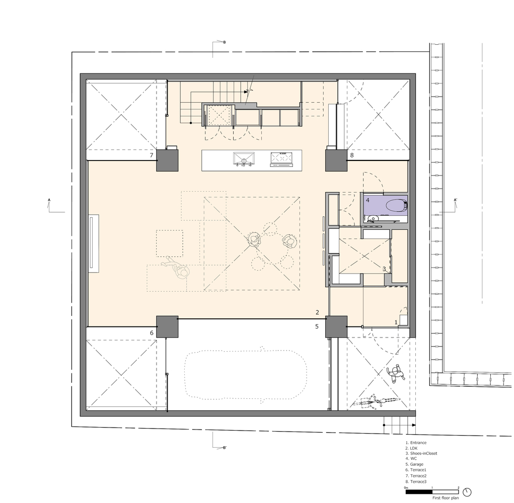
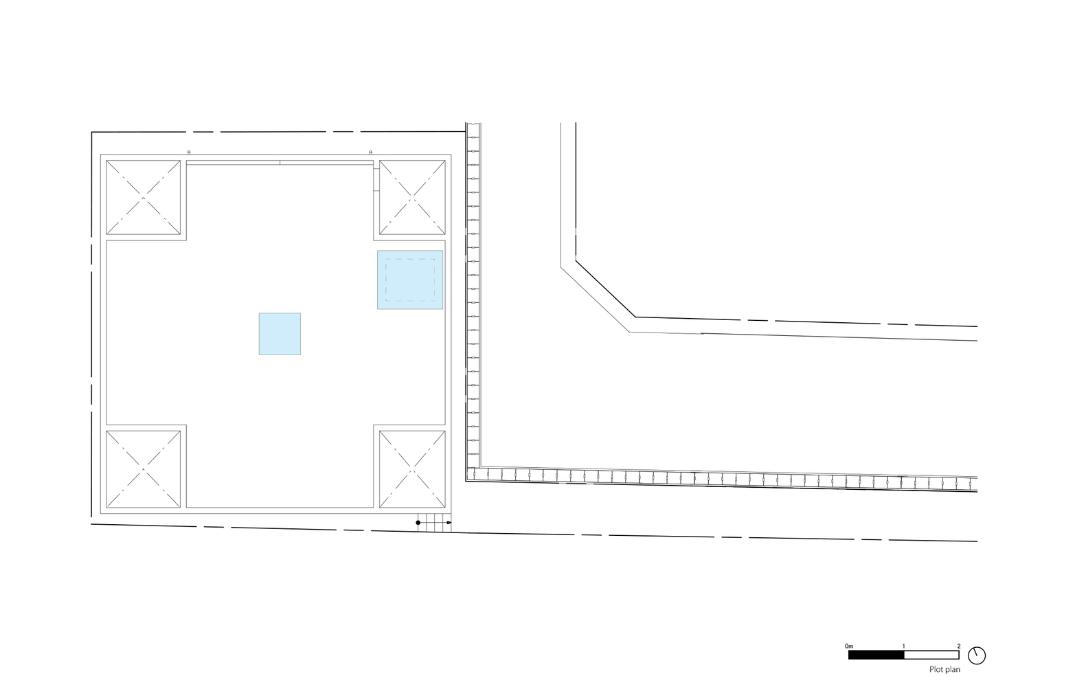
Located in central Takamatsu, this residence is home to a couple with one child. The client requested that the building occupy as much of the lot as possible, ensure privacy, have a built-in garage that showcased their car, and have a reinforced concrete structure with simple finishes rather than textured interiors featuring wood and other materials. We responded with a proposal that placed the living-dining-kitchen area at the center of the lot with other spaces unfolding around it onto the entire property.
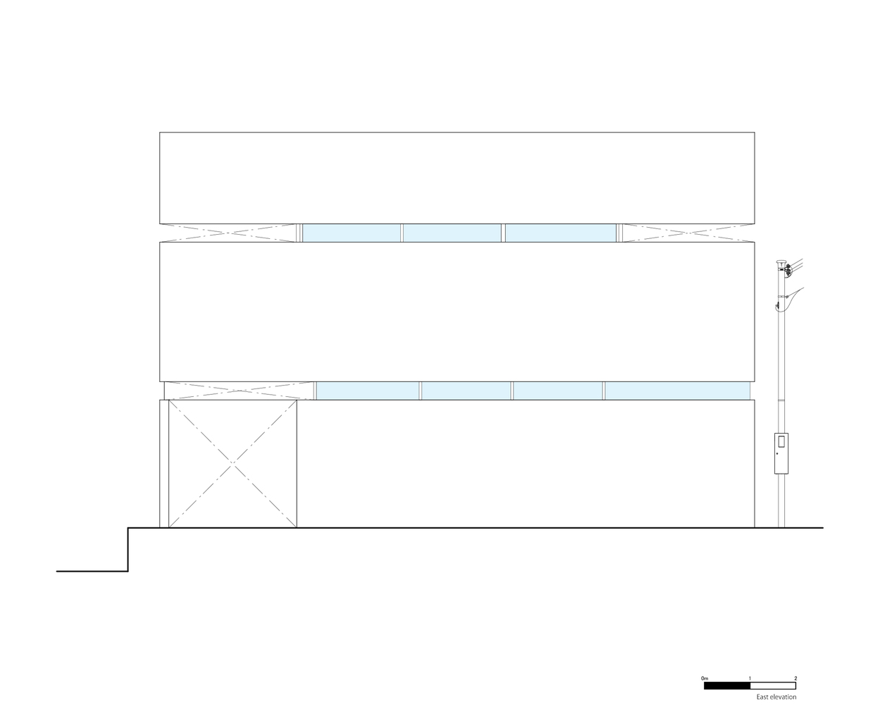
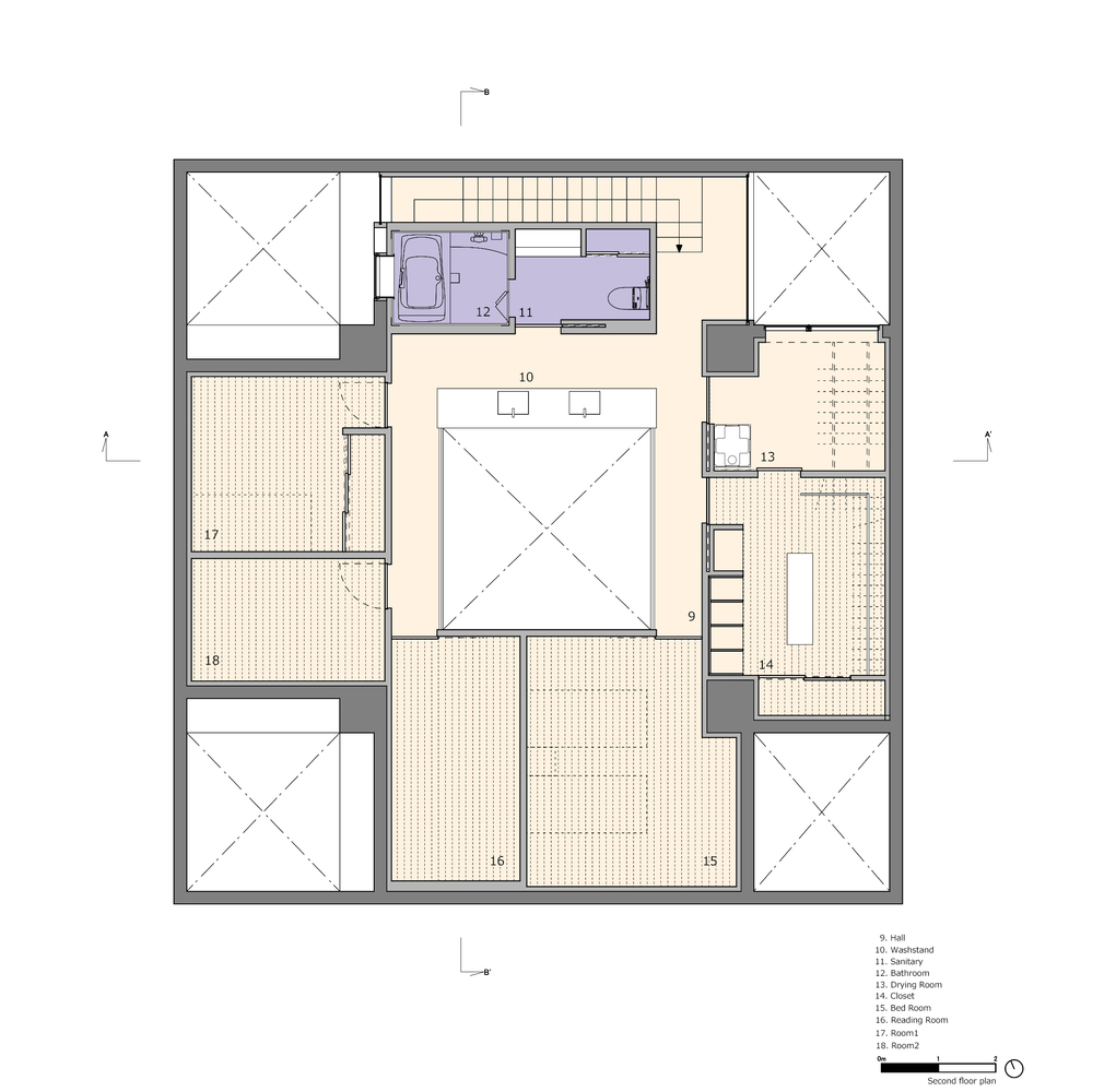
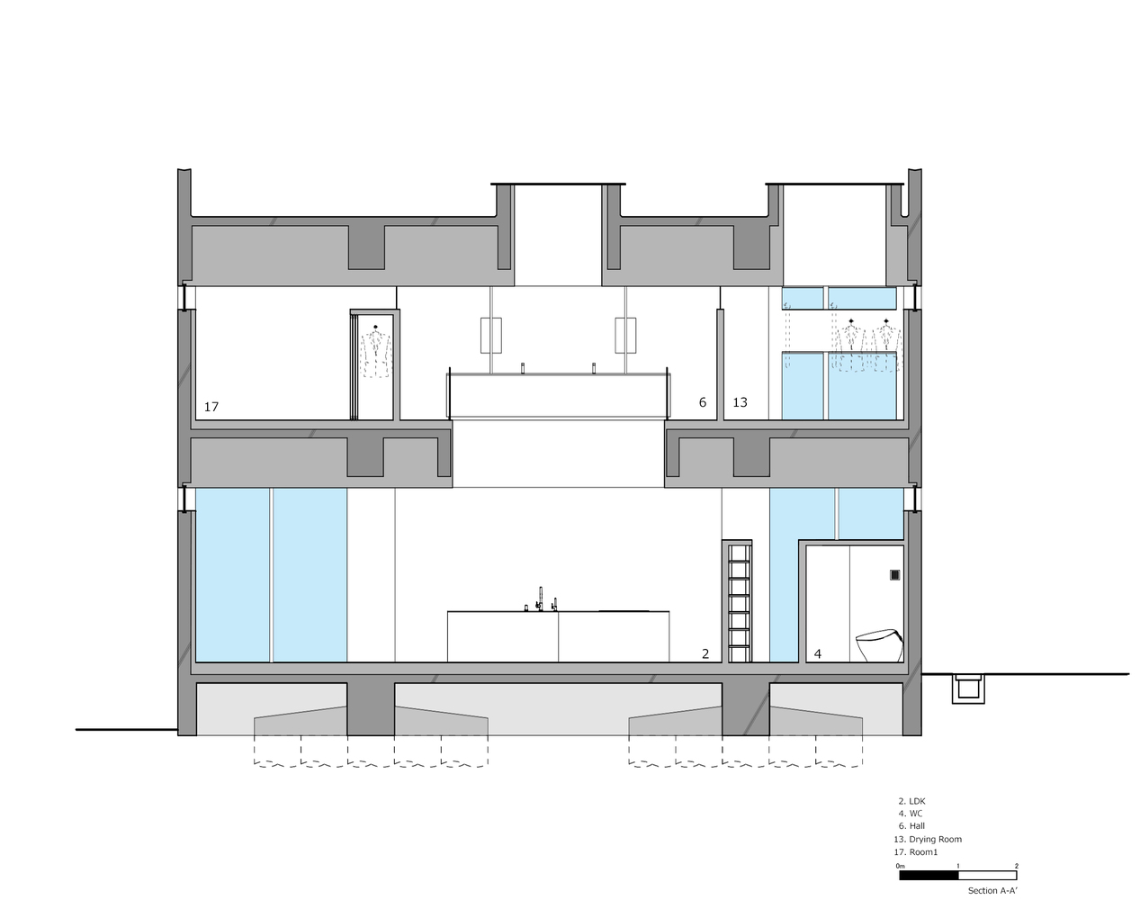
The building is composed from four exterior walls that fully enclose the property, with a void located inside each of the four corners as well as another in the center of the building. These five voids bring uniform light to the interior spaces, giving the living-dining-kitchen area a spacious, bright atmosphere despite its location on the first floor. The four corner voids incorporate the exterior environment into the building while maintaining privacy, creating an open-feeling space with strong connections to the outside world.
To keep the interior spaces simple, we used just four structural pillars. Cantilevers that extend horizontally from these columns support the first and second story floors and walls as well as the roof. Thanks to this arrangement, the exterior walls do not need to support the second floor or roof, which made possible the inclusion of long, thin slit windows that admit light from 360 degrees. This allows lines of sight to extend outside the building without compromising privacy.
The design also resulted in significant savings in the construction budget. The ground under the building is fairly soft and would have required extensive soil stabilization if an ordinary mat foundation were used. With our design, however, piles were required only under the four posts, reducing the soil stabilization budget to one quarter of what it would have been for a mat foundation.
House in Takamatsu
TAKAMATSU, JAPAN
Architects : FujiwaraMuro Architects
Area : 131㎡
Year : 2019
Photographs : atsuya. Taira


































from archdaily
'ARCHITECTURE > RESIDENTIAL' 카테고리의 다른 글
| 리본 모양의 호수 전망 주택[Lily Pad] - Saunders Architecture (0) | 2022.04.22 |
|---|---|
| 오스트리아 곡선 발코니를 가진 친환경 공동주택[Housing in Anton-Schall-Gasse] - trans_city / Christian Aulinger, Mark Gilbert (0) | 2022.04.18 |
| 내부 큰 전시벽을 가진 경사지붕주택[8.5 House] - DOG (0) | 2022.04.06 |
| 프랑스 숲 가장자리에 위치한 주택[MGG House] - PAN Architecture (0) | 2022.04.04 |
| 아르헨티나 투명도가 조절되는 파사드 주택[Housing Building Sucre 812] - Ana Smud + Alberto Smud (0) | 2022.03.29 |