2022. 4. 22. 22:31ㆍARCHITECTURE/RESIDENTIAL
The vernacular architecture of Muskoka has a distinctive quality of its own. This resort region, around two hours to the north of Toronto, is well known for its picturesque lakes and rivers, bordered by boathouses and cottages that make the most of the surroundings with their porches, decks, and terraces. Todd Saunders’ Lily Pad house, on the edge of Ontario’s Lake Rosseau, offers a 21st Century reinterpretation of Muskoka vernacular fused with a range of Modernist and contemporary influences drawn from North America and Scandinavia.
Saunders references the influence of the Muskoka vernacular tradition of outdoor rooms with a lakeside view, as well as mentioning the roof terraces commonly seen in countries like Morocco, where these elevated rooms are often one of the most tempting spaces in urban riads and townhouses. With Lily Pad, the roof terrace becomes the final destination within an ambitious ‘promenade architecturale’ – somewhat reminiscent of the journey seen at Le Corbusier’s iconic Villa Savoye (1931) – that takes you up from the ground plane towards the floating first floor and, finally, to the roof.
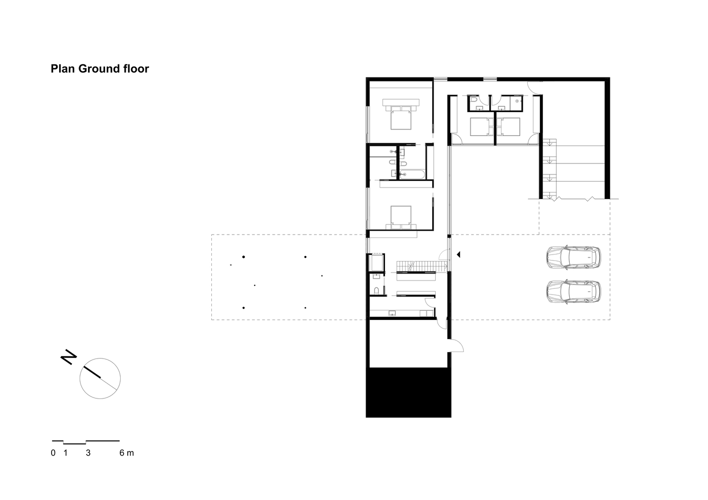
There is a choice of circulation routes that take you through the intriguing ribbon-like form of the house as the ground floor twists, turns, and ascends as it connects with the upper story. The imaginative plan of the house also offers a way of bypassing the two internal stairways at ground floor level, which features the entrance hall and four generously sized bedroom suites, as well as a much-loved media room with tiered seating around the junction between the two stories.
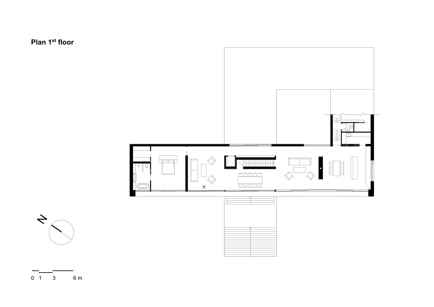
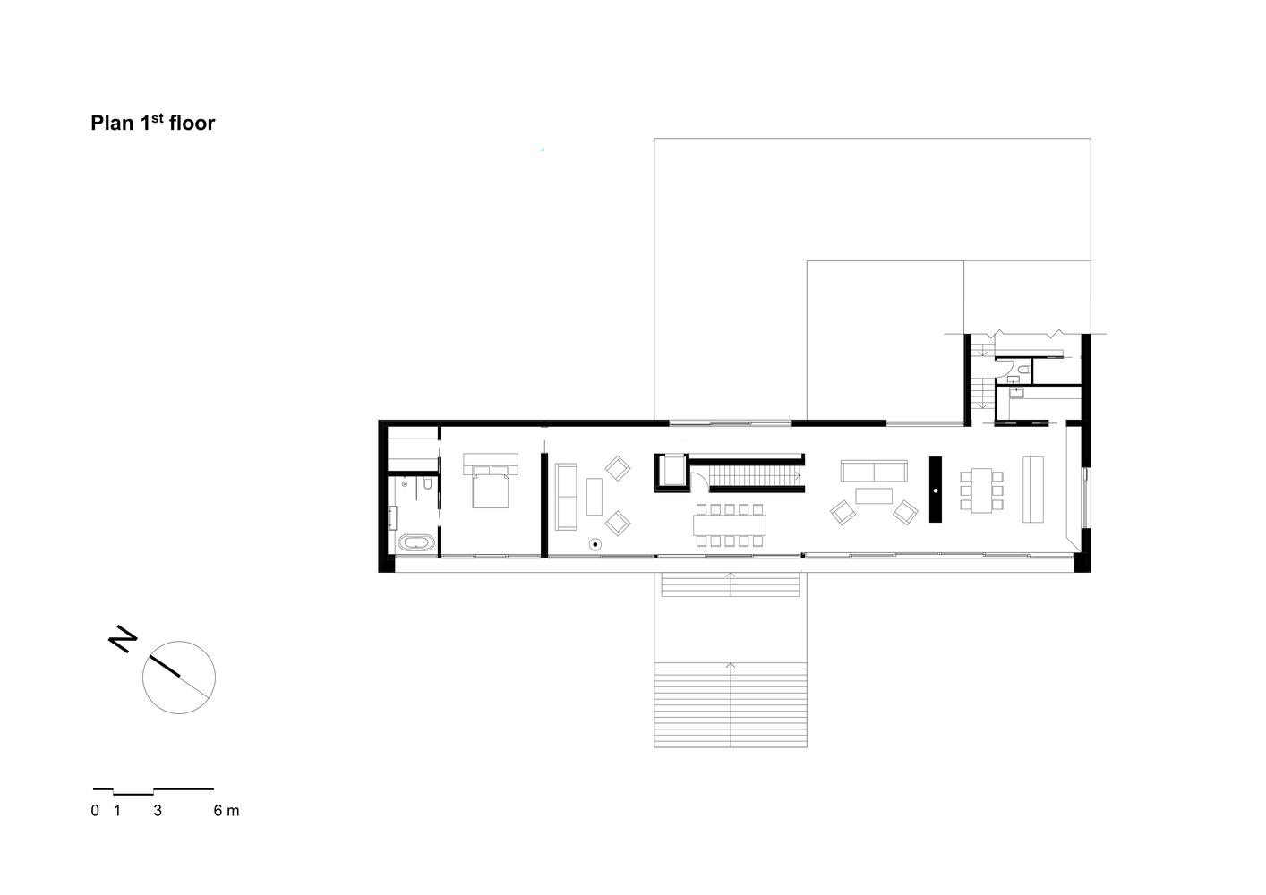
Alternatively, an external stairway at the front of the building provides a more direct link to a substantial, open-plan living space at the first-floor level with a sliding bank of glass facing the lake. When the glass slides back, this space becomes – in effect – an enticing open porch or ‘Muskoka room’. Offering zones for dining and seating arranged around a fireplace, as well as a bar, this is a flexible and fluid space. Although it can be used as a porch all year round, benefitting from this elevated position floating above the landscape, it comes into its own during the summer months in particular.
The clients’ master suite sits at the far end of the cantilevered bridge that forms the upper story. Floating beyond the main body of the house, the master bedroom levitates in a dramatic manner, becoming a lookout station facing the lake view to the front.
Conceived by Studio Author, Lily Pad’s interior design draws inspiration from the Lake Rosseau shoreline. The details and palette are reflective of the hues and patterns of the water, sand, and stone native to Muskoka. A curated selection of materials is repeated throughout the residence, creating a calm, thoughtful and holistic environment. The organic movement and watery hues found in the natural stone on the custom fireplaces and washroom vanities throughout compliments the otherwise sandy, neutral tones of the house. Subtly integrated lighting adds to the tranquil ambiance while highlighting the tactility of these materials.
Echoing the vista of the ever-present lake horizon, Studio Author created a visual horizontal plane that carries throughout the interior in the bespoke cabinetry of the closets, wall paneling, and doors, with a change in the wood grain direction above and below the datum line. Muted colors and softness were added by the largely custom furnishings, drapery, and area rugs to create a relaxing retreat away from the city.
Lily Pad
CANADA
Architects : Saunders Architecture
Area : 400 ㎡
Year : 2020
Photographs : Doublespace Photography, Niamh Barry






















from archdaily