2022. 4. 8. 17:40ㆍARCHITECTURE/COMMERCIAL & OFFICES
A number of occupants band together to collectively acquire property to execute a design according to their common interests. These interests can vary widely. Most joint building ventures simply want good-quality and affordable housing. Others want to jointly establish commercial and creative areas.
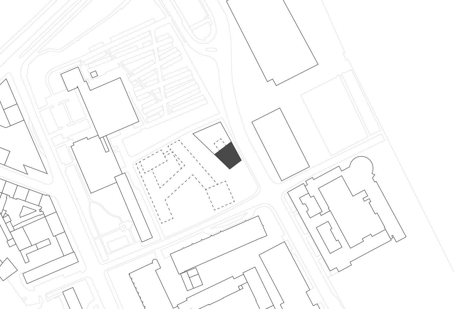
Our task was to design a building for a joint building venture composed of various social-democratic institutions, their roots stretching back over decades, indeed in part over centuries. How to start? By talking. By talking a lot: with the one institution and then with another one, and then with a third, and then back to the beginning again. One meets wonderful people and realizes that they all want the same thing: a commonplace that emanates a spirit of solidarity and collectivism.
How to find such a place? By searching. We jointly explored some 35 locations in Dresden before it became evident that the place had to come into being on Devrientstraße, behind the workshops of the „Semperoper“. Now it’s there, and it’s almost finished – the Herbert-Wehner-Haus.
From its architecture, you can see that it has come and has come to stay. And that’s what we wished the wonderful people who have an effect on this building – may the spirit of solidarity and collectivism appear, and may it remain forever!
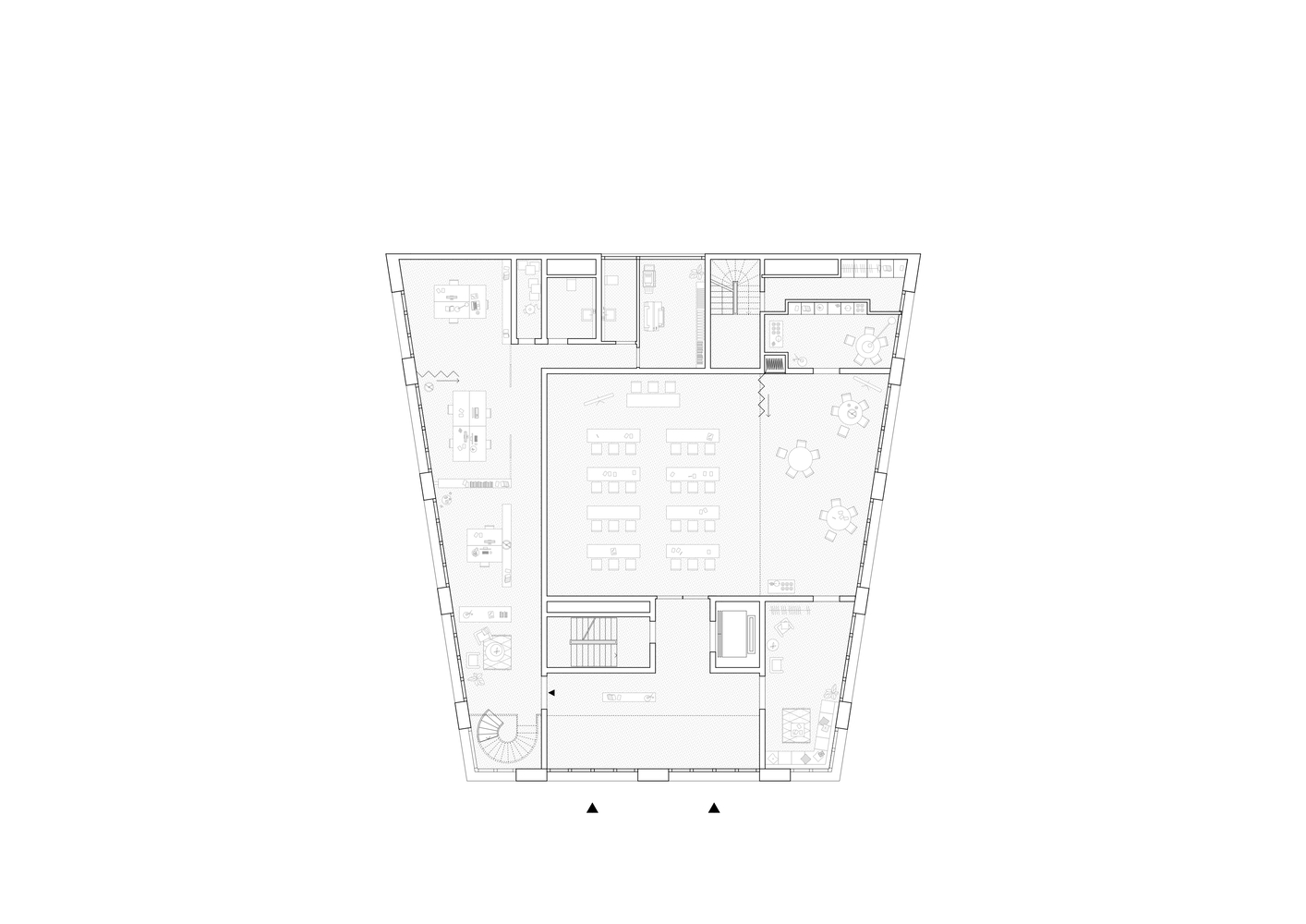
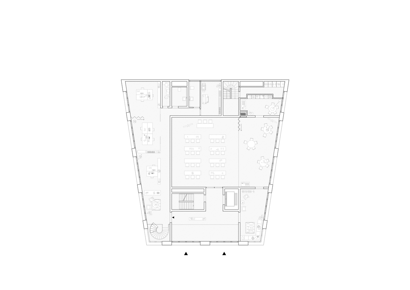
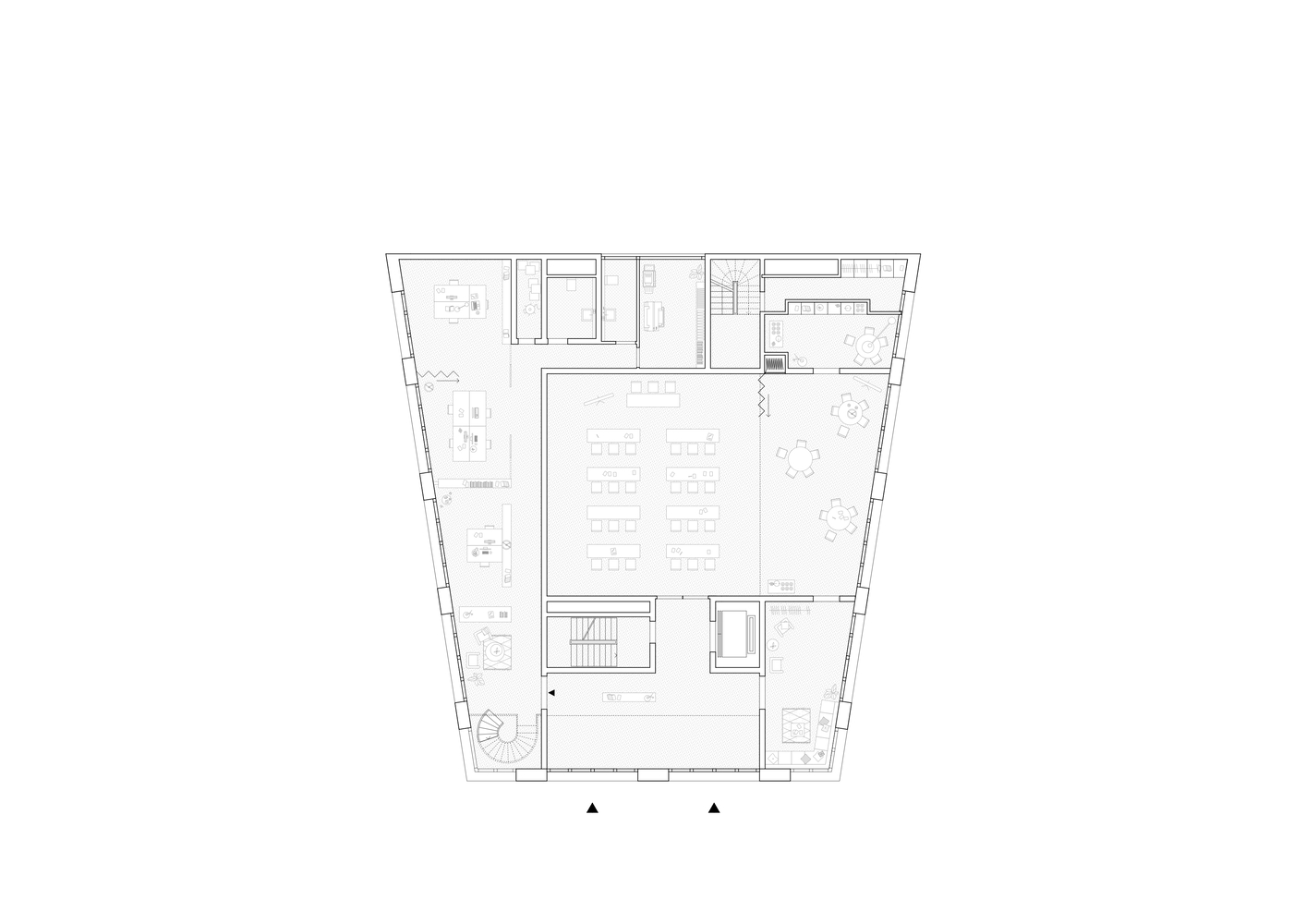
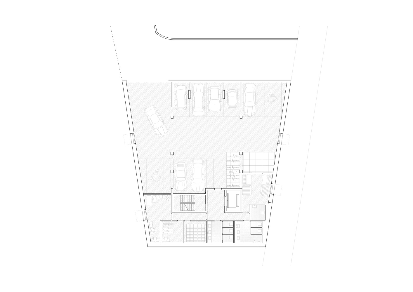
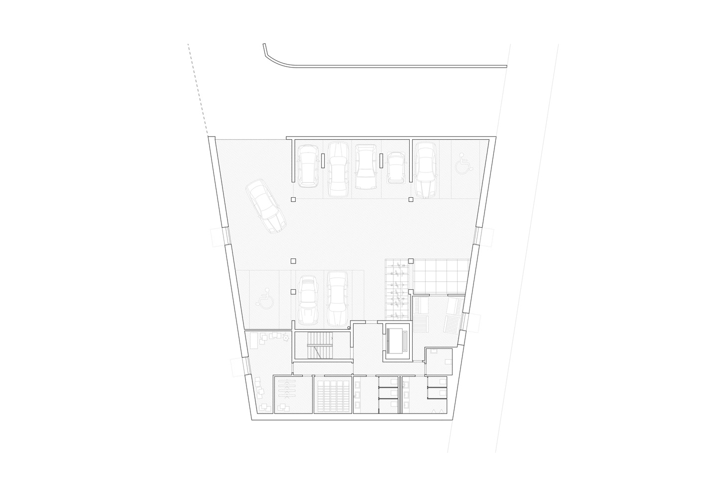
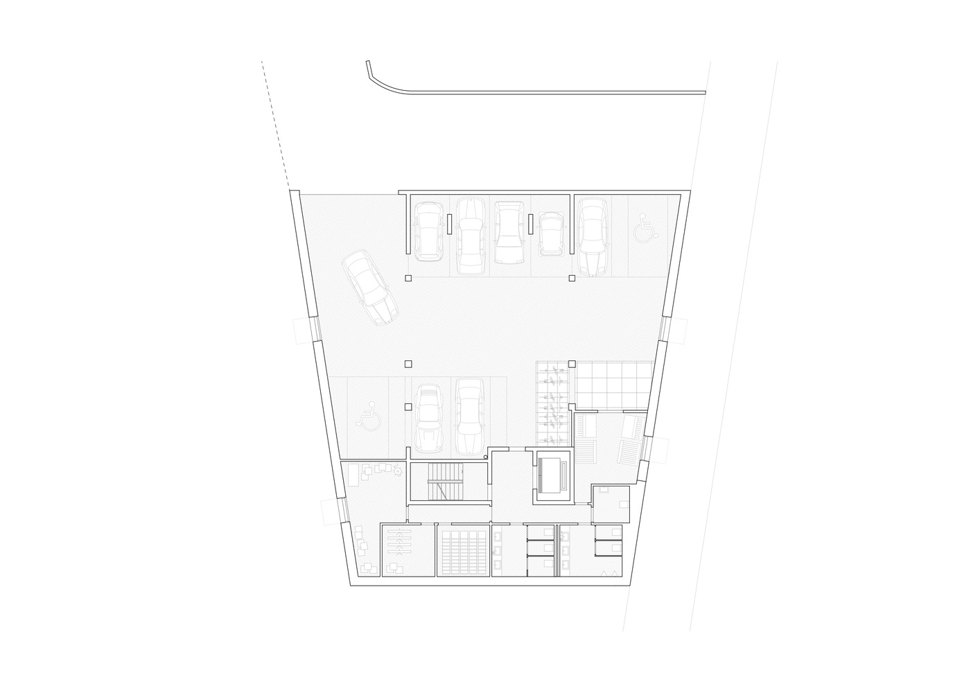
Herbert Wehner Haus
DRESDEN, GERMANY
Architects : JWA Berlin + Hinrichs Wilkening Architekten
Area : 3,500㎡
Year : 2019
Photographs : Simon Menges






























from archdaily
'ARCHITECTURE > COMMERCIAL & OFFICES' 카테고리의 다른 글
| 커다란 삼각형 원형 창문을 가진 레스토랑[Masa Restaurant] - Studio Cadena (0) | 2022.04.14 |
|---|---|
| 아늑한 베란다를 가진 와인바 레스토랑[Romea Morelos Store] - Antumbra estudio (0) | 2022.04.11 |
| 자연스러운 슬로프로 이어지는 카페 공방[Fujita Coffee] - Osamu Morishita Architect & Associates (0) | 2022.04.05 |
| 밀라노 애플 분수 광장[Apple Piazza Liberty] / Foster + Partners (0) | 2022.03.22 |
| 제주 상가 리노베이션[Kolon Sport Sotsot Rebirth Shop] - Schemata Architects (0) | 2022.03.10 |