2022. 5. 5. 21:10ㆍARCHITECTURE/INTERIOR
A concrete canvas for contemporary art. Location. ‘Oever’ is Dutch for shore or bank. The concrete kind. This new art gallery is located in the East Bank harbor area of Ostend, the only genuine city on the Belgian coast. Popularly called ‘Bruxelles plage’, it was historically linked to the capital of Belgium. The beau monde of Brussels loved traveling there for a seaside getaway. Today you still feel the faded glory of what once was a rich city. The city is a haven for creatives and even has its own street art festival. A fitting location for a contemporary art gallery with its own in-house coffee shop and store concept.
The story. The founders of Oever gave 5AM design studio carte blanche for the spatial design. The strong link with graffiti, street, and urban art formed the basis for the interior concept. The challenge consisted in keeping the gallery space for creative experiment, inspiring a new generation of artists on the one hand, but also radiating inviting energy for curious passers-by wandering inside for a coffee or a book.
Concept. 5AM decided to flip things around and recreated the typical street artist’s canvas, the concrete jungle, in a minimal, stripped-down version inside the gallery. The monochrome gray palette refers to the city’s hero color and roughness. Contrasting smooth and rough city textures are altered. Urban art often functions as cultural commentary, regularly infused with bold shapes and colors, pop-art inspiration, and recognizable cartoon characters, combined with a signature streak of sobering humor. Leave it to 5AM to integrate these elements in a subtle yet undeniable way.
Flow. The open-plan space can be divided into different zones by using a smart freestanding system that offers full flexibility and can easily be assembled or expanded whenever and wherever without the need for tools. Display elements and backgrounds in different sizes and colors can be added accordingly. “We created zones by using a flexible system and focal points that serve each activity individually. The overall gray shell and textured material mix provide a full experience. Functionality can and should be beautiful.” states 5AM designer Amber Feijen.
Opening exhibition. The opening exhibition consists of five contemporary pop-art artists: Ju Schnee, Yam Shalev, Soichi Yamaguchi, Maria Imaginario, and Marcela Florido.
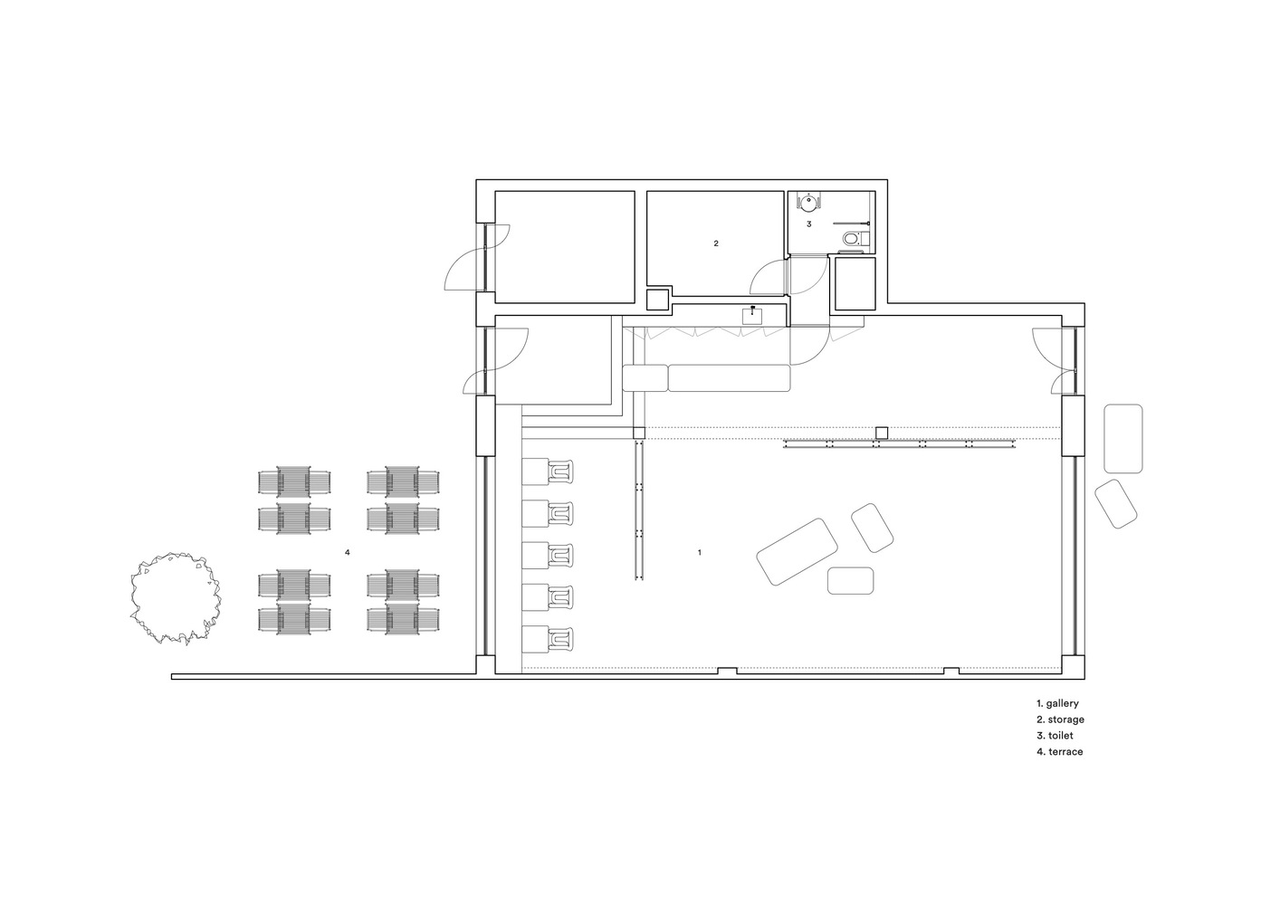
Oever Gallery
Ostend, Belgium
Architects : 5AM
Area : 150 ㎡
Year : 2022
Photographs : Skinn Branding Agency























from archdaily
'ARCHITECTURE > INTERIOR' 카테고리의 다른 글
| 고전 픽셀게임 분위기의 라면가게 인테리어[Ramen In The Video Game World] - 07BEACH (0) | 2022.06.15 |
|---|---|
| 상하이 물결 모양의 지하철 역사 인테리어[Shanghai Subway Line 14 Yuyuan Station] - XING DESIGN (0) | 2022.05.30 |
| 대만 개방감있는 중학교 도서관 인테리어[Hankou Junior High School Library] - TALI DESIGN (0) | 2022.05.04 |
| 문래 공장 리모델링 카페[PONT Mullae Café] - Studio stof (0) | 2022.03.11 |
| 오렌지색 카페 인테리어[Donut & Coffee Shop in Daejeon] - KKOL Studio (0) | 2022.03.04 |