2022. 6. 15. 17:03ㆍARCHITECTURE/INTERIOR
At the beginning of the project, the client told us the name of the Ramen shop, "Kaishin No Ichigeki" and we were free to design the rest. "Kaishin No Ichigeki" is a signature phrase from a famous old RPG that brings to mind nostalgic video games for everyone. The design was inspired by those early video games which are drawn with dots, low-resolution, and uniquely familiar. While taking inspiration from games, not to be too a childish game atmosphere, designed abstractly to some extent.
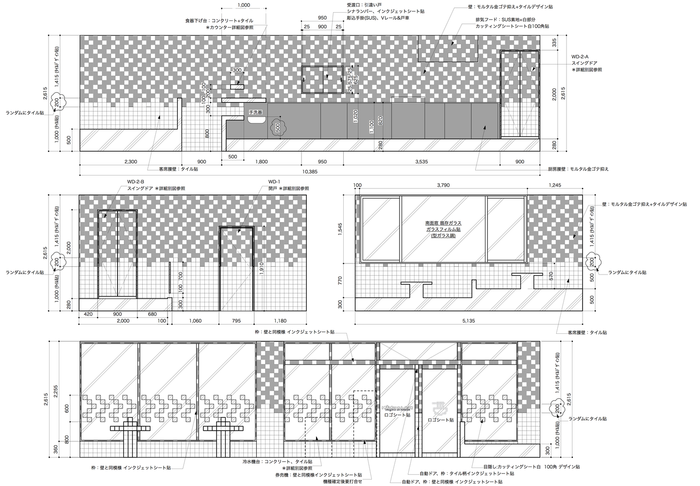
The materials used in this restaurant are commonplace and inexpensive such as white ceramic tile, wood, cement, and carpet tiles. It may also sound cliché to say that the space is inspired by video games. However, the combination and the forms of these ordinary materials make the space unique that can only be found here. Specifically, the walls are covered with a wavy noodle-like pattern with white tiles on gray mortar. The noodle pattern would be more recognizable if they have spaced farther apart, but the stripe impression would be stronger, so something like a checkered pattern that is a bit broken up and not quite recognizable was applied.
The Japanese word "つけめん"("Tsukemen" is dipping noodles, which are the signature of this shop) on the signboard is made up of cubes, which are like 3D development of pixel art. It is just cubes of wood stacked and painted yellow, but by considering the sign as a three-dimensional form, it clearly represents the design concept and catches the attention of passersby. The client wanted to avoid many condiments making the tabletop mess and asked us to design something to keep them hidden, a drawer, for example. We thought it would be better if each condiment, was like an item, you can get in a game, so we designed the condiment pedestal so that putting more condiments makes the interior better rather than hiding.
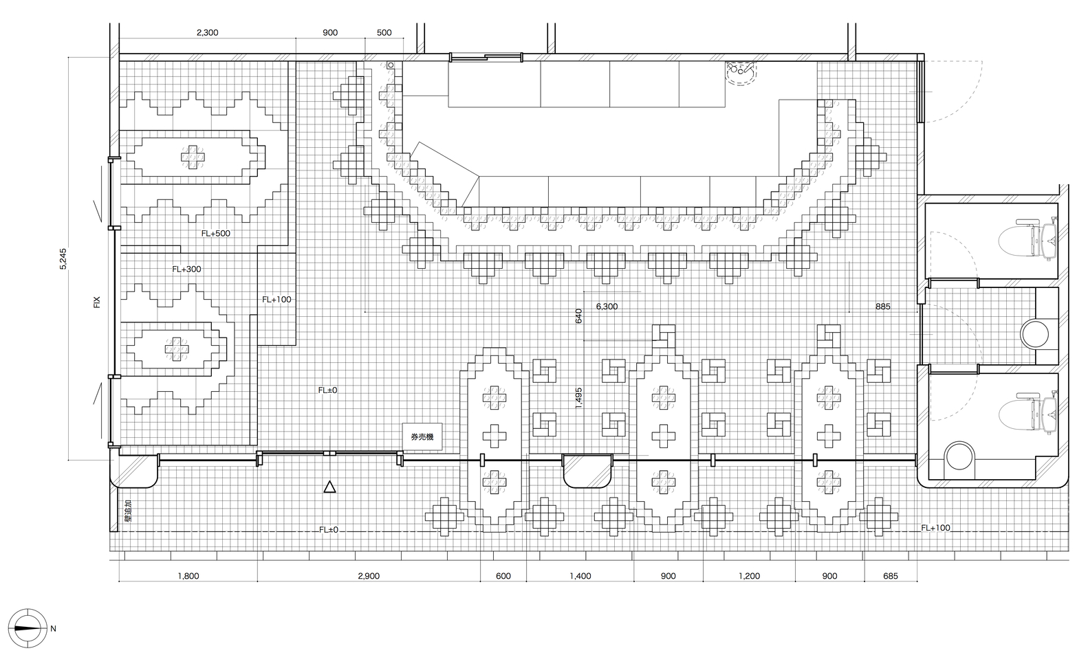
The seating area for groups was designed to look like a game castle, with a low wall to prevent children from falling and to create a bit of a private room feel. The wood and ceramic tile tops, and the carpet tiles on the floor, these materials are ordinary, but look unique with the combination and forms. The ready-made round legs of chairs are foreign to the interior composed only of squares and straight lines, but such a little design noise makes the space friendlier than adherence to the design concept. After the major direction of the design inspired by games was decided, the accumulation of detailed design studies to what extent each element could be presented attractively created a unique atmosphere in the space.
Ramen In The Video Game World
OKINAWA, JAPAN
Architects : 07BEACH
Area : 76 ㎡
Year : 2022
Photographs : Yoshiaki Ida





























from archdaily
'ARCHITECTURE > INTERIOR' 카테고리의 다른 글
| 생산공간 전시공간의 관계가 돋보이는 베이커리[Kora Bakery] - en-route-architecture (0) | 2022.06.29 |
|---|---|
| 베이징 유연한 공간을 가진 서점[Jetlag Bookstore] - +C Architects (0) | 2022.06.17 |
| 상하이 물결 모양의 지하철 역사 인테리어[Shanghai Subway Line 14 Yuyuan Station] - XING DESIGN (0) | 2022.05.30 |
| 벨기에 회색 콘크리트 갤러리 인테리어[Oever Gallery] - 5AM (0) | 2022.05.05 |
| 대만 개방감있는 중학교 도서관 인테리어[Hankou Junior High School Library] - TALI DESIGN (0) | 2022.05.04 |