2022. 6. 29. 17:13ㆍARCHITECTURE/INTERIOR
Bread has always been more than just dough. So why not celebrate its sale and production? Instead of following traditional concepts of bakery aesthetics, this project focused on an honest emphasis on its essential ingredients: space and baked goods. Situated slightly off the main commercial streets of central Athens, the initial space offered an unusually elevated and recessed terrace space.
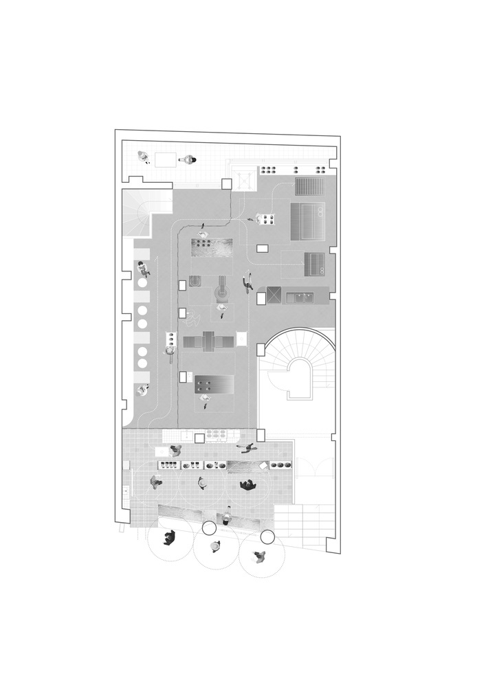
The KORA storefront and bakery thus represent a kind of stage for the production and display of baked goods. The presentation of these goods and their accompanying production processes are conceived as a transparent spectacle. The process of baking and the presentation of goods are perceived through a large wall of rotating metal shelves. Changing scenarios of open, semi-open, and closed facade elements allow not only for views of different types of products but also into the production space itself.
The threshold between inside and outside is joined by an interactive perforated metal wall. A kinetic wall that can act as a shutter, an aperture, or a display surface. The metal wall is comprised of 50 individual trays that rotate independently around a central axis into different positions. When vertical they offer the least transparency while allowing for views of silhouettes and light coming through the perforation of the metal.
When horizontal they provide the maximum transparency by acting as a functional surface for display, ready to accommodate a great variety of baked goods. Finally, the 45-degree angle allows for partial views of the background as well as an ideal product display for the visibility of customers. Through the addition and sale of different goods, the kinetic wall is thus always changing in its outer appearance. It simultaneously acts as a shutter, boundary towards the outside, aperture to the spectacle of baking, and a mechanism for displaying baked products along with different scenarios.
Apart from creating a functional spectacle, hygiene and maintenance played further key roles in the selection of materials and colors. Together with the moveable kitchen machinery, the light-colored, durable, and non-porous surfaces of the lower half embody a sort of atmospheric lightness. They thus not only symbolize but literally are areas that require daily cleaning and low maintenance. In contrast, all elements on the ceiling and above the required hygienic level of 2 meters, relate to mechanical and lighting systems.
Due to the elevated nature of the space, this second facade is especially visible from the street level. The typically incoherent industrial character of such devices was thus camouflaged through the application of a monochromatic color tone that also complements the existing upper building. The ceiling and all its details thereby become less prominent while increasing access and adaptability through the full exposure of mechanical and lighting elements.
The celebration of functional elements on the inside compliments the perpetually changing spectacle in and around the façade. Producing and consuming bread (and pastries) turns into a performance, whereby the boundaries between performers and spectators are blurred.
Kora Bakery
ATHENS, GREECE
Architects : en-route-architecture
Area : 200㎡
Year : 2020
Photographs : Mariana Bisti































from archdaily
'ARCHITECTURE > INTERIOR' 카테고리의 다른 글
| 피아노를 닮은 안경 스토어[Imagine Polette Antwerp Store] - zU-studio (0) | 2022.07.20 |
|---|---|
| 베이징 유연한 공간을 가진 서점[Jetlag Bookstore] - +C Architects (0) | 2022.06.17 |
| 고전 픽셀게임 분위기의 라면가게 인테리어[Ramen In The Video Game World] - 07BEACH (0) | 2022.06.15 |
| 상하이 물결 모양의 지하철 역사 인테리어[Shanghai Subway Line 14 Yuyuan Station] - XING DESIGN (0) | 2022.05.30 |
| 벨기에 회색 콘크리트 갤러리 인테리어[Oever Gallery] - 5AM (0) | 2022.05.05 |