2022. 5. 9. 17:30ㆍARCHITECTURE/RESIDENTIAL
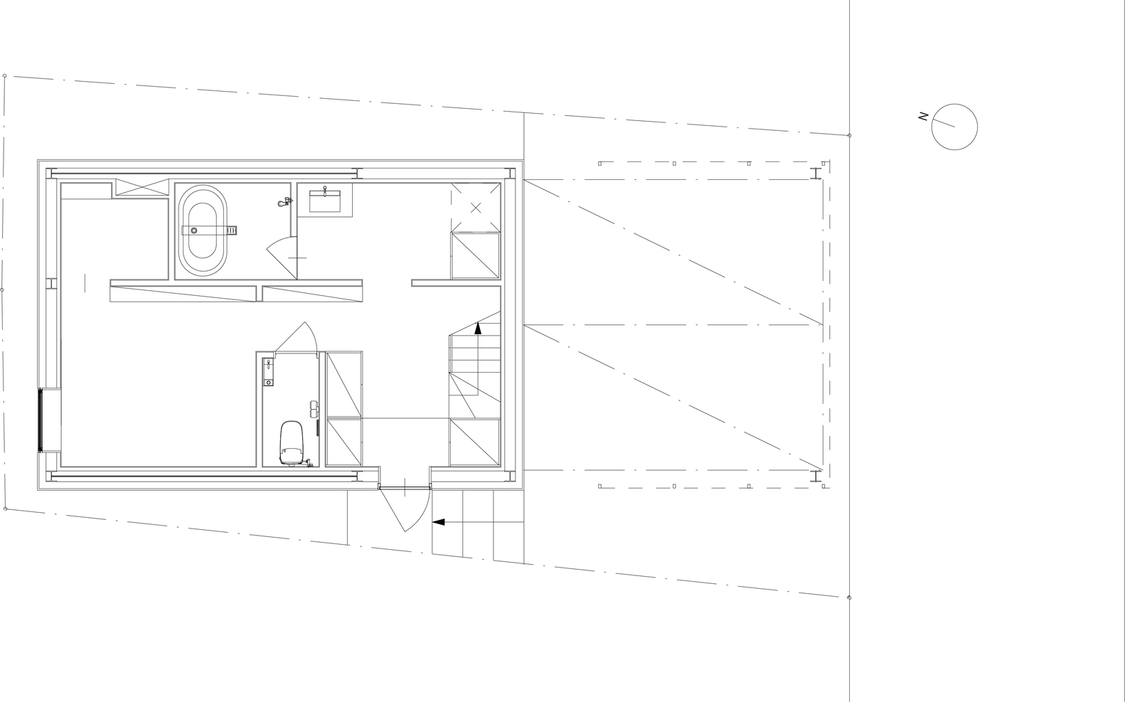
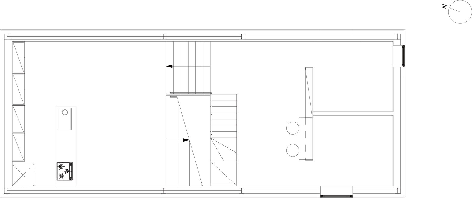
Looking at the aquarium that reproduces the inside of the sea through the glass, wide-open areas, shades of rocks and plants, cave-like holes, etc. Places with various properties are mixed in an unseparated space. It opens towards the surface of the water at the top and brightens, the fish come and go on each level while performing activities suitable for the place.
An urban dwelling that requires multiple layers to be established. If we can develop such a space as underwater, I thought it would be possible to create a spacious place to live without feeling cramped.
When you put yourself inside the actual building, it looks like underwater Spaces in each layer with different properties are connected without breaks, when I was invited by the light that shines from the top to the bottom and went up, it reaches a semi-external space surrounded by walls on all four sides and only the upper part is open.
The upper end of the wall opened above it is like the surface of the water looking up from the water. Feel like you are in the most open zone. It is a residential building that gets closer to the outside as it gets farther from the ground.
Aquarium House
YOKOHAMA, JAPAN
Architects : NAO IWANARI Architecture
Area : 109 ㎡
Year : 2022
Photographs : Satoshi Shigeta




















from archdaily
'ARCHITECTURE > RESIDENTIAL' 카테고리의 다른 글
| 이스라엘 콘크리트 주택 인테리어[K House] - Ronnie Alroy Architects (0) | 2022.05.13 |
|---|---|
| 프랑스 일조를 고려한 형태의 주거단지[Riveo Lot B Residential Building] - JA Joubert Architecture (0) | 2022.05.10 |
| 얇고 큰 처마를 가진 지적 장애인 그룹홈[Group Home on Hilltop] - SOGO AUD (0) | 2022.05.02 |
| 철망과 식물로 둘러쌓인 산책로가 있는 집[Weather House, Tokyo] - not architects studio (0) | 2022.04.29 |
| 양양 하조대 바닷가 숙소[Ho Me Yang Yang House] - STAY Architects (0) | 2022.04.27 |