2022. 5. 13. 17:16ㆍARCHITECTURE/RESIDENTIAL
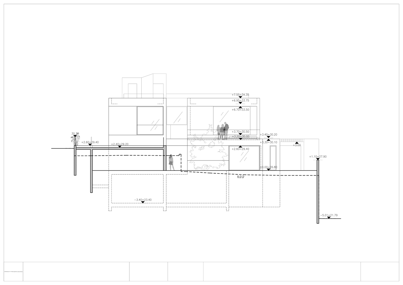
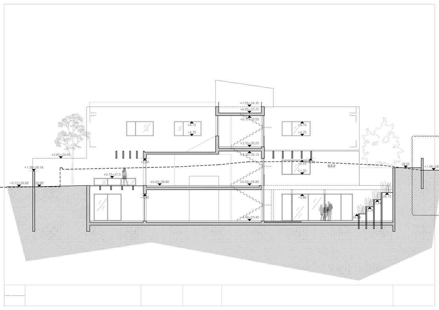
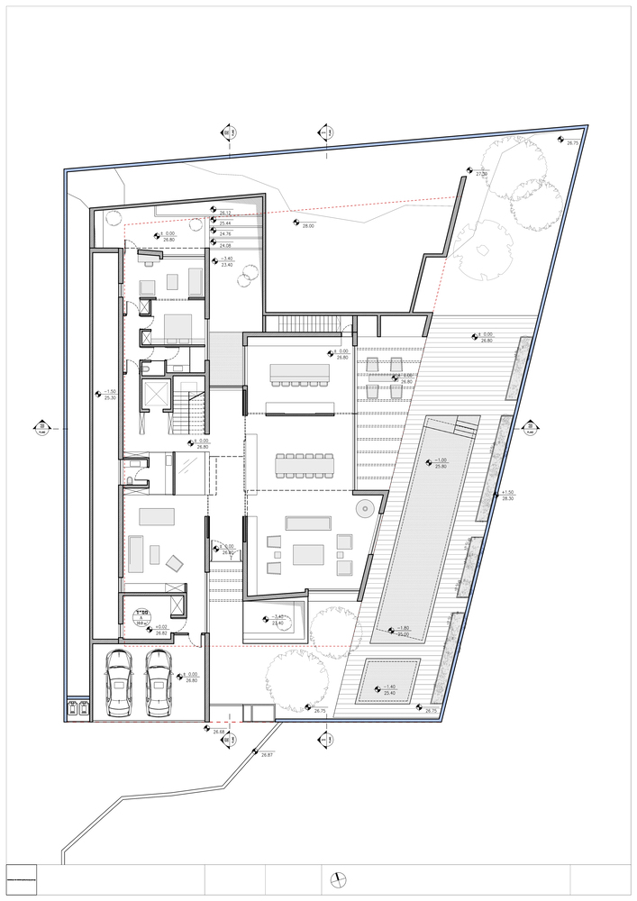
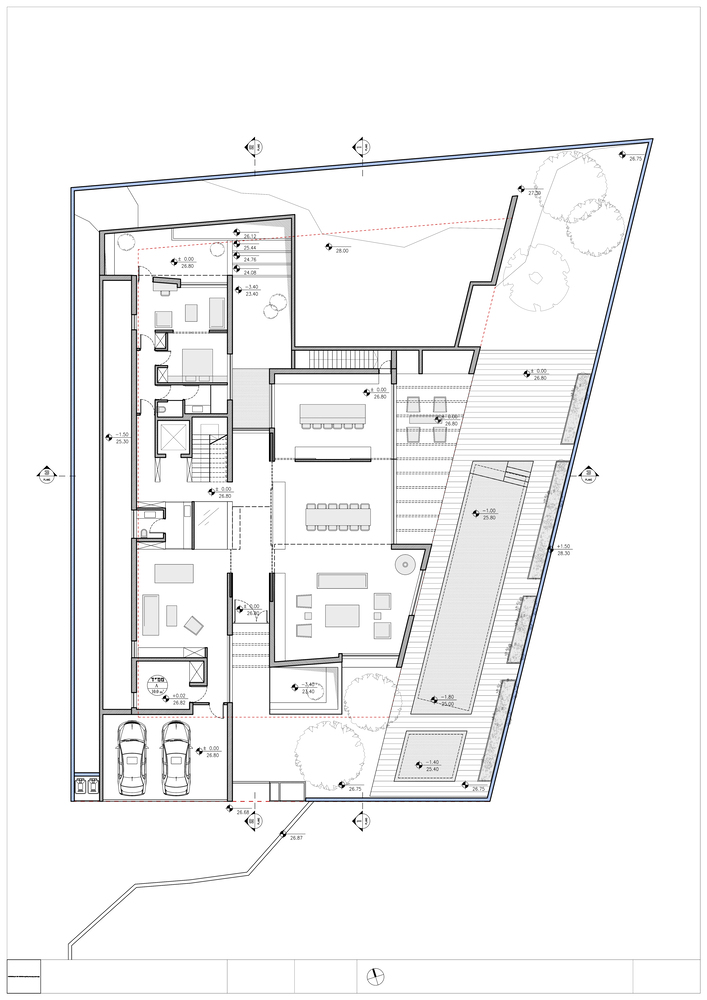
Light and green pour on the concrete walls accentuating their depth. The Entrance to the house is through the main axis, defined in the three levels by two exposed concrete walls, with an opening looking to a terraced garden at its end. The main axis is accompanied by a rhythm of exposed concrete beams appearing outside before the entrance door, continuing outside to the opposite garden.
Between two of the concrete beams hides a skylight turning the axis into an avenue of light. The light goes all the way to the basement through a glazed opening on the floor. The glazed opening connects the entrance floor and open space in the basement.
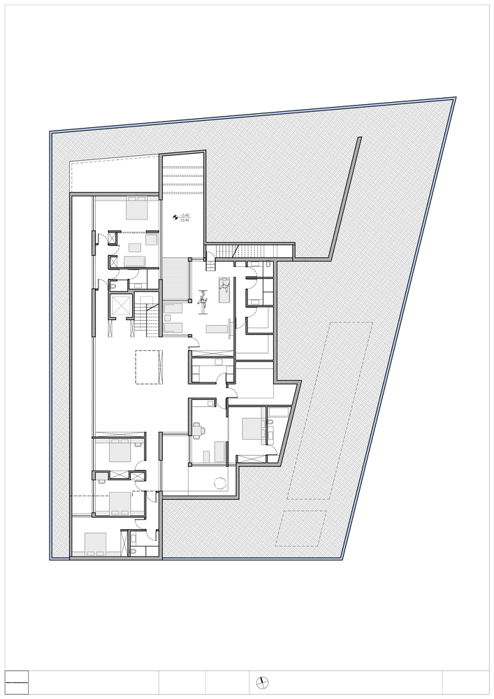
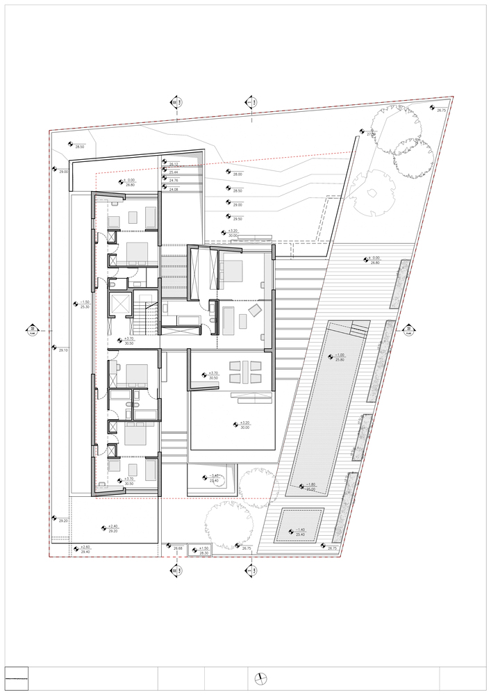
The main axis separates the house into a hosting wing, where all the guests' living units are, and the owner's wing where the public spaces and master bedroom are. The master bedroom on the second floor, enjoys two opposite interactions with the surrounding landscape – a terrace with a view of the treetops and a sloped terrain on the other side, allowing a way out to a wild garden connecting to the entrance level.
The house is surrounded by exterior courtyards which are interior-exterior spaces. The walls of the courtyards celebrate the plasticity of the concrete making a place for green and art in different ways- deep niches, double walls with plants in between, and sloping green terraces. The concrete gains a subtle feel by the presence of Douglass solid wood as floors and cabinetry. An interplay of transparencies and solidity, depth, and airiness construct the overall experience of the house.
K HOUSE
ISRAEL
Architects : Ronnie Alroy Architects
Area : 900 ㎡
Year : 2022
Photographs : Amit Geron



































from archdaily
'ARCHITECTURE > RESIDENTIAL' 카테고리의 다른 글
| 스위스 학생과 정신약자가 함께사는 공동주택[Pasodoble Housing] - Nomos (0) | 2022.05.20 |
|---|---|
| 칠레 경사지붕 목재 주택[Aladino House in Puerto Varas] - Iván Bravo (0) | 2022.05.17 |
| 프랑스 일조를 고려한 형태의 주거단지[Riveo Lot B Residential Building] - JA Joubert Architecture (0) | 2022.05.10 |
| 아쿠아리움하우스[Aquarium House] - NAO IWANARI Architecture (0) | 2022.05.09 |
| 얇고 큰 처마를 가진 지적 장애인 그룹홈[Group Home on Hilltop] - SOGO AUD (0) | 2022.05.02 |