2022. 5. 17. 13:45ㆍARCHITECTURE/RESIDENTIAL
Beguiled by the natural endowments of the southern region of Los Lagos, the government of the then still young Chile, in the mid-19th century, drew up a colonization plan with the aim of consolidating its sovereignty, and in the endeavor was helped by German immigrants, who had come with their know-how and raised the same Alpine timber dwellings they had left behind in the Old Continent.
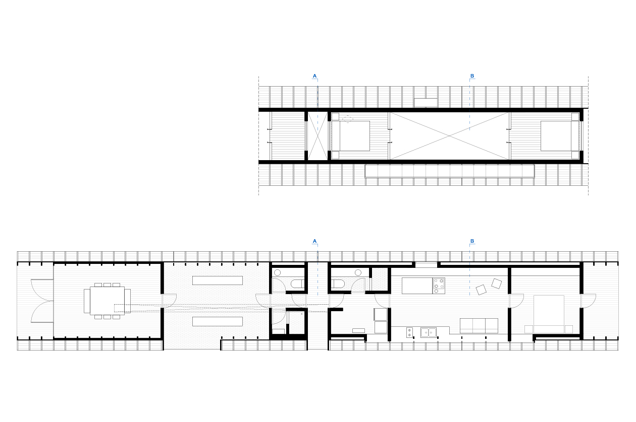
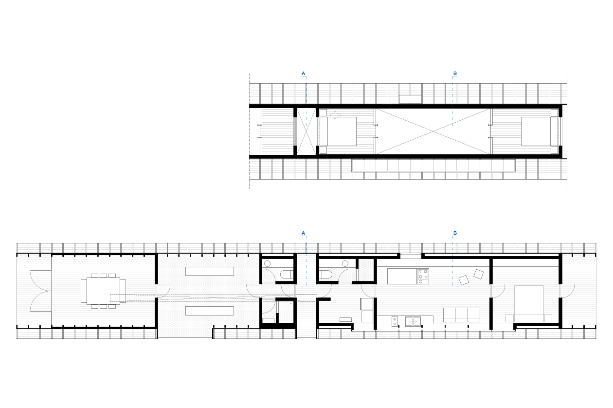
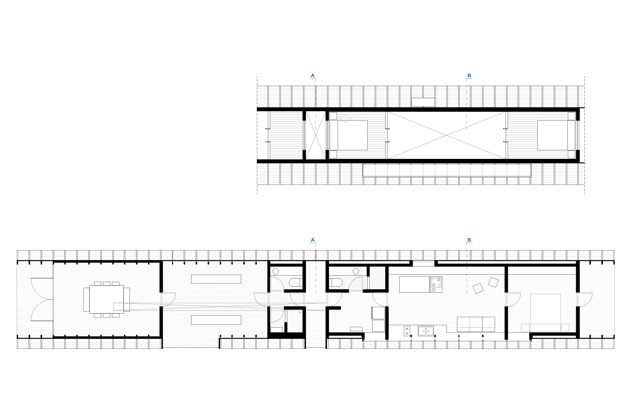
This house is like a revival of the Fachwerk tradition, with a frame set on piles in order not to interrupt the ocacasional run-off of water from a lake located in the vicinity. Intended as a home for the keeper of the large property it stands on, the building applies a rigorous geometry to place all the rooms in a row, under a roof of two steep pitches, in the process dispensing with outer walls in the proper, vertical sense, and using the rhythmic order of the subframe of untreated wood to break the silence of the opaque roof-facade.
Aladino House in Puerto Varas
Puerto Varas, Chile
Architects : Iván Bravo
Year : 2022
Photographs : Marcos Zegers





















from arquitecturaviva
'ARCHITECTURE > RESIDENTIAL' 카테고리의 다른 글
| 성북구 노란색 포인트를 가진 공동주택[Yellow Foot Residential Building] - OA-Lab (0) | 2022.05.23 |
|---|---|
| 스위스 학생과 정신약자가 함께사는 공동주택[Pasodoble Housing] - Nomos (0) | 2022.05.20 |
| 이스라엘 콘크리트 주택 인테리어[K House] - Ronnie Alroy Architects (0) | 2022.05.13 |
| 프랑스 일조를 고려한 형태의 주거단지[Riveo Lot B Residential Building] - JA Joubert Architecture (0) | 2022.05.10 |
| 아쿠아리움하우스[Aquarium House] - NAO IWANARI Architecture (0) | 2022.05.09 |