2022. 5. 27. 13:22ㆍARCHITECTURE
A 50-year-old chapel. It is an old building that leaks when it rains and there is no insulation to block the cold wind in the middle of winter. We needed a new building, but at the same time, we had to think about which parts should be kept as before. A stone wall surrounds the site.
Personally, I like the rough-textured stone wall. I thought that stonework with smooth boulders attached with cement was not natural. But sometimes, warm memories are more important than stylish looks. I did not have the courage to tear down the stone walls they had built one by one, so I decided to leave a trace of time. I left a mark of sincerity and memory. The proud and dignified fir tree on the side of the site had to be preserved as well. It adds stability and balance to the new building as if it were the original owner of the land.
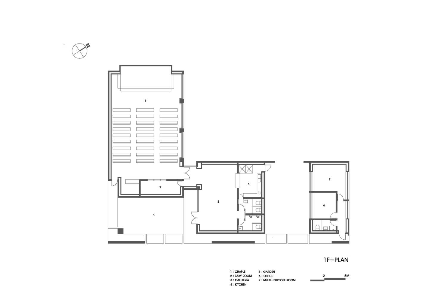
The white and gray exterior walls and the dark achromatic roof give the impression of cleanliness and simplicity with the green forest in the background. Although it is about 350 square meters in size, the building is spread out on ample land and a slim shape of 35 meters was created. Rather than concentrating the building in one place and having a large garden. Segmenting and dividing the land into multiple domains is sometimes a good strategy. In a dense city, it would be impossible in the first place, but we decided to make the most of the land.
A variety of external spaces, including the front garden, backyard, and courtyard, were inserted between the buildings, enabling a rich experience. The three gable roofs soaring like brothers were surrounded by exposed concrete plates. The concrete plate forming the layer created a sense of depth, and the movement lines were organized. Inner space. The interior is decorated with natural light and made of bricks and exposed concrete. A box filled with light was put in the front of the chapel. A soft light filled in through the low, elongated window on the side.
Papo Church
Hwacheon, South Korea
Architects : Oh Jongsang
Area : 352 ㎡
Year : 2022
Photographs : Oh Jongsang


















from archdaily