2022. 6. 8. 12:57ㆍARCHITECTURE
Keelung, the northmost city on Taiwan's main island, is one of the earliest developed cities in northern Taiwan. It is a mountainous and rainy harbor city with more than 90% hills. Those coastal areas and steep hills form a beautiful natural landscape in the city yet are architecturally challenging sites. The climate and landscape result in flood planes in lower areas and landslides in the mountainous areas. Thus, the site selection of the Keelung City Fire Department Nuannuan branch is on the edge of the old city, interfacing the hilly natural environment.
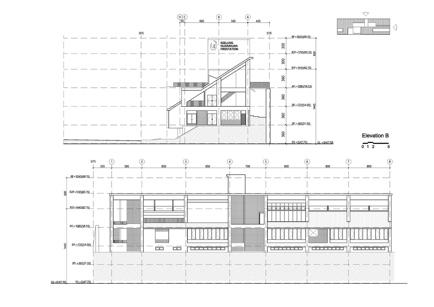
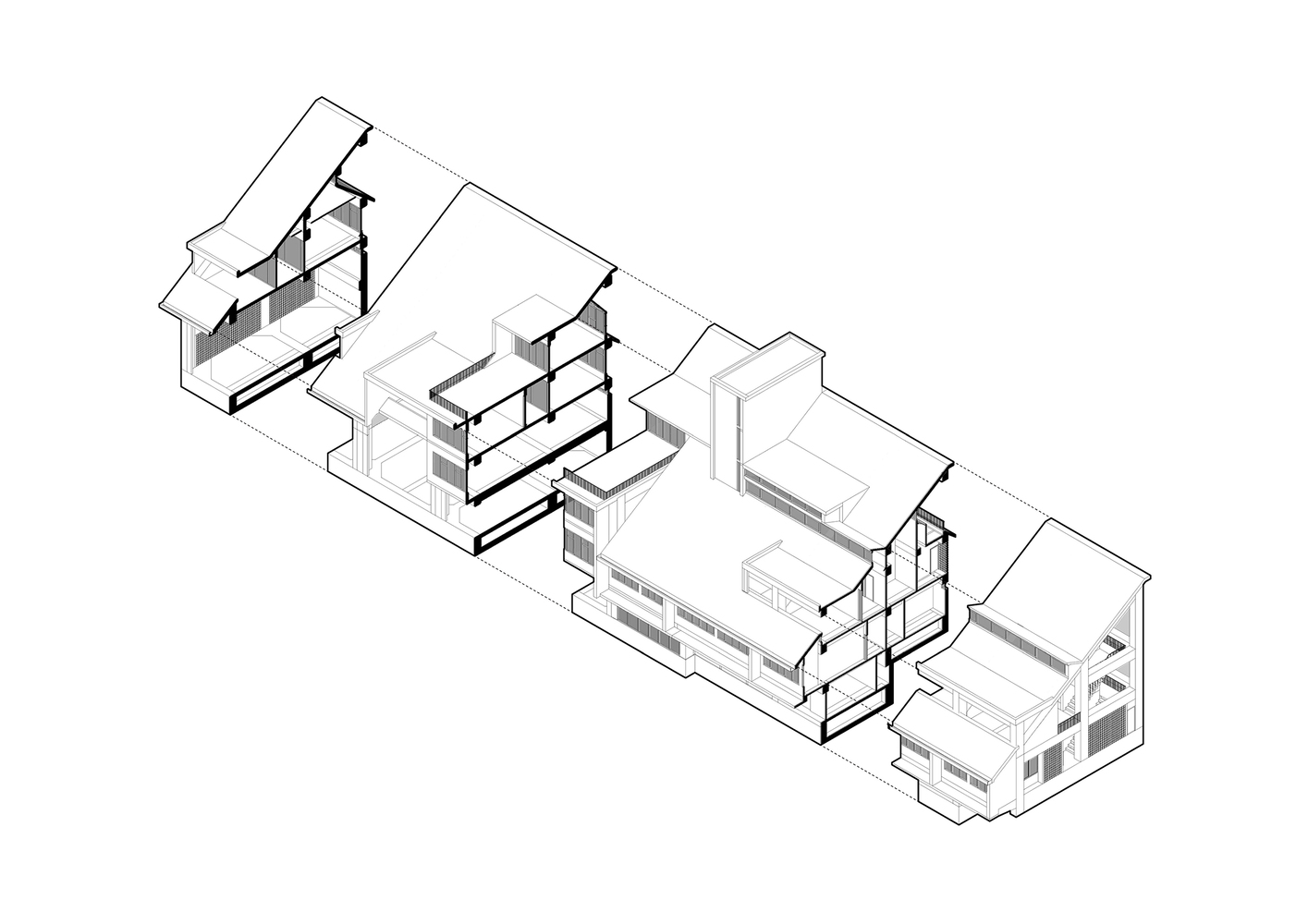
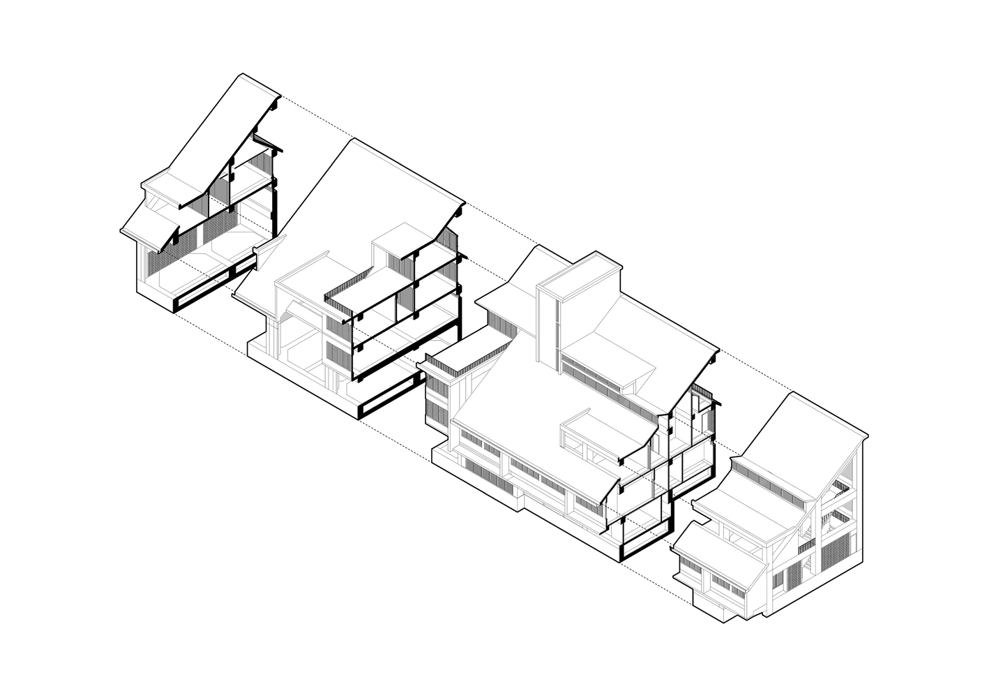
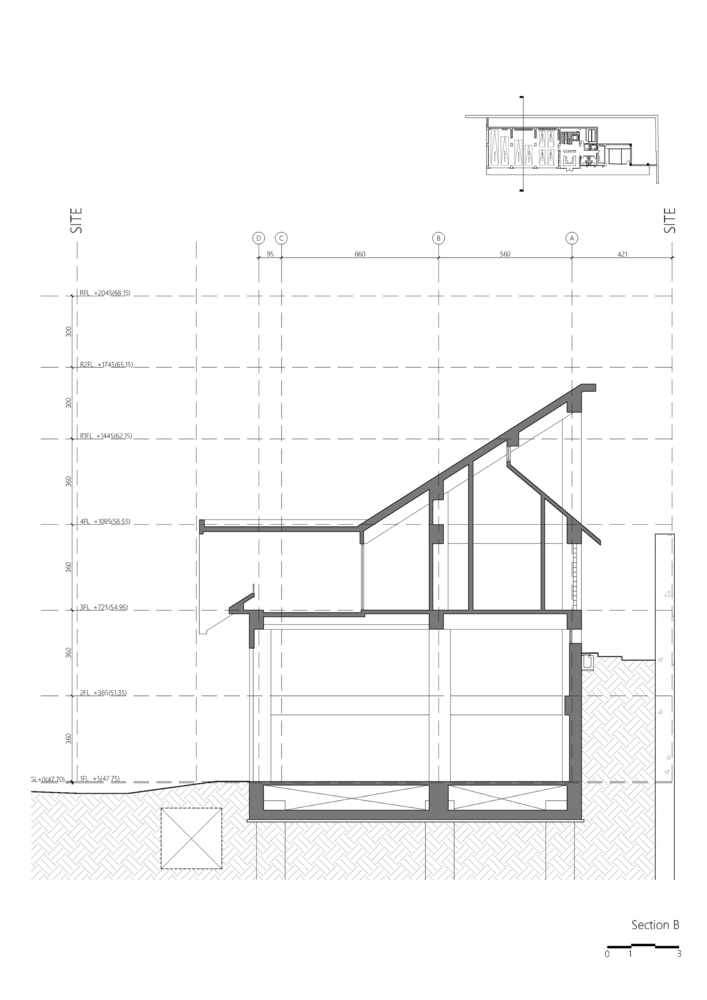
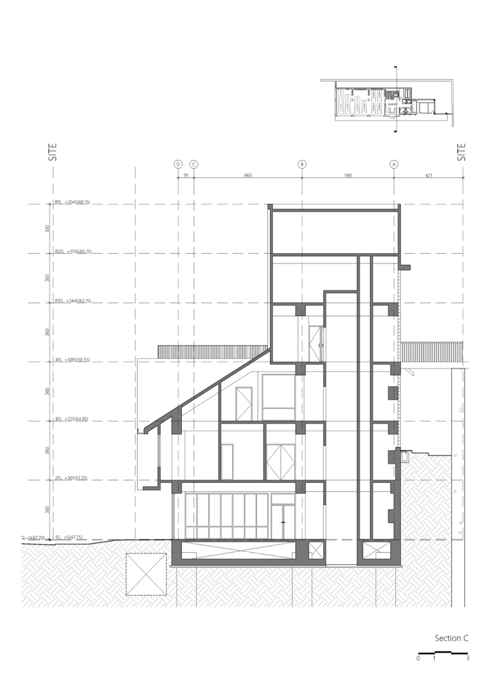
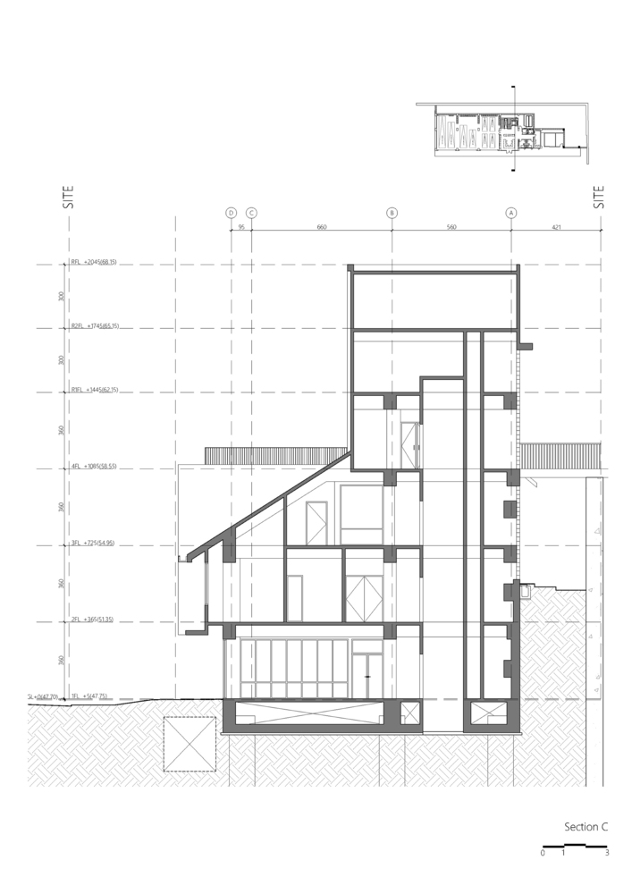
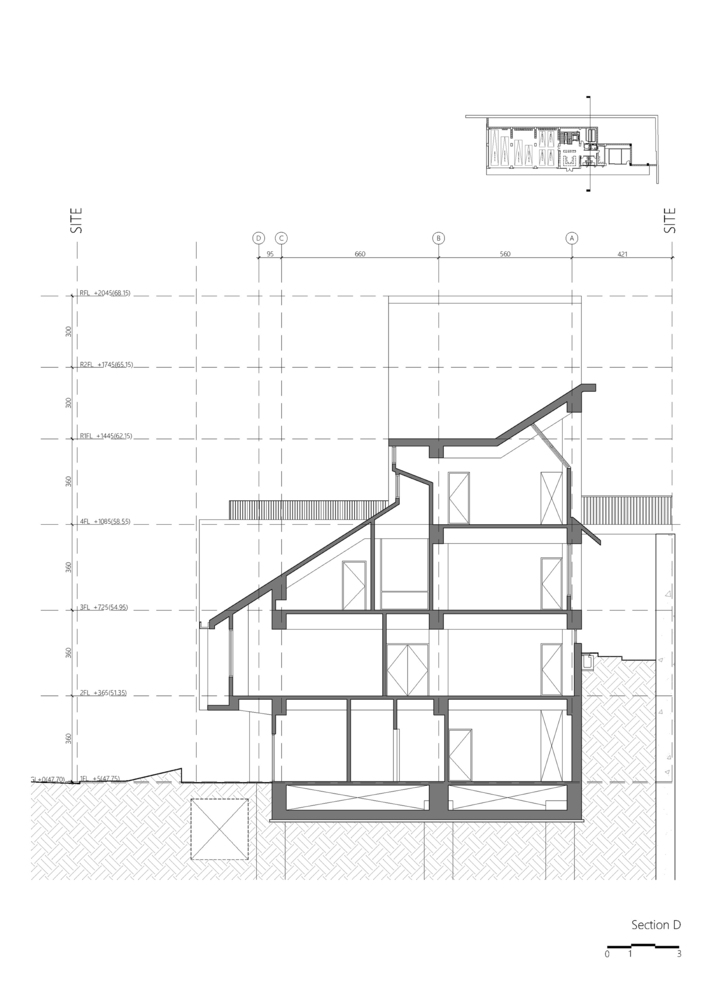
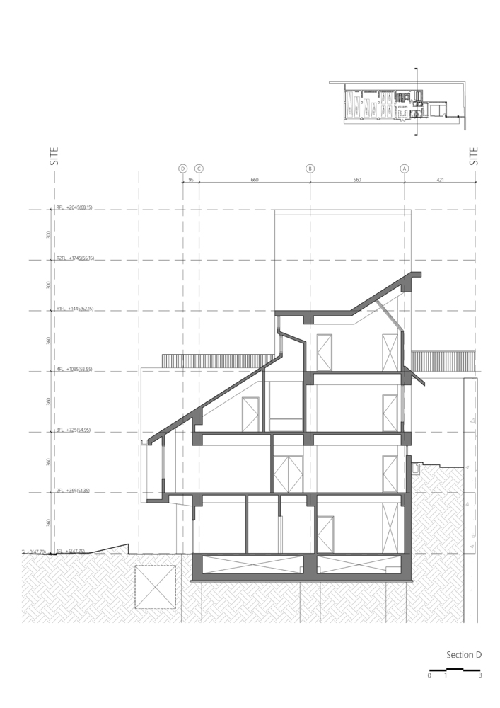
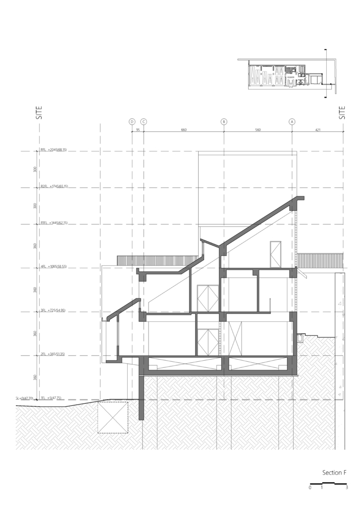
The site is located on a steep hill of an average 50% slope where the urban landscape is uniquely blending into the natural landscape. The Keelung residents are used to living in this humid rainy mountain. There is an indigenous building style of this area, generally called “mountain house” in Taiwan, that we have taken into our main building elements to adapt to the local landscape and climate. The big sloping roof is a new layer of the mountain skin. The balconies and openings form unique spaces in between the landscape and the building. There are people and activities going in and out through this new layer.
In the rainy and mountainous areas of Taiwan, leakage has always been the most challenging part of building maintenance. And being in an earthquake region makes it worse for the waterproof layer. This big slope roof not only follows the mountain landscape but also minimizes the time of water staying on the roof, therefore, improving the rainwater drainage. The low roof edge also responds to the scale of the local living environment. The balconies create additional depth in the summer to avoid direct sunlight but still allow ventilation. In the rainy season, it creates the airflow for the ventilation going out towards the skylights. The central staircase also acts as the chimney to vent the hot air.
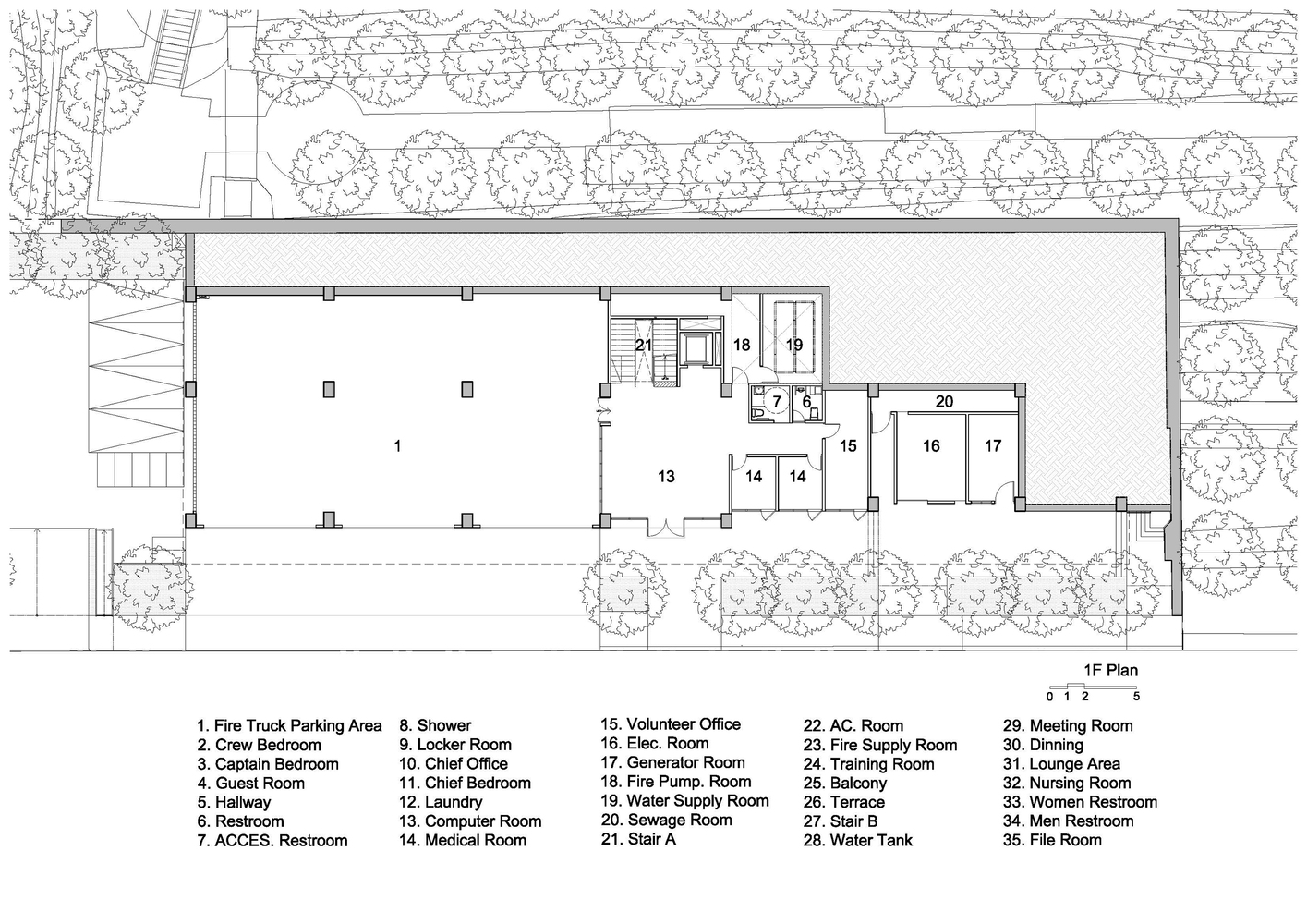
A fire station could be a very important landmark in a neighborhood. The design has to be symbolic yet still blend into the environment, it is on the path from the public transport stop to the sports park right above the project site. Therefore, it is crucial to design the interface of the urban texture and the exterior space of the street level of the building. There are connections of street pockets providing visual guidance and natural shades for rain or sun. People can also take the scenic path right by the fire station to access the park. It visually connects the east-end bridge, park, and natural landscape. It is a statement of the fire station is part of residents’ lives.
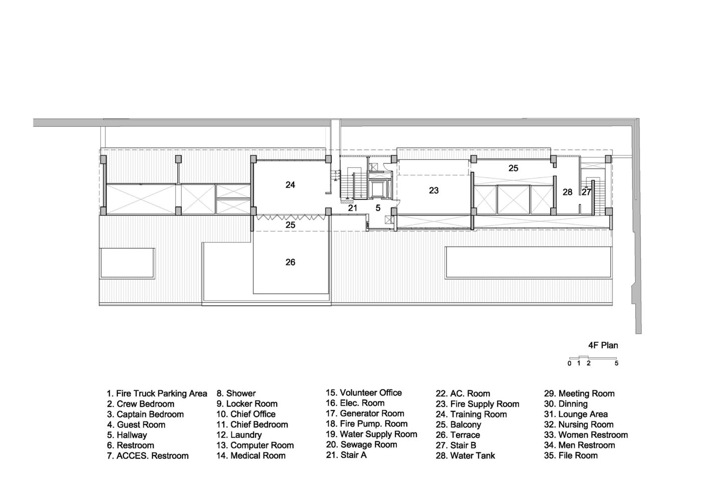
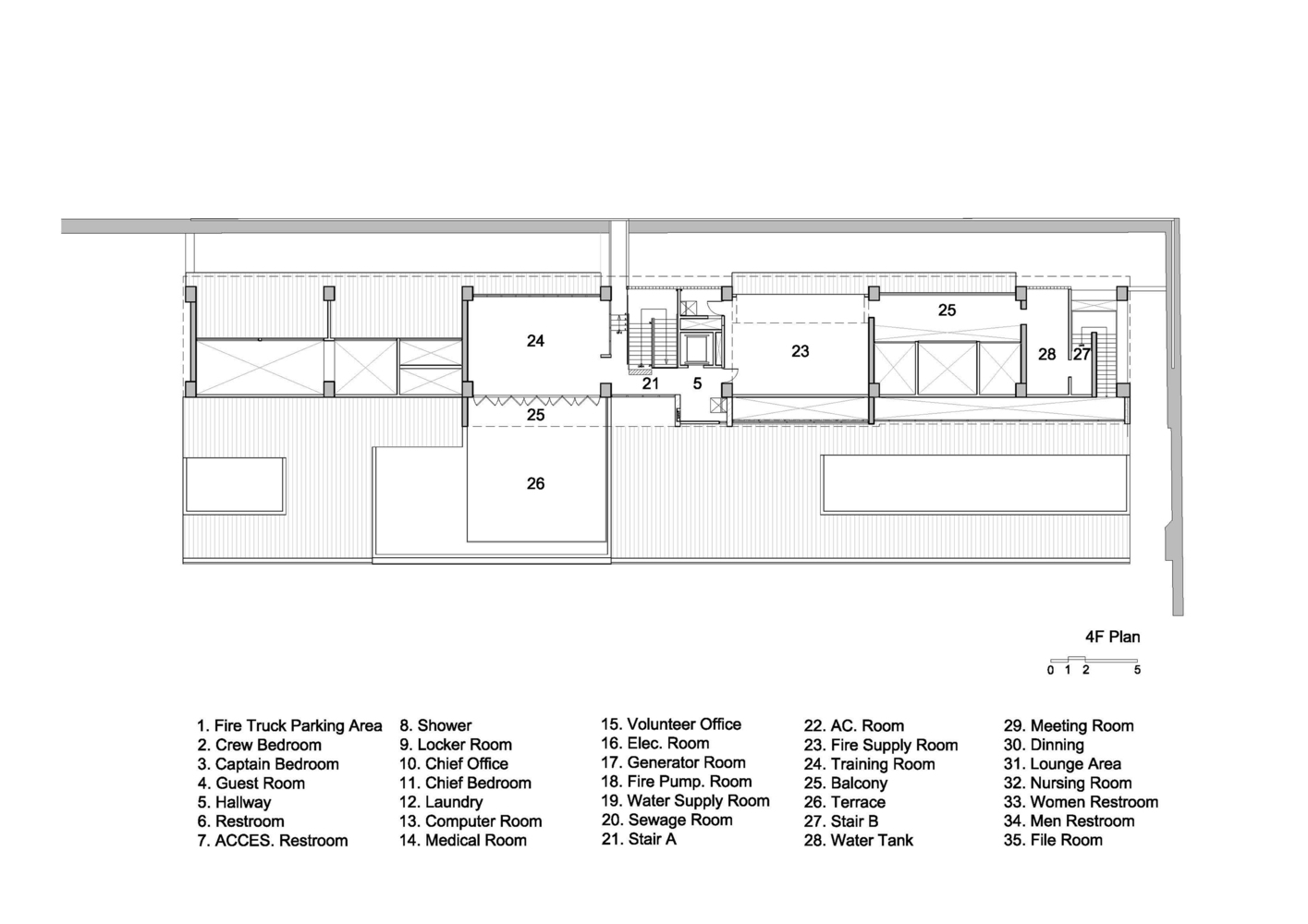
NuanNuan fire station
Keelung City, Taiwan
Architects : BBC Architects, Yen Partnership Architects
Area : 2,045 ㎡
Year : 2021
Photographs : OS Studio
































from archdaily