2022. 7. 29. 20:21ㆍARCHITECTURE/COMMERCIAL & OFFICES
EL 16.52 is a coffee shop located off the coast of Songdo, Busan, South Korea. EL stands for altitude above sea level, and 16.52 signifies the altitude level of the underground floor where the main building was built. The meaning lies in the context of the National Geopark to which this site belongs is architecturally implied, and the temporal nature of this stratum is intended to be contained in the meaning of altitude above sea level. The construction here was to interpret the difference in level between geopark, sea, and land in the sense of architectural archetype and ultimately maximize it commercially.
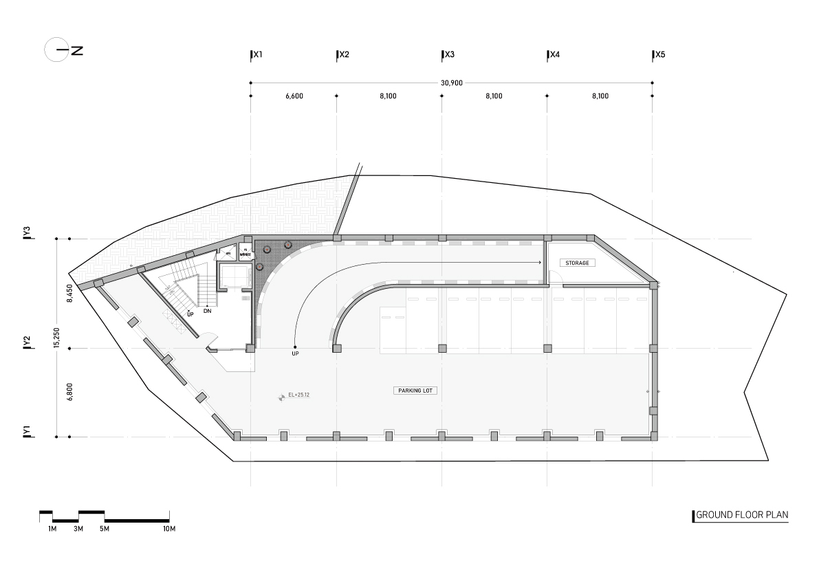
Parking circulation for level difference. The site adjoins two roads. One is the road towards the lower public parking lot with two basement floors, and the other is towards Songdo with two ground floors. As these two roads had a level difference of about 13.5m, there were considerable restrictions on the change in land form. In order to efficiently utilize such a limited building area, the parking area was divided into two parts. This is because instead of connecting the upper and lower parts with ramps, it is efficient to separate the upper and lower parking and put the machine room with adjusted distance between them.
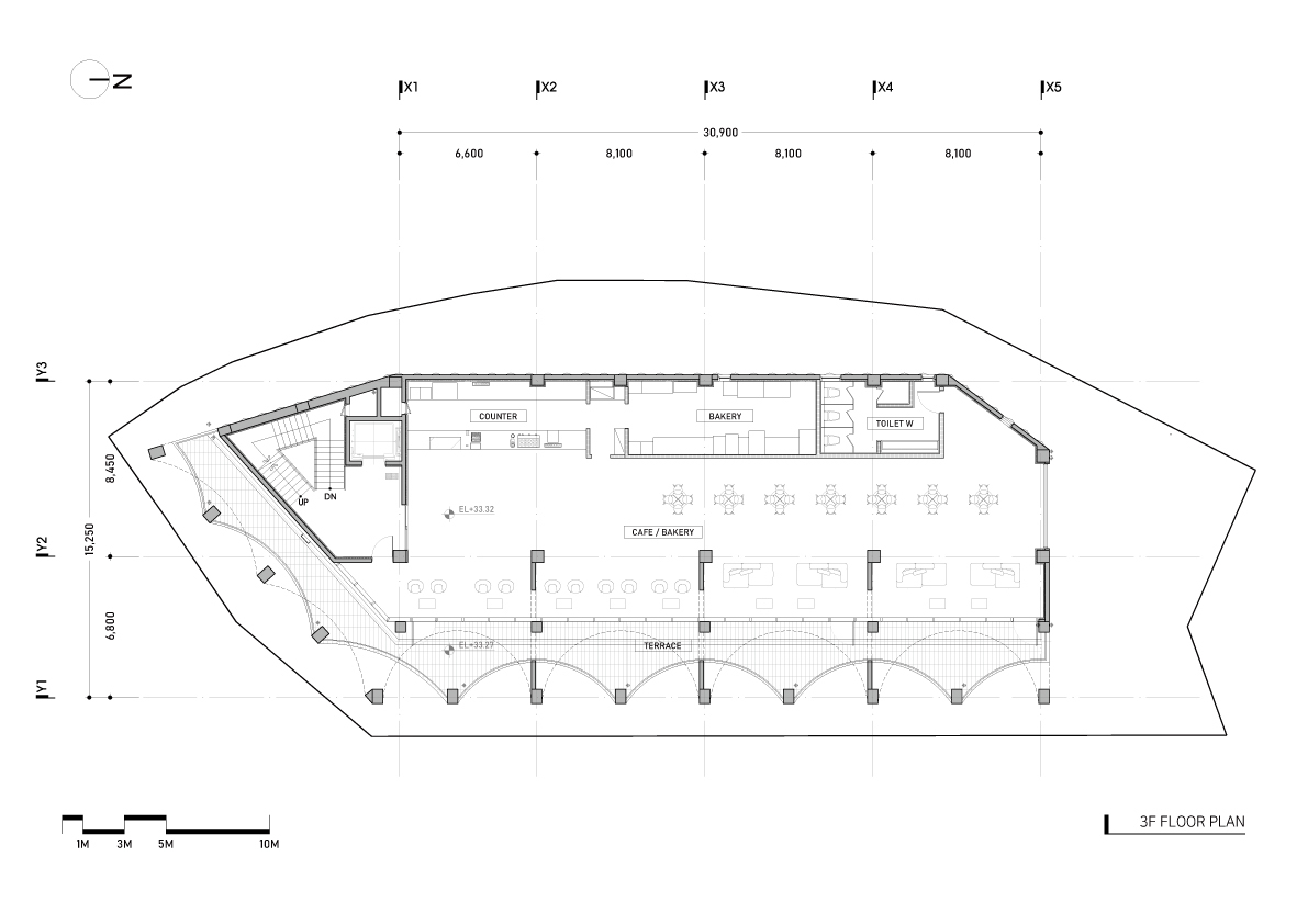
Building area according to the land size of the land. It was necessary to consider the appropriate size of the cafe area, the number of parking lots more than the legal standard, the movement system linking two roads in contact with the land, and the possibility of future expansion. Considering the legal construction rate of the land that can be changed in shape, the maximum width of the building was about 15m. It was also the minimum dimension to create the business feasibility of the project, accounting for the legal minimum standard for the radius of rotation of the vehicle. The upper two floors are high with a dramatic view of the sea and consist of a coffee shop along with a rooftop. Visitors can access the upper coffee shop by entering the second floor above the ground on the main road connected to the outer city center
Configuration and repetition of arches. The basic form of building space is a semicircular arch. The circular structure is cut in half to form an arch frame, and then structurally coupled and repeated. The semicircular arch is the starting point of the construction logic and an important external and structural element that creates the overall architectural rhythm. This wave-like structure is woven into structural pillars of about 10m, the height of the third and fourth floors, and forms a three-dimensional structure. The repetition of horizontally unfolding waves meets the vertical waves geometrically, and the manifold combination method is repeated to complete the construction system. The terrace is formed at the point where the horizontal wave meets the vertical pillar to form a maximized sense of space. In considering the realm of construction, exposed concrete was used for the facade to create a voluminous continuation for the interior and exterior finishes of the building.
Sense of the Sea Cafe
BUSAN, SOUTH KOREA
Architects : JOHO Architecture
Area : 561㎡
Year : 2022
Photographs : Roh Kyung































from archdaily
'ARCHITECTURE > COMMERCIAL & OFFICES' 카테고리의 다른 글
| 내외부 다양한 이벤트가 있는 사다리꼴의 안경 가게[Jins Park Maebashi] - Yuko Nagayama & Associates (0) | 2022.08.22 |
|---|---|
| 붉은벽돌 이중스킨 상업건물[Seongsu WAVE Commercial Building] - JYA-RCHITECTS (0) | 2022.08.17 |
| 태국 스킵플로어 오피스빌딩[Design in Motion Office] - Design in Motion (0) | 2022.07.23 |
| 정원을 향해 반쯤 묻힌 찻집[Underwood Teahouse] - Studio Ku Kan Nai (0) | 2022.07.21 |
| 프라하 공공마켓 디자인[Manifesto Market Andel] - CHYBIK + KRISTOF (0) | 2022.07.14 |