2022. 7. 23. 09:57ㆍARCHITECTURE/COMMERCIAL & OFFICES
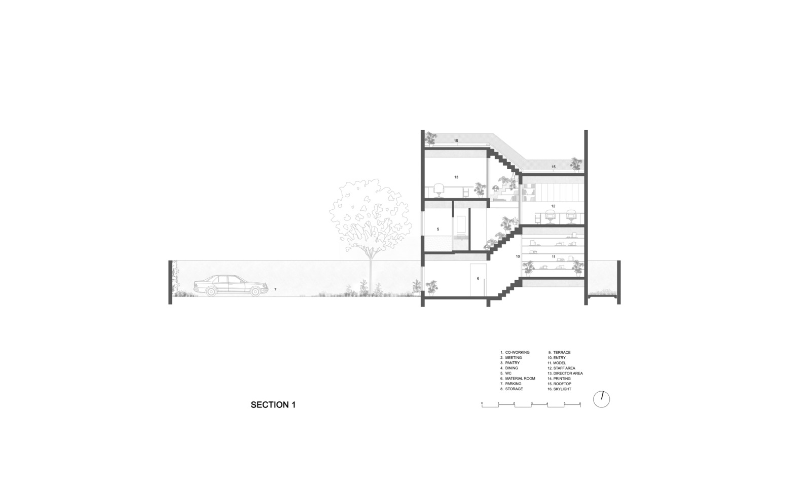
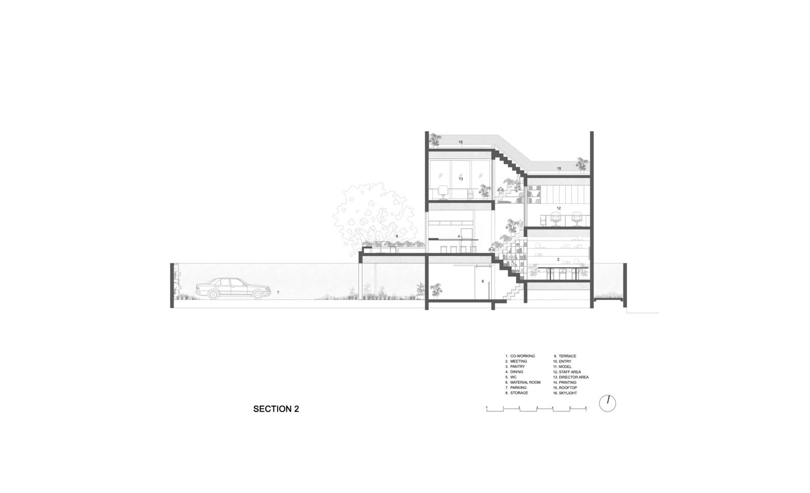
새로운 '디자인 인 모션 오피스'는 향후 건물이 한 채 더 추가될 예정인 부지에 건설되었기 때문에 이 새로운 오피스 빌딩은 그 계획을 뒷받침하기 위해 토지의 절반만 지어야 했습니다. 이 때문에 이 사무실은 10 x 10m의 경계 내에서 3층 건물로 수직 방향으로 설정되었다. 건물도 한쪽은 토지의 한쪽 가장자리에 인접하게 배치되고 다른 쪽은 고층에 대형 발코니가 있는 미래 건물과 연결될 수 있도록 준비되어 있습니다.
The new ‘Design in Motion office’ has been constructed on the land where is planned to add one more building in the future, therefore this new office building had to be built merely on half of the land for supporting that plan. Because of that, this office was set in the vertical direction as a three-story building within the boundary of 10 by 10 meters. The building is also placed adjacent to one edge of the land on one side, and on the other side is prepared to connect to the future building with a large balcony on the upper floor.
The multiple levels on one building caused separated functional areas unavoidably. The attempt to link these vertically isolated areas to be connected together in both aspects of the viewpoint and operation had become the main aim for this office building design.
By doing so, a story has become two equal-sized platforms placed on the opposite side of the building and the level between both platforms is stacked by a haft height of one story. In other words, this created a ‘split-level office’. The outcome of this type of space is that all areas could be connected throughout the building, yet separated by their own functions.
Between the split-level platform, ‘stairs’ are presented as the area connectors. However, the ‘stairs’ in this building are not only the vertical circulation, but also the major elements for generating the continuity of the indoor activities, including the operation of the stairs as the stepped seats in the meeting area, the setting of stairs that provide the benefit of natural light inside the building, and the form of the stairs which reflects on the unique front façade.
Given the limited budget, the materials selected in this building are simple and economical, including raw concrete structural elements, polished concrete floor, white painted walls, and wooden and glass windows and doors. However, the combination of these materials could make this office cozier and also raise the unique characteristic of ‘Design in Motion office’.
Design in Motion Office
KHET WATTHANA, TAILAND
Architects : Design in Motion
Area : 225㎡
Year : 2019
Photographs : Soopakorn Srisakul


























from archdaily
'ARCHITECTURE > COMMERCIAL & OFFICES' 카테고리의 다른 글
| 붉은벽돌 이중스킨 상업건물[Seongsu WAVE Commercial Building] - JYA-RCHITECTS (0) | 2022.08.17 |
|---|---|
| 바다를 향한 아치형 카페 EL16.52[Sense of the Sea Café] - JOHO Architecture (0) | 2022.07.29 |
| 정원을 향해 반쯤 묻힌 찻집[Underwood Teahouse] - Studio Ku Kan Nai (0) | 2022.07.21 |
| 프라하 공공마켓 디자인[Manifesto Market Andel] - CHYBIK + KRISTOF (0) | 2022.07.14 |
| 옛 창고를 리모델링해 만든 상점[Boobam Store] - Felipe Hess Arquitetos (0) | 2022.05.31 |