2022. 8. 1. 20:50ㆍARCHITECTURE/RESIDENTIAL
On a small Danish island sits a simple summerhouse, built right next to the coastline and with an open meadow landscape as a backdrop. The natural stone house, with a pitched roof that takes its inspiration from nature, is situated on a small plinth that acts as coastal protection against severe storms and elevated water levels.
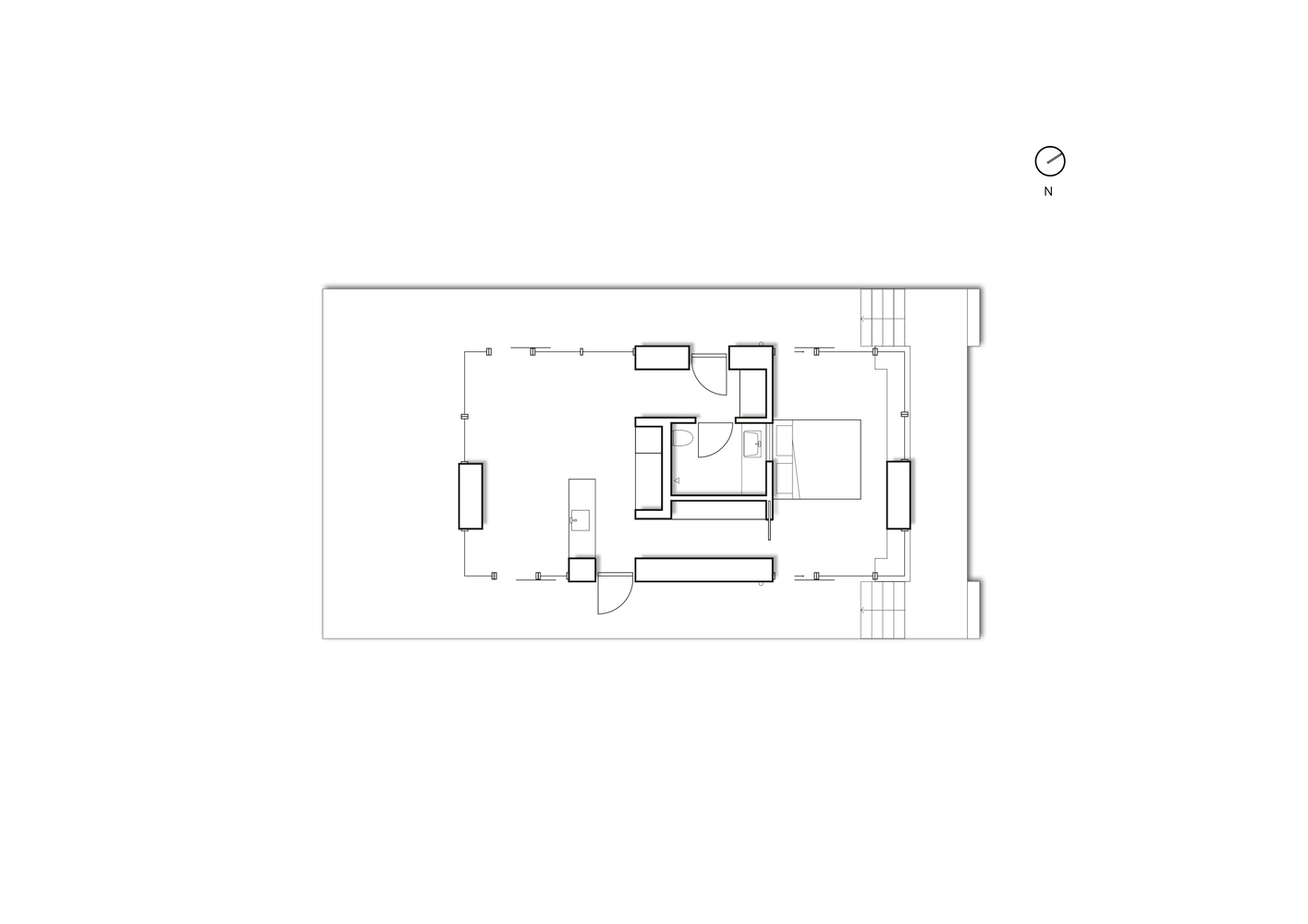
A house in harmony with nature. The small 55 m2 summerhouse towers proudly on the natural plot as a sharply cut stone block designed with a simple floor plan. Seen from the gables, the house is experienced as a square, with a triangle inscribed by the shape of the pitched roof in natural slate tiles. As seemingly simple as the house was designed, there are lots of details that make the simplicity subtle.
The facades are also in natural stone, which is in harmony with the large stones from the beach just outside the house. And in the same way, the in situ concrete plinths comprise small stones that mimic the beach's rough pebbles and hue. A house that does not disturb, but which proudly adapts and repeats nature's motifs and screens for wind and weather. The façade is designed with large glass sections that make the corners open and transparent, thus ensuring a lightness to the otherwise robust expression.
Natural stone continues in the interior. As an elegant extension of the façade in stone, the floors of the entire house are clad with Öland limestone. At the same time, nature is constantly present via the views through the large glass sections; from the moment the owners wake up at sunrise to the time they go to bed with a view of the sunset. In the living room, via the corners of the glass, there is a split view of both the meadow and the sea, so that the rich bird and animal life and the ships at sea can be followed during the day.
The kitchen also respects nature in its choice of materials in smoked oak, which, together with the warm natural stone floor, enhances the feeling of tactile, honest materials in contrast to the bright and white interior. The house is full height and is divided into two zones, with the living room, kitchen, and bathroom in one and the bedroom in another. The two zones are elegantly separated by a glass wall that ensures ubiquitous daylight.
Summer House
DENMARK
Architects : GinnerupArkitekter
Area : 55㎡
Year : 2021
Photographs : Niels Nygaard






















from archdaily