2022. 10. 5. 14:44ㆍARCHITECTURE/RESIDENTIAL
What does the usual construction of family houses in South Bohemian villages look like? Find the smallest possible plot of land, often in the forecourt of a large property. Build a small square house with a hipped roof on it as quickly as possible. Decorate it with burgundy concrete roof tiles and a blue or greenish facade. Surround the plot with a typical panel fence and plant thuja trees along it.
What about the fact that I can't see the landscape? The most important is that no one can see me. Find out later that the house doesn't cover all my needs. Build a garage, and eventually, convert it into a double garage. Add a garden house for the lawn mower and tools, a gazebo for grilling shed for wood, and connect everything with interlocking paving.
The family house in Miletín is our answer to how to enter the environment of a South Bohemian village with contemporary architecture. We knew from the beginning that we wanted to create a simple and generous volume that could accommodate all the demands of a family.
House that will not need to hide from its surroundings in order to create its own intimacy, because the mass itself determines the yard and frames surrounding fields and forests. The facade of the house complements the character of development, it does not just create a hard boundary „mine behind the fence“ and that around.
We work with the archetypal shapes of gable roofs and traditional proportions, looking for their spatial variations. There is no need to think too much about the materiality of the house, we follow tradition and experience. White and orange color, plastered walls and beaver tail ceramic tiles appear in the landscape.
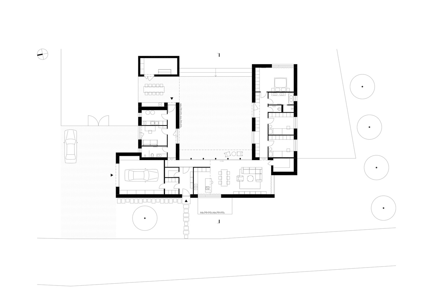
The three-wing building offers technical facilities, a garage, a study room, and an outdoor kitchen with covered seating in one wing. The second wing, parallel to the access road, occupies the entrance and main living space raised to the roof. Glass wall covered with a porch connects it to the yard. The third wing serves as an intimate bedroom area.
South Bohemian Family House
CZECH REPUBLIC
Architects : Atelier 111 Architekti
Area : 336 ㎡
Year : 2021
Photographs : BoysPlayNice
































from archdaily