2022. 12. 30. 14:43ㆍARCHITECTURE/RESIDENTIAL
연남동은 예전에는 저층 주택가였으나 최근 '연트럴파크'로 불리는 경의선 숲길을 중심으로 카페와 음식점으로 리모델링이 가속화되고 있다. YN241 대지는 연남동 끝에서 경의중앙선 철길을 마주하고 있으며 연희동으로 가는 연희지하차도 앞에 위치한다.
YN241의 건축주는 기존 다가구주택 '영광빌라'를 리노베이션할 계획이며 저층부는 작지만 좋은 음악카페와 와인라운지로 구성해 사람들에게 편안하고 풍부한 경험을 전달하고 브랜드화할 계획이다. 이를 바탕으로 확장합니다. 위층은 건축주가 운영하는 사무공간으로 사용되며, 옥상에서는 철로가 보이고 기차가 지나가는 소리, 선로를 따라 대나무가 흔들리는 풍경을 손님들에게 제공할 수 있다.
리모델링 전략 | 새 옷 입는 대신 수선 - 1990년대 초반에 지어진 영광 별장은 주변의 다른 별장들처럼 붉은 벽돌과 전통 기와 처마로 꼭대기를 지었다. 한정된 예산과 주변 건물을 고려해 새 옷을 입는 대신 변형보다는 리모델링 전략으로 개조를 택했다. 연희지하차도와 마주하는 코너 계단통 외벽을 철거하고 얇은 알루미늄 수직루버로 교체하여 개방감을 확보하고, 루버를 통해 보이는 공간은 은은한 레드빛이 감도는 와인색의 치장벽토를 드러내도록 했다. 기와가 있는 처마는 처마의 역할을 유지하면서 얇은 금속 가로판으로 변경하였고, 유리 난간을 설치하여 옥상 공간을 나타내도록 하였다.
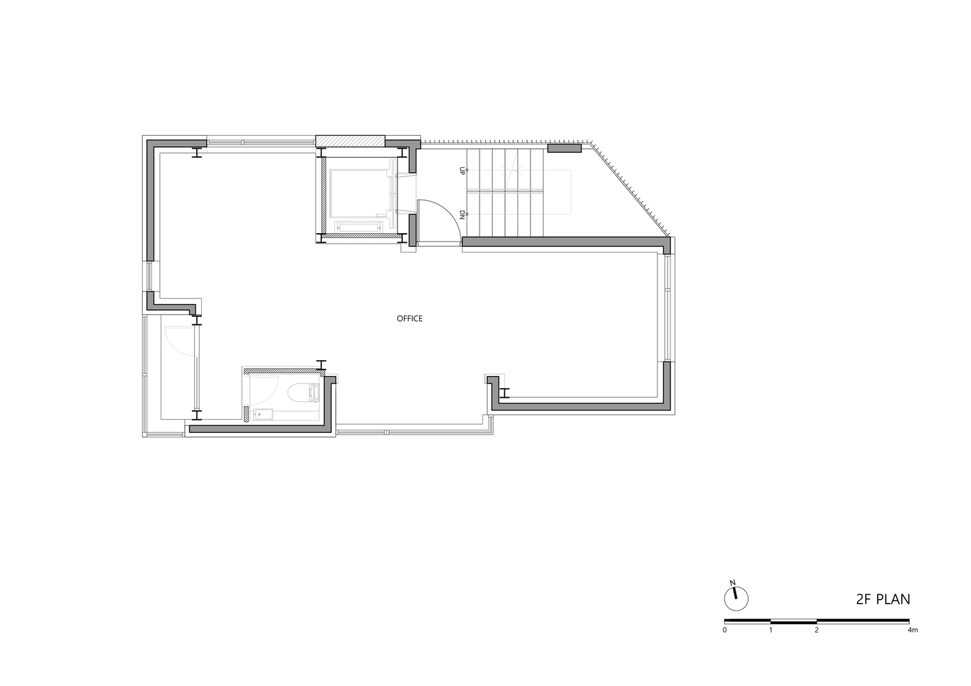
기존 반지하층과 1층은 방치된 야외공간과 가로수와 연계하여 카페와 와인바 공간을 연결 확장하여 개방된 휴게공간으로 계획하였다. 반지하와 직결되는 새로운 출입구를 도로측에 배치하여 건물의 전면을 확보하고, 내부 계단 상단에 보이드를 만들어 1층과의 시각적 연결성과 개방성을 확보했다.
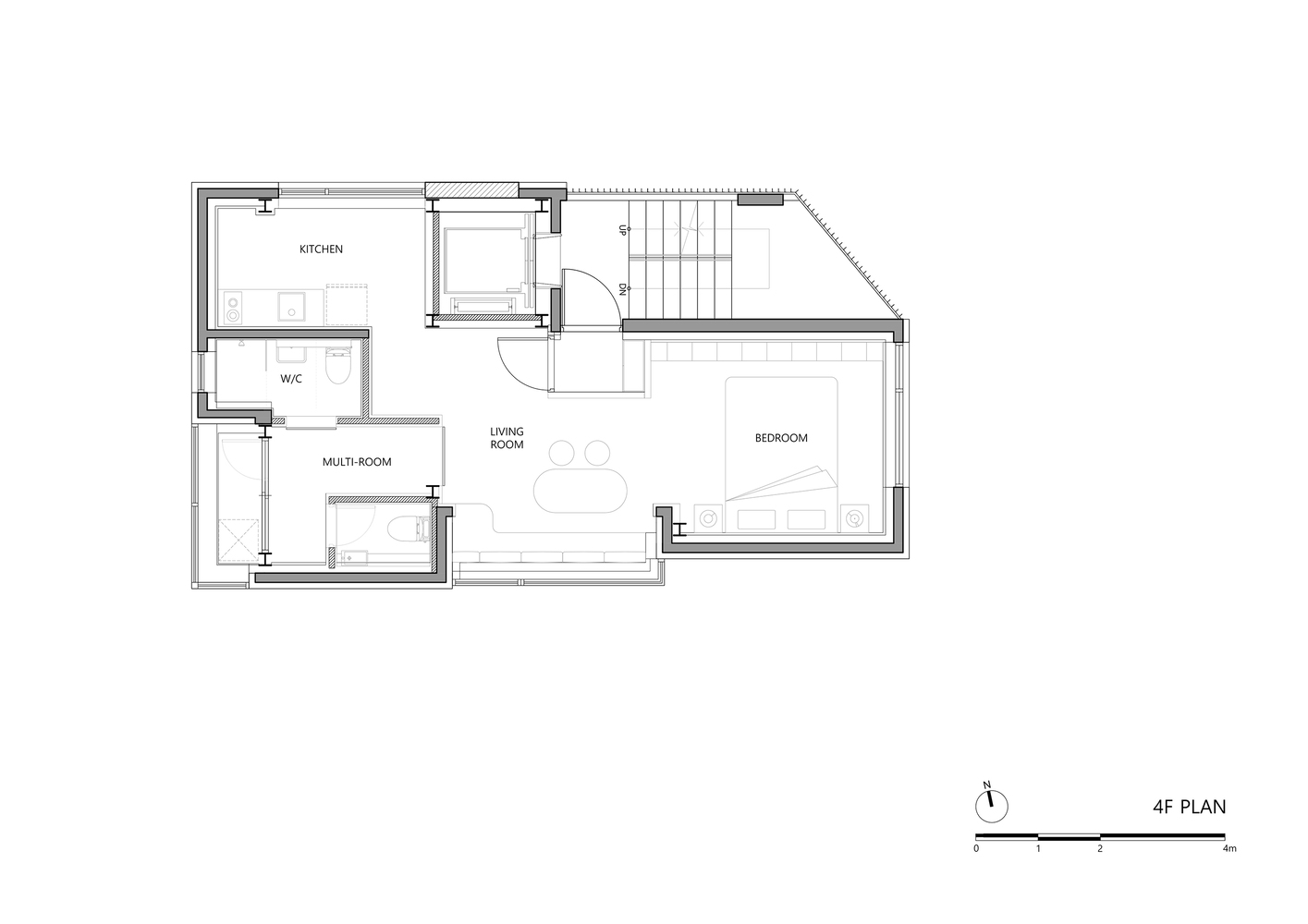
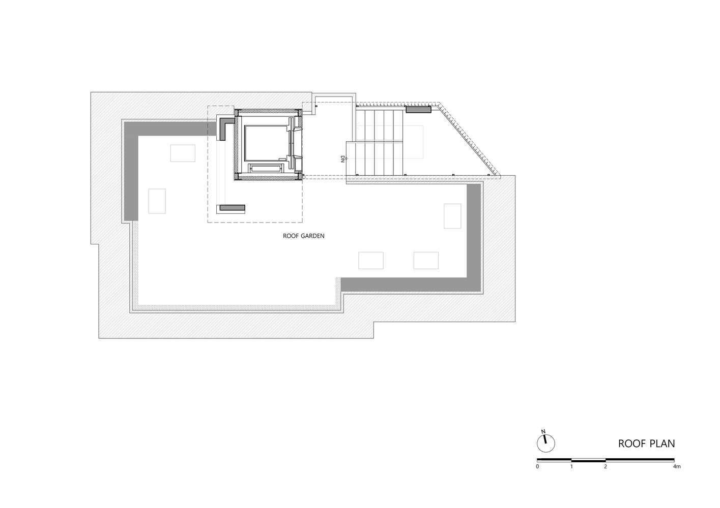
2층과 3층의 사무실 공간과 4층의 생활 공간은 새로운 프로그램을 수용하기 위해 철근 보강을 통해 모두 개방형으로 변경되었습니다. 1층 휴게실에서 옥상으로의 이동이 용이하도록 엘리베이터를 새로 설치하고, 기존 수조실과 새 엘리베이터 상판, 머리 위 계단의 흔적은 서로 다른 물리적 특성과 높이로 공존하도록 계획했다.
YN241은 연남동 끝 지하보도를 건너거나 기찻길 담벼락을 따라갈 때 은은한 색으로 빛나는 랜턴과 같은 공간으로 인식되기를 바란다.
Yeonnam-dong used to be a low-rise residential area, but in recent years, remodeling into cafes and restaurants has accelerated, centering on the Gyeongui Line Forest Road, called 'Yeontral Park'. The site of YN241 faces the Gyeongui-Jungang Line railroad at the end of Yeonnam-dong and is located in front of the Yeonhui Underpass that goes to Yeonhui-dong.
The client of YN241 has planned to renovate the existing multi-family house 'Yeonggwang Villa', and the lower floors are composed of a small but good music cafe and wine lounge to deliver a comfortable and rich experience to people, and a plan to brand and expand based on this. The upper floors are used for an office space operated by the client, and the rooftop can provide a view of the train tracks, the sound of passing trains, and the scenery of bamboo swaying along the railroad for guests.
Remodeling Strategy | Repairing Instead of Wearing New Clothes - Yeonggwang Villa, built in the early 1990s, was made of red bricks and traditional tiled eaves at the top, like many other villas around it. Instead of putting on new clothes in consideration of the limited budget and the surrounding buildings, the modification was selected as a remodeling strategy rather than a transformation. The outer wall of the stairwell at the corner facing the Yeonhui Underpass was demolished and replaced by thin aluminum vertical louvers to secure a sense of openness, and the space seen through the louver was made to reveal a subtle reddish wine-colored stucco. The eaves with roof tiles were changed to thin metal horizontal plates while maintaining the role of eaves, and glass balustrades were installed to indicate the rooftop space, and the appearance of the building was refreshed with vertical aluminum louvers and horizontal metal plates.
The existing semi-basement floor and the first floor were planned to be the open lounge space by connecting and expanding the space for a cafe and wine bar in connection with the neglected outdoor space and street. A new entrance directly connected to the semi-basement was placed on the street side to secure the frontage of the building, and a void was created at the top of the internal stairs to secure a visual connection and openness with the first floor.
The office space on the 2nd and 3rd floors and the living space on the 4th floor were all changed to an open plan through steel reinforcement to accommodate new programs. A new elevator was installed to facilitate movement from the lounge on the ground floor to the rooftop, and the traces of the existing water tank room, new elevator top, and staircase overhead were planned to coexist with different physical properties and heights.
YN241 hopes to be recognized as a space like a lantern that lights up in soft colors when crossing the underground walkway at the end of Yeonnam-dong or following the wall of the railroad track.
영어원문
- 아키데일리 기사 참조
YN241 Mixed Use Building
MAPO-GU, SOUTH KOREA
Architects : skimA
Area : 292 ㎡
Year : 2022
Photographs : Jinbo Choi























from archdaily
'ARCHITECTURE > RESIDENTIAL' 카테고리의 다른 글
| 스위스 넓은 조경과 안뜰을 가진 아파트[Ried B Monarch Apartments] - HILDEBRAND (0) | 2023.01.05 |
|---|---|
| 룩셈부르크 이중 지붕을 가진 주택[ASB House] - Moreno Architecture (0) | 2023.01.02 |
| 오스트리아 사방으로 주변 자연을 조망하는 주택[Schlosspark Residential Building] - puk architekten (0) | 2022.11.24 |
| 오스트리아 둥근 기둥과 곡선이 어우러진 공동주택[No. 6 Sydney Street Apartments] - Wood Marsh (0) | 2022.11.14 |
| 독일 정사각형 경사지 부지 3층 주택[HS77 Stuttgart Apartments] - VON M (0) | 2022.11.09 |