2023. 1. 5. 23:20ㆍARCHITECTURE/RESIDENTIAL
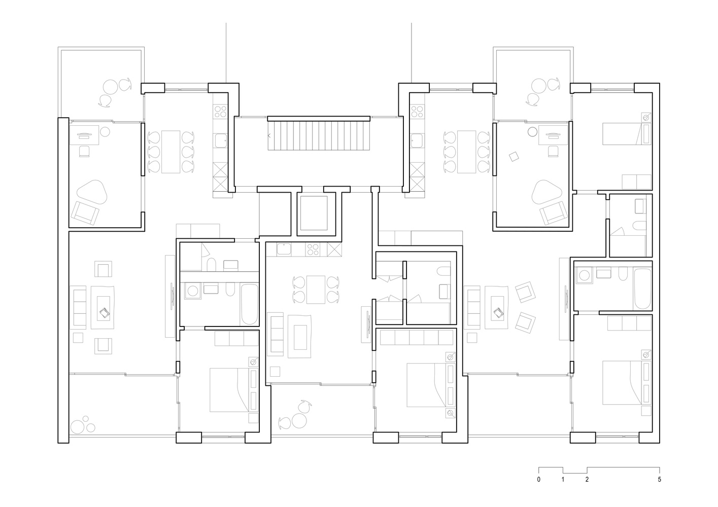
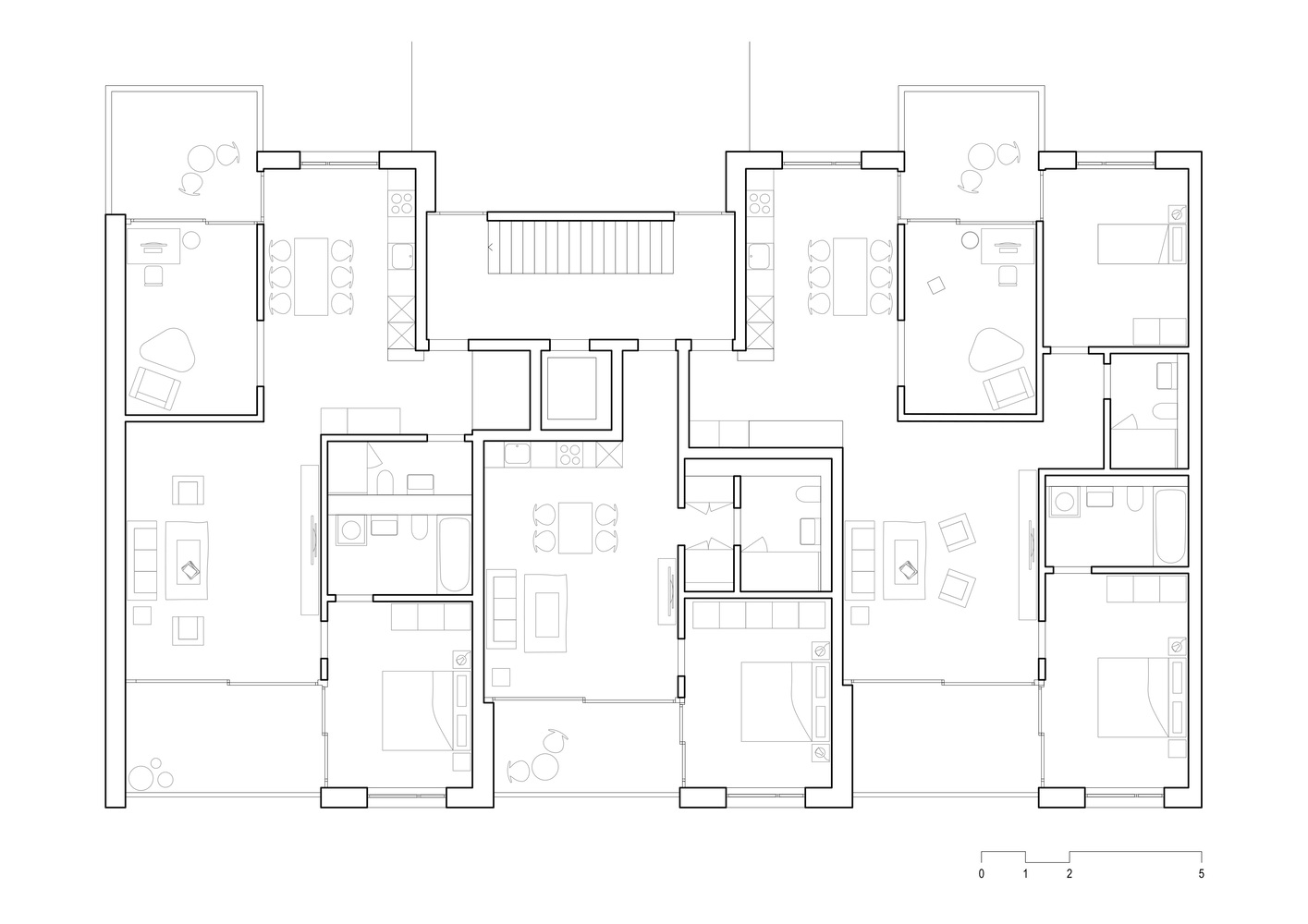
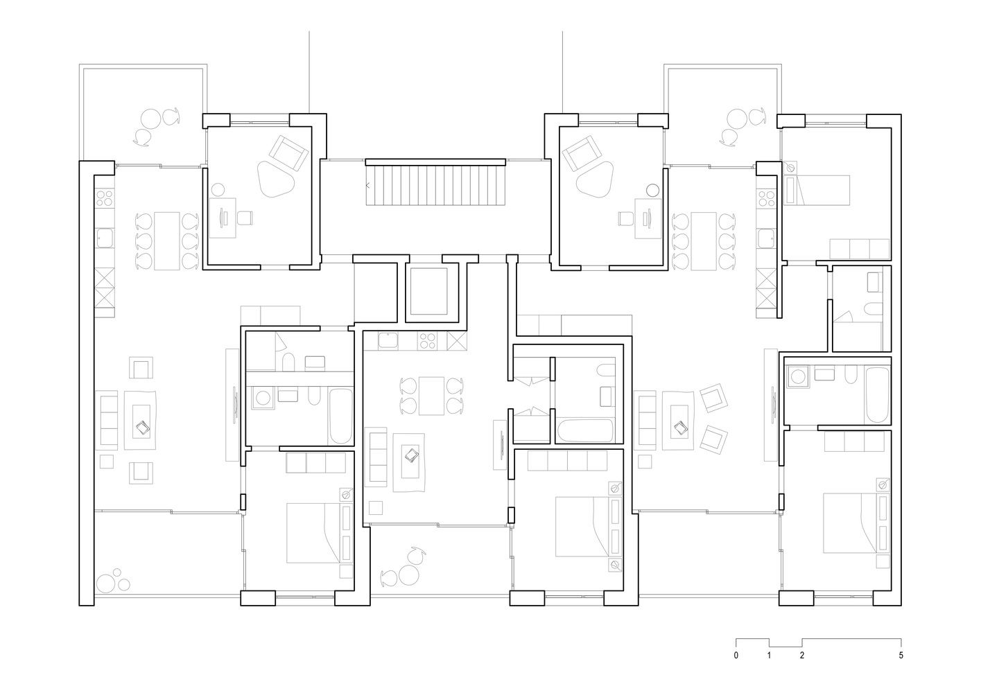
The 217 apartments of the Ried Baufeld B «Monarch» are directly derived from the logic of the master plan: Everyone lives by the green. The incorporation of the buildings into the context emerges from the close inter weavement of landscape and built environment. In this, the landscape takes on the primary role.
The settlement with its multiply articulated courtyard is a true neighborhood machine. All architectural elements, located outside the building structures are made of prefabricated brick elements. This creates a strong identity and signals a high appreciation of the collective living space. In these elongated, plaza-like courtyards, a neighborly social life can unfold.
The protruding courtyard structures contain laundry rooms, stroller rooms, and roof terraces for the respective residencies. The brick volumes successfully structure the housing estate and create clear addresses. The east-west orientation allows floor plans to have continuous living areas and therefore benefit from both the wide landscape and the qualities of the neighborhood courtyard.
With this, the prerequisites to allow the development of a new, lively neighborhood–the primary goal in the implementation of the project–are given.
Ried B Monarch Apartments
KONIZ, SWITZERLAND
Architects : HILDEBRAND
Area : 22000 ㎡
Year : 2022
Photographs : Roman Keller, Roland Juker



















from archdaily
'ARCHITECTURE > RESIDENTIAL' 카테고리의 다른 글
| 아르헨티나 독특한 벽돌 마감 발코니 주택[M5605 Housing] - Arqtipo (0) | 2023.02.06 |
|---|---|
| 도쿄 만화 작가의 집[A Japanese Manga Artist’s House] - Tan Yamanouchi & AWGL (0) | 2023.01.15 |
| 룩셈부르크 이중 지붕을 가진 주택[ASB House] - Moreno Architecture (0) | 2023.01.02 |
| 연남동 주택 리모델링[YN241 Mixed Use Building] - skimA (0) | 2022.12.30 |
| 오스트리아 사방으로 주변 자연을 조망하는 주택[Schlosspark Residential Building] - puk architekten (0) | 2022.11.24 |