2023. 1. 15. 19:39ㆍARCHITECTURE/RESIDENTIAL
A building that floats a few centimeters above our daily lives. On a small narrow plot (4.9 m wide, 14.7 m deep) in metropolitan Tokyo sits a wooden house. The clients are an up-and-coming manga artist, her partner, and two owls who are the new additions to the family. The manga artist made three requests: First, the house should accommodate the entire process of the artist’s work, from creative concept to completion, meetings, and giving media interviews. Second, the house should be compact and should not open to the outdoors too much. Lastly and most importantly, the house should spark inspiration for creativity. Envisioned as “a building that floats a few centimeters above our daily lives,” the architect strived to ensure that the dwelling is still tied to our tangible daily life but evokes a sense of fictional narrative.
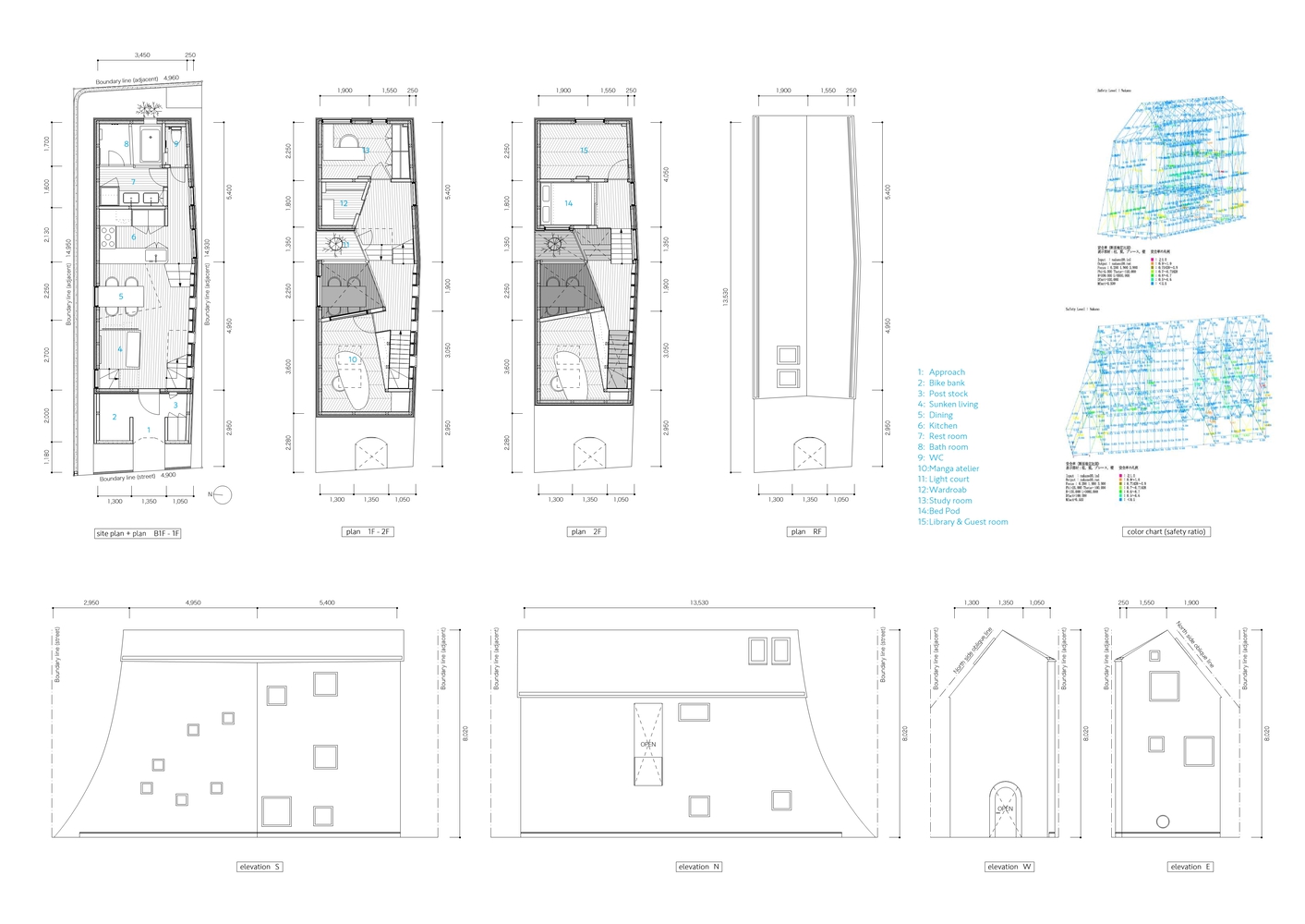
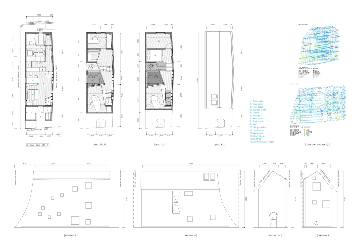
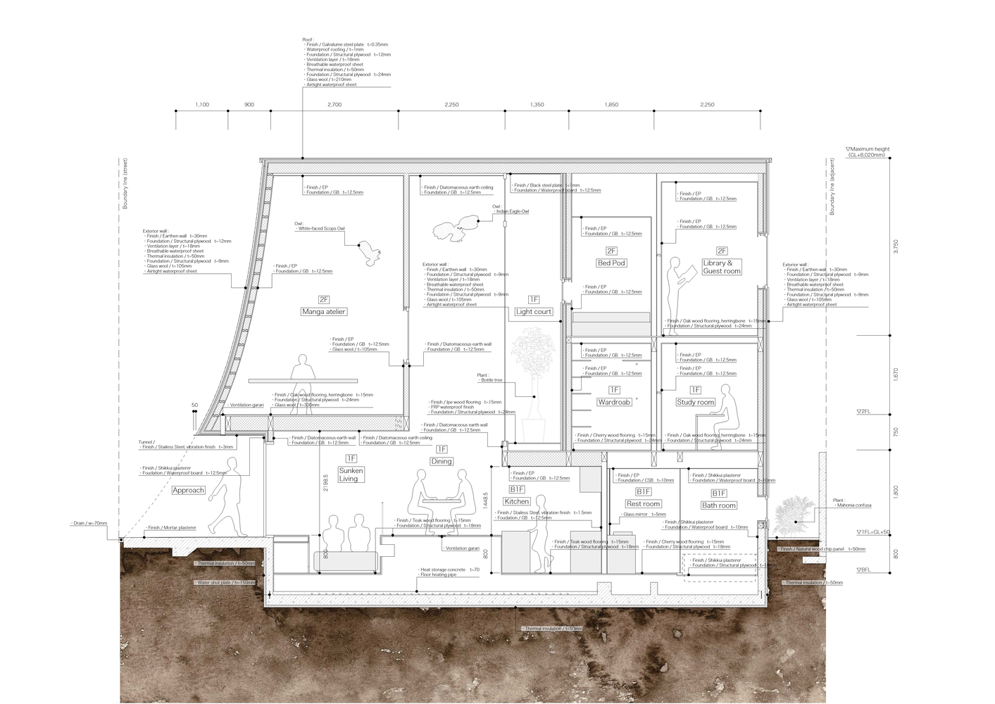
The project began by selecting a plot closely linked to manga artists. The west facade facing the front road is designed as a warped seismic wall evoking earth rising dynamically from the ground, with a tunnel penetrating the wall leading to the entrance. The opening in the solid wall invites visitors to step out from their ordinary and into the extraordinary, evoking a scene in a movie. The overall plan is designed to maximize the narrow and long plot of land, comprising the east area with three-floor levels at the rear of the site and the west area with two-floor levels to create a split-level floor plan. The architect rearranged the sequence of alternating split levels and created substantial differences in elevation. A light court (1.2 m wide, 5.5 m maximum height) is provided on the north side of the house, and the number of other openings was limited as much as possible to create a contrast between light and dark in a “void” spreading throughout the house like an amoeba. A stairway runs up through the void space filled with contrasts of high/low and light/dark, making a three-dimensional composition that evokes a narrative experienced through the body.
The lifestyles of manga artists have changed dramatically during the COVID-19 pandemic. We no longer see assistants gathering at an artist’s atelier since online production has become the mainstream of manga creation. Alternatively, their private houses have become a place for meetings and serve as studios for interviews and accommodating the press. The work of a contemporary manga artist could be divided into three stages: 1. Creation (enclosed and secluded), 2. Meetings (partially opened to others), and 3. Giving interviews (opening to the public), and the shades of public/private required in each stage varies. The architect designed a void with contrasts of high/low and light/dark to provide unenclosed yet defined areas, or what the architect calls “ponds and banks,” that would allow for subtle and flexible use of space in a very compact dwelling. We strive to continue creating architecture that embraces open narratives while pursuing logical solutions.
A Japan Manga Artist's House
TOKYO, JAPAN
Architects : Tan Yamanouchi & AWGL
Area : 86 ㎡
Year : 2022
Photographs :Katsumasa Tanaka























from archdaily
'ARCHITECTURE > RESIDENTIAL' 카테고리의 다른 글
| 베트남 아이들의 놀이터 주택[Empty box House] - TAA DESIGN (0) | 2023.04.06 |
|---|---|
| 아르헨티나 독특한 벽돌 마감 발코니 주택[M5605 Housing] - Arqtipo (0) | 2023.02.06 |
| 스위스 넓은 조경과 안뜰을 가진 아파트[Ried B Monarch Apartments] - HILDEBRAND (0) | 2023.01.05 |
| 룩셈부르크 이중 지붕을 가진 주택[ASB House] - Moreno Architecture (0) | 2023.01.02 |
| 연남동 주택 리모델링[YN241 Mixed Use Building] - skimA (0) | 2022.12.30 |