2023. 11. 17. 13:40ㆍARCHITECTURE/RESIDENTIAL
Originally designed for residential use by students and young professionals linked to the nearby university centers – Naba and Bocconi –, the Pichi 12 project has developed into its final form as the residence for a more widespread use characterized by an architectural mark that, far from laying claim to an iconic status, blends within the urban fabric of the area near the Navigli in Milan.
Featuring strong distinctive elements, such as a play of neat white-plastered volumes and architectural details of loggias and windows covered in sheet metal, the project reinterprets the modernism of Milanese residential architecture into an elegant, democratic, and understated building.
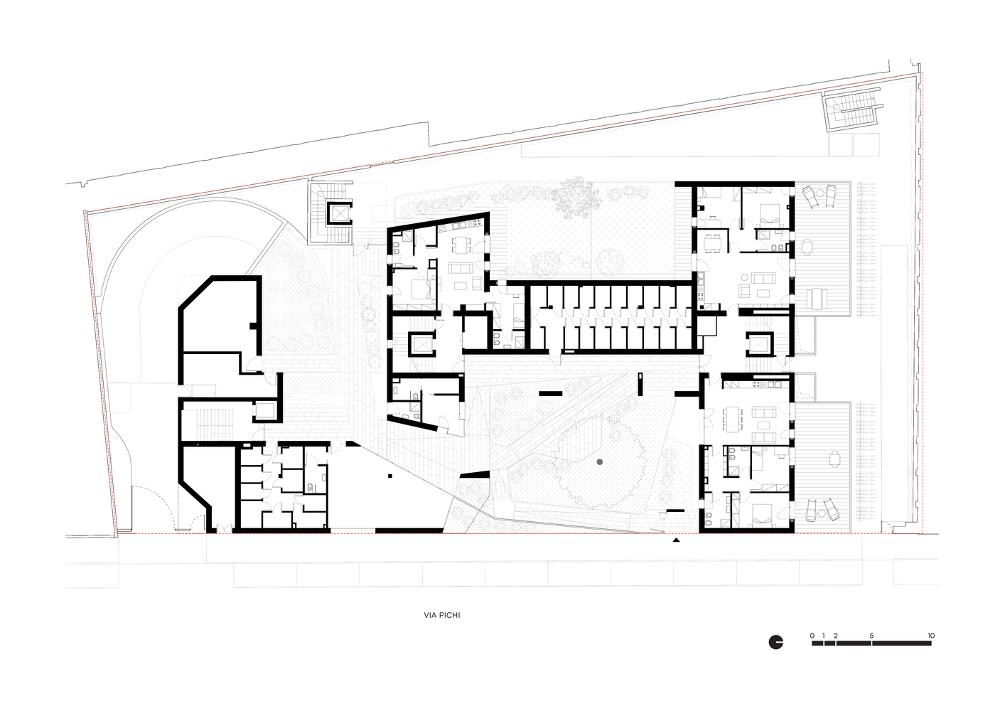
The project’s beating heart is the green courtyard open to the street; at its center a maple tree which, once grown, will make the view of the garden and the road from the windows and loggias even more pleasant. The courtyard, a reference to the urban courtyard that in historic Milanese residences is traditionally internal and private, opens up to public life. It acts as a filter between individual home living and communal urban coexistence.
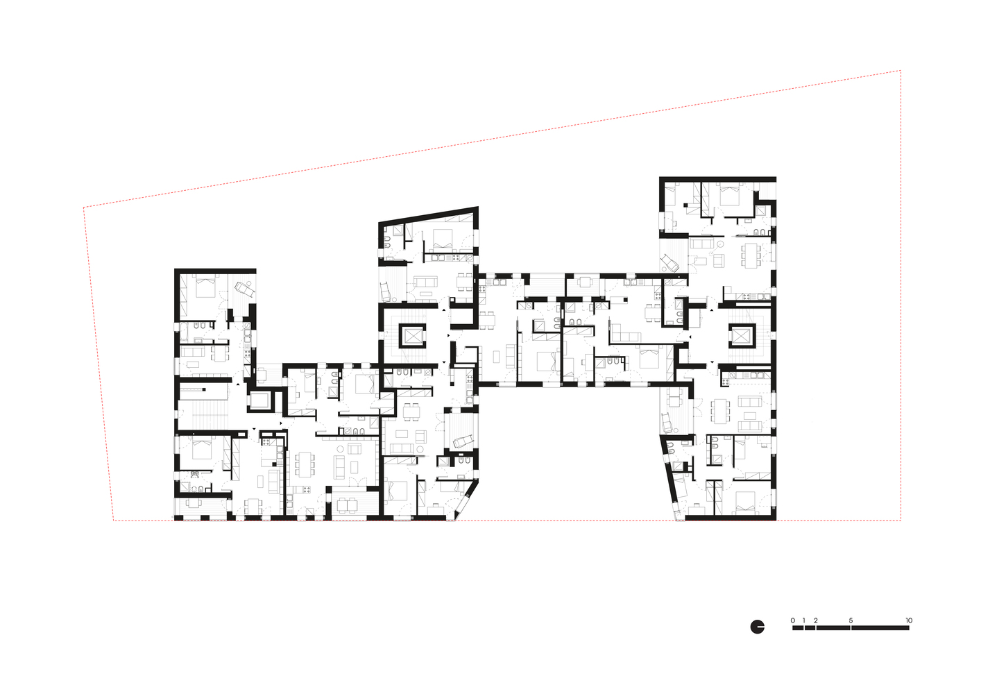
The building is spread over three floors, with the ground floor reserved for communal activities and socializing. The flats, of different layouts and sizes, are all designed to accommodate a diverse community and guarantee a good quality of living. The dry construction techniques that were studied for the building entailed the use of materials – such as steel – capable of creating both lightness and strength.
The façades generate simple geometric volumes, the loggias having been hollowed out to create a discontinuous yet harmonious pattern of solids and void, openings, and blind walls. Clinker was used to line the loggias as a tribute to a type of coating that has been widely used for the facades of Milanese architecture since the 1940s. Set back from the white facades, the aqua green of the loggias' back walls is the building’s only note of color, in tune with the green of the internal courtyard's vegetation.
Pichi 12 Housing
MiLANO, ITALY
Architects : Park Associati
Area : 2,244㎡
Year : 2023
Photographs : Francesca Iovene, Nicola Colella

































from archdaily
'ARCHITECTURE > RESIDENTIAL' 카테고리의 다른 글
| 타일 외장의 테라스 주택[The Garden Room] - Objekt Architecten (0) | 2024.06.17 |
|---|---|
| 마드리드 4개의 넓은 안뜰 주택[SFJ6 Building] - MARMOLBRAVO + MADhel (0) | 2023.11.24 |
| 움푹 파인 지형 속 T자 모양의 주택[T House] - Spridd (1) | 2023.08.22 |
| 두개의 재료와 용도가 섞인 건물[GODUNG Office & Apartments Building] - Stocker Lee Achitetti (0) | 2023.08.07 |
| 열대기후에 적합한 베트남 주거공간[DHY House] - AHL architects (0) | 2023.07.11 |