2022. 1. 25. 10:42ㆍARCHITECTURE/INTERIOR

실내 - 실외 공간의 경계 그리고 실내 공간 요소들의 경계를 흐릿하게 하고자하는 다양한 의도를 담았다.
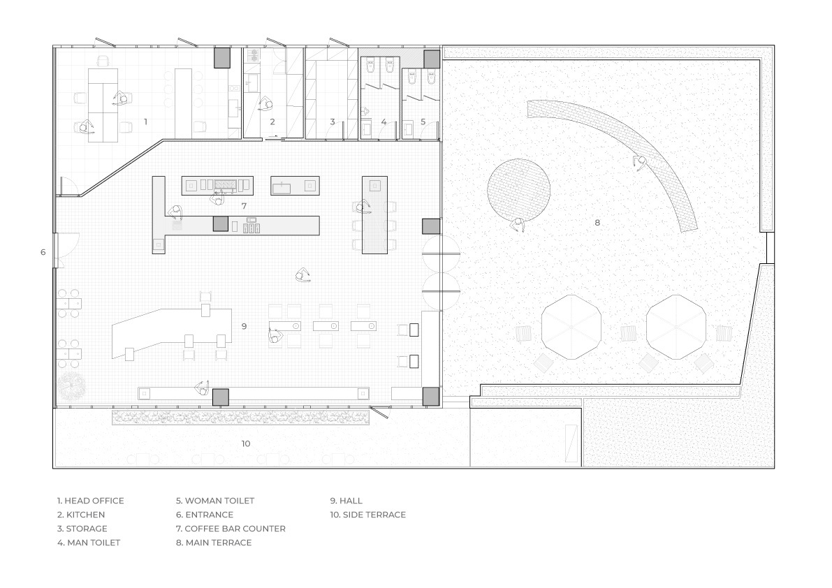
전면의 두껍고 네모난 기둥을 중심으로 긴 바 카운터 구조로 형성된 매스는 공간감을 연출하고, 천정-기둥-바 카운터-플로어의 순서로 연결된 시퀀스는 공간의 무게중심을 표시한다. 디자인팀은 의도적으로 바 카운터 끝의 테라스로 이어지는 문의 규모를 과장하여 내부 공간으로 일몰과 야경을 담아 내부 공간과 테라스의 경계를 흐릿하게 만들었다.
This space consisting of interior space and exterior terrace with an area of 297㎡ perspectively, is located between tall buildings. At sunset, the interior space is transformed into a monotonous terrace while the setting sun presents a magnificent view through the gap between the buildings surrounding this space. The design of this space which leads to the exterior terrace area along with two bent windows began from the thought that the inside and the outside should not be interpreted as different spaces.
A mass formed by the structure of a long bar counter centering around a thick and square pillar in the front creates a spatial sense, and a sequence connected in order of ceiling-pillar-bar counter-floor marks the center of gravity in the space. The design team intentionally exaggerated the scale of the door which leads to the terrace at the end of the bar counter, blurring the boundary between the interior space and the terrace by taking the sunset and the night city view into the interior space.
The seating area with chairs and tables manufactured on the spot constitutes a mass with somewhat different shapes, but they are placed in harmony with each other, creating a comfortable and cozy atmosphere in contrast to the mass formed by the bar counter. An object is installed on the ceiling between the seating area placed in the center and that placed inside the window which provides the view of the reed planted outside the window. The object’s components are arranged at an angle where they can receive natural sunlight and artificial lighting at the same time.
The chair with armrests designed to receive light through the opening between its frames and to send it out again serves as a symbolic and functional object that clearly expresses the feature of this space with the ambiguous boundary between inside and outside. As for the lighting plan, in general, elements that disrupt the natural light are minimized by using artificial lighting only for functional necessity and by applying table lamps and outdoor lower wall lamps. In order to emphasize the spatial feature, the ambiguous boundary between inside and outside, the design team selected stone, stone-textured paint, and brick as the main materials, revealing the spatial aim to be a terrace in the heart of the city.
Ohvenu cafe
Goyangsi, South Korea
Architects : YOLLLLEY STUDIO
Area : 297㎡
Year : 2021


















from archdaily
'ARCHITECTURE > INTERIOR' 카테고리의 다른 글
| 문래 공장 리모델링 카페[PONT Mullae Café] - Studio stof (0) | 2022.03.11 |
|---|---|
| 오렌지색 카페 인테리어[Donut & Coffee Shop in Daejeon] - KKOL Studio (0) | 2022.03.04 |
| 포스트코로나 자카르타 레스토랑 리노베이션[Iron Fist Restaurant]- Studio Kota (0) | 2022.02.23 |
| 태국 건축자재소매점의 재료라이브러리[workspace]-Onion (0) | 2021.09.16 |
| 아치인테리어[MARS STUDIO]-SOMESOME Bar & Restaruant (0) | 2021.07.08 |