2022. 2. 28. 17:34ㆍARCHITECTURE

A clubhouse informed by Quonset huts features at an AutoCamp glamping site in southern California designed by American firms HKS and Narrative Design Studio.
The property is located in the town of Joshua Tree – on the border of Joshua Tree National Park – which is three hours by car from Los Angeles. It is the fourth location from AutoCamp, which launched in 2013.
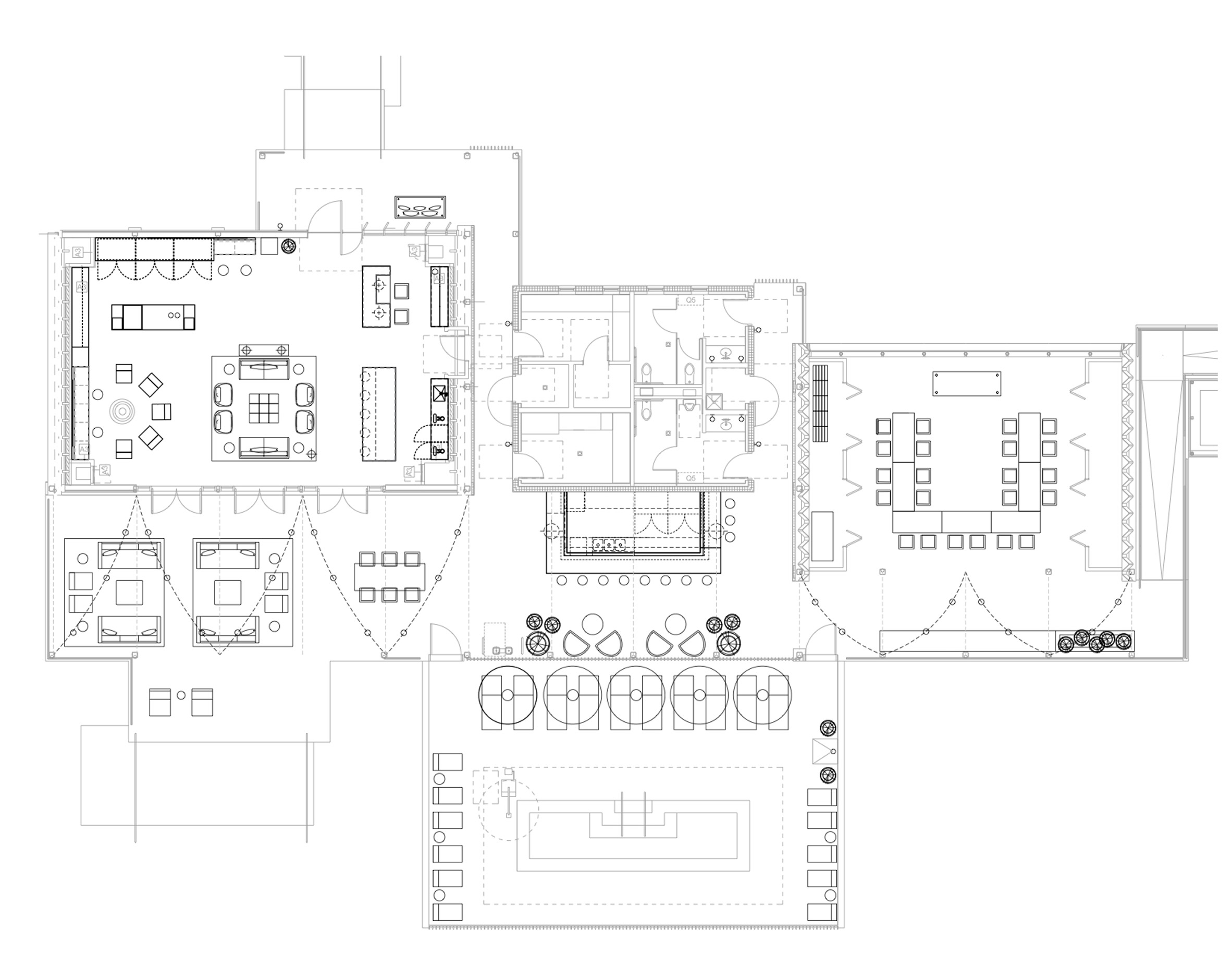
The clubhouse consists of two joined structures that were informed by the Quonset hut – an arched, lightweight building that become popular during the Second World War.
Exterior walls are wrapped in steel and thermally modified pine, and shading elements were incorporated to help reduce solar heat gain. In the summer, the area's temperatures can often exceed 100 degrees Fahrenheit (38 Celsius).
"By shifting the axis of the property, HKS was able to provide a seamless indoor/outdoor experience that shades visitors from the desert sun and wind, while allowing views toward the vistas and beauty of Joshua Tree."
The building is oriented in a way that takes advantage of summer breezes while providing shelter from winter winds.
The clubhouse encompasses lounge areas, a bar, a multipurpose room and a covered patio.
Airstream glamping site
California, USA
Architects : HKS
Photohraphy : Mariko Reed, Matt Kisiday and Josh Franer

















from dezeen