2022. 1. 26. 10:12ㆍARCHITECTURE

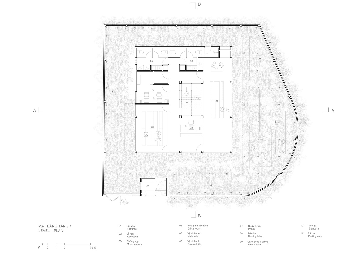
1층의 커뮤니케이션 공간은 과장과 순수함, 개방감과 영감이 넘치는 공간을 연출한다. 유리와 강돌로 정화된 '아이디어의 들판' 정원을 시각적으로 연결한 전형적인 베트남 건축의 현대적 기후적 응용을 시험해볼 수 있는 흥미로운 공간이다. 극단적으로 모든 사물은 사용하면 나타났다가, 활동이 없으면 사라지고, 눈에 띄게 순수한 풍경이 된다.
2층 사무공간은 건축가들이 항상 녹지를 바라보며 사생활을 즐길수 있도록 계획하였다. 작업공간의 창의성과 효율성을 고려하여 대형 테이블과 수직 오픈 라이브러리를 우선시되어 기능적으로 디자인되었고. 각 자의 작업 공간에서 적절한 높이로 설계된 개구부에서 공원전체가 보이도록 작업공간을 구성 확장했다. 개구부와 결합된 캔틸레버 창호는 차양 뿐만아니라 건축가들의 작업공간으로 활용되며 도면, 스케치, 그림 ,기사 또는 건축가에게 영감을 주는 모든 것을 부착가능한 개인 보드 공간으로 사용된다.
Our place is located next to a central park in District 2, Saigon. In that location, we can fortunately create an Architecture Studio, a work place for innovative people. Form follows function, the approach of architectural design is purely defined from operational aspects of an open studio, each area is calculated carefully to reduce waste and non-performable spaces.
Performance and efficiency of creativities inside the office are considered the most prioritized idea of the design, in which we imagined a functional space with large tables for architects and a vertical open-library.
The architect always enjoys privacy with pleasure view to the greenery. That is why we expanded the working space with the view to the whole park from the window openings, which are moderately designed with suitable height to control the glare of tropical sunlight. These openings are surrounded 360 degrees the whole working space, 600mm in height from the working tables, the light is controlled just enough to cover the sun glare to produce a comfortable clear view of the park.
Combined with the opening is the cantilever window bay, which not only creates the sunshade function to reduce direct sunlight but also creates double working space for each architect. The upper part of the window bay arraying on the opening is functioned as the personal pinned boards to attach drawings, sketches, pictures, articles, or whatever inspires the architects.
An open library is located right behind each architect's working space, physical models and material boards are carefully selected, well-organized into a lively creature from the center of the working space combining with each extended platform to be used as a vertical staircase. Since then, the "dynamic" and "static" gradient of the workspace are increased from bottom to top, decreased from inside out.
In our perspective, architecture can talk and dialogue with the surrounding and the internal human activities. When the internal function from 1F to 2F improves the operation capabilities inside the building, the communication space from the ground floor, on the contrary, creates exaggeration, purity, and full of openness and inspiration. It is an interesting space where we can test the contemporary climatic application of typical Vietnamese architecture, which visually connects the "field of ideas" garden, which has been purified with glass and river stones. Extremely, all the things have appeared when in use, disappeared when there is no activity, visibly a pure landscape.
This area is called the Transitional Space (the Gray Zone). We conceive our practice and construction of spaces which consist of one’s inspiration & uniqueness; from there, its own memoir values & cogitative challenges are formed. Looking at chromaticity, Black & White are considered like two constants in math, defined, solid and clear. They are two ends, front and back of an infinite Gray band; where fluctuation is made & one’s characteristic is evolved. If we discuss Architectural physics, the Gray zone can be considered one to have both light & shade agents, carrying neutral emotion, monochromatic and pure.
A place is always filled with its spirit when the value of the minimal function became the priceless lesson; when each project is built and fully operated. The connection between space and time brings a lot of emotions through the inside-out interaction. Light and shadow, birds shimmering, sunlight float through the leaves changing the atmosphere from every moment of a day, comfortable and friendly, a feeling home.
MIA Design Studio Office
Hochiminh, Vietnam
Architects : MIA Design Studio
Area : 400㎡
Year : 2020

































from archdaily