2022. 1. 13. 14:29ㆍARCHITECTURE

단순한 형태의 건물에 적절한 개구부 계획을 통해, 교회 창문이 기능적으로 작동하도록 함과 동시에 이를 활용한 드라마틱한 공간을 연출했다.
메인 홀이나 계단과 같은 공간의 조명. 제한된 예산으로 도시에서 강한 상징성을 낳으면서도 본연의 기능을 충분히 발휘할 수 있는 적절한 개방 계획과 단순함의 형태로 교회를 건축하는 것을 추구하였다.
Recently, churches have been performing a role not only as puritanical churches but also as local community facilities. If a church that performs such an intermediate role overwhelms the surroundings with its ornate appearance, it would be absolutely not possible to avoid friction with the surroundings. We thought that urban churches would need to look simple in order to be considerate of neighbors and such formative simplicity in the busy downtown landscape could rather bring stronger symbolism.
Through an appropriate openings plan in a simple-form building that allows openings where they should be opened and eliminates openings where they should be closed, we allowed the church windows to be functionally operational and, at the same time, we created dramatic spaces using the lights in the spaces like main hall or staircase. Building a church with a limited budget in a form of simplicity and with an appropriate opening plan that produces strong symbolism in the urban area and still enables it fully to perform its original function is the key point of church architecture that we pursue.
What we considered the most important in the plan was that the new church would go well naturally with surrounding buildings. The land given was located at an alley of a residential area, one block inside from the main street, and surrounded densely by 3 or 4-story residential buildings. The old buildings and the vehicles parked even on such narrow alleys due to the lack of parking space made the surrounding landscape more crowded. In consideration of such condition of the land, we thought a fancy church might cause the only feeling of coercion to the surroundings but could not easily fit into the existing landscape. Our intention was to approach the neighbors with architecture in a simple form and frugal appearance not to make the neighbors feel pressure with the church building. We intended to build a space where people could experience spatial richness and face God.
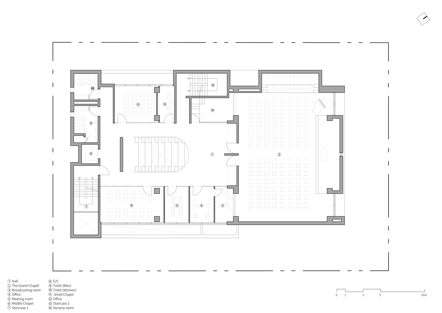
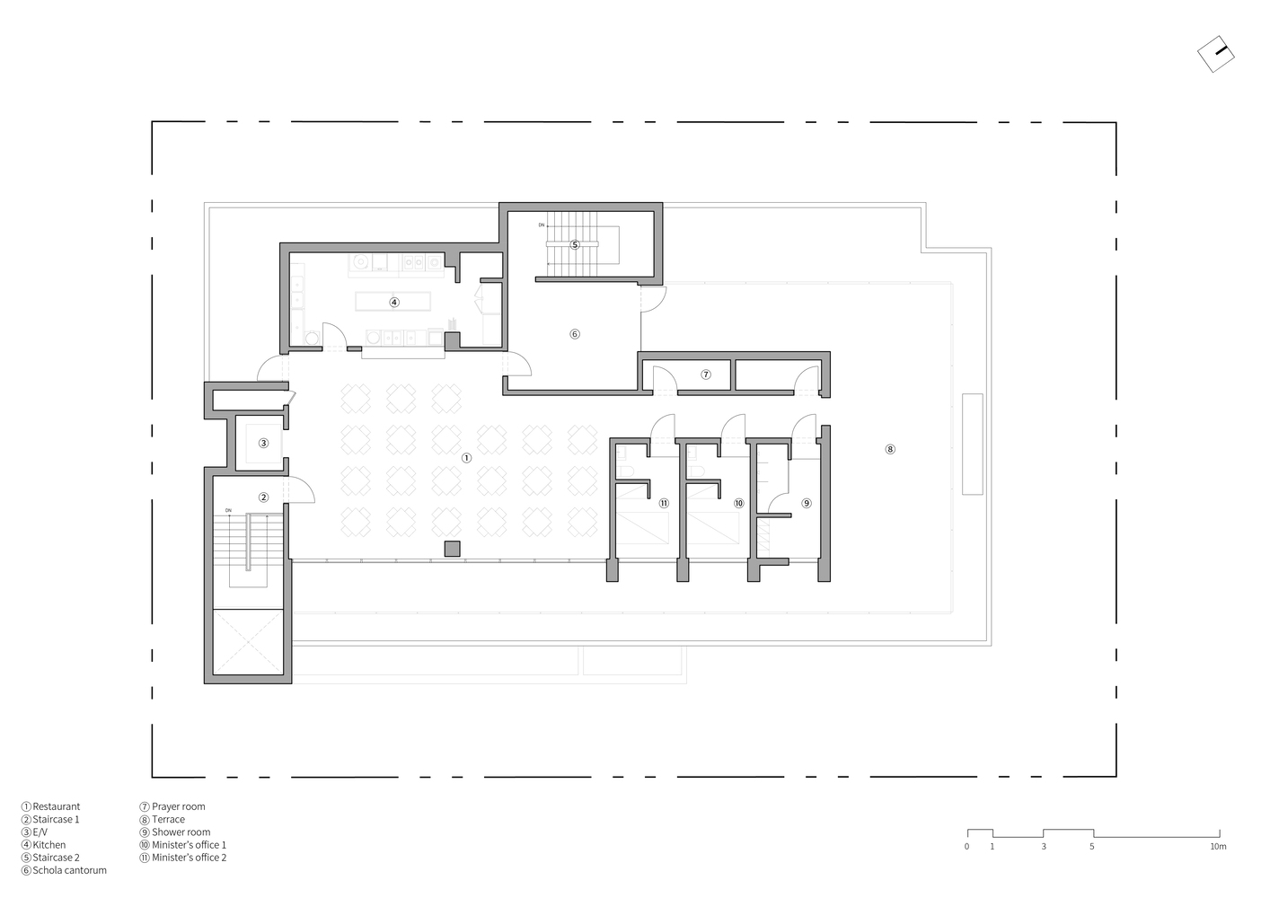
Considering the condition of the neighboring lands, we planned the building with a 3-storey horizontal mass. The space was largely divided by program for each floor and composed of a first-floor café, second-floor church main hall, and third-floor cafeteria. With a design that each floor was not built up in the same floor size but each floor was getting withdrawn more from the street as it goes up higher, we intended to minimize the feeling of coercion that the church building could produce to the surrounding buildings. Considering the spatial sequence required by the church, a rectangular space was desirable so that various ceremonies could be held.
We designed a rectangular plane with a symmetrical module structure by adding symmetry, one of the characteristics of religious architecture. Accordingly, on the first and the second floor, subsidiary spaces are located symmetrically centered around a lobby and a hall with multipurpose stairways, and on the third floor which is comparably smaller than the downstairs, a cafeteria at the center is surrounded by rooms. The core such as vertical circulation/restrooms was lined up vertically and located at the end of the building, not following the rectangular plane flow, in order not to be overlapped with the main circulation flow that focusses on the multipurpose stairways. In addition, we tried to expose the identity of the church by expressing the vertical space of the stair hall instead of spireas a solid mass.
The appropriate openings plan that we came up with out of the land located at this new disciple church was to close the first floor and open the second and the third floor. Because of the undeveloped surrounding environment, we thought both the experience to look at the outside from the inside of the church and the experience to look at the inside of the church from the outside would not be proper and rather create a collision. We intended to minimize contact from the city streets on a human scale by blocking the first floor solidly and making people meet each other inside the building. On the other hand, in order to make the church brighten up the dark alleys, we designed the façade of the church to look light by opening the second and the third floor widely and producing a bright image that could change the mood of the undeveloped surrounding environment by applying white-color Stucco.
Due to the characteristics of churches that people converge not daily but only Sunday, it required a circulation plan that could accommodate such a huge flow. The grand staircase in the center of the church not only solves such circulation issues but also can be used as a stairway café or a concert hall for children on weekdays when not crowded, and can be utilized as a worship area when worship space is not sufficient. The first floor operated as a community space alters its characteristic according to the utilization of the multipurpose grand staircase and it creates a spatial characteristic of the entire church building. Therefore, the core space of the church is the grand worship hall but we can say the multipurpose staircase plays the most important key role in the whole architecture plan.
We planned congregation to have a religious experience during the course of sequence to come up the stairs to the second floor and move toward the grand worship hall. On the second-floor lobby, people face firstly a cross made by the wall vertically stretched up to the ceiling and the reveal horizontally spread, and after entering the grand worship hall, they face another cross made by the wooden decoration laying down horizontally and the long narrow vertical window. Through such space design, people can see the symbolism of the church successively from the lobby up to the grand worship hall. Furthermore, the inner spaces of the second floor excluding the grand worship hall are separated from the lobby by the glass and look visually opened but the solemn atmosphere of the church is maintained thanks to the long reveal coming down. This reveal gives territoriality to the lobby space and simultaneously maximizes the sense of openness at the very moment of entering the grand worship hall.
Bucheon New Disciples Community Church
Bucheon, South Korea
Architects : Kode Architects
Area : 487㎡
Year : 2019



























from. archdaily