2022. 1. 7. 16:33ㆍARCHITECTURE

A "Cardboard Box Factory" IS a huge, lightning-fast printer. Huge, in scale and numbers. It feeds on paper reels, like our plotters, but about 2.5m high x 2.5 meters in diameter, of about 2.5 tons each. In the corrugator it takes thickness. It generates about 250,000 M2 / day of different corrugated cardboard. And if the previous machines transformed them at about 40,000 boxes/day, the new one can reach 20,000 boxes/hour.
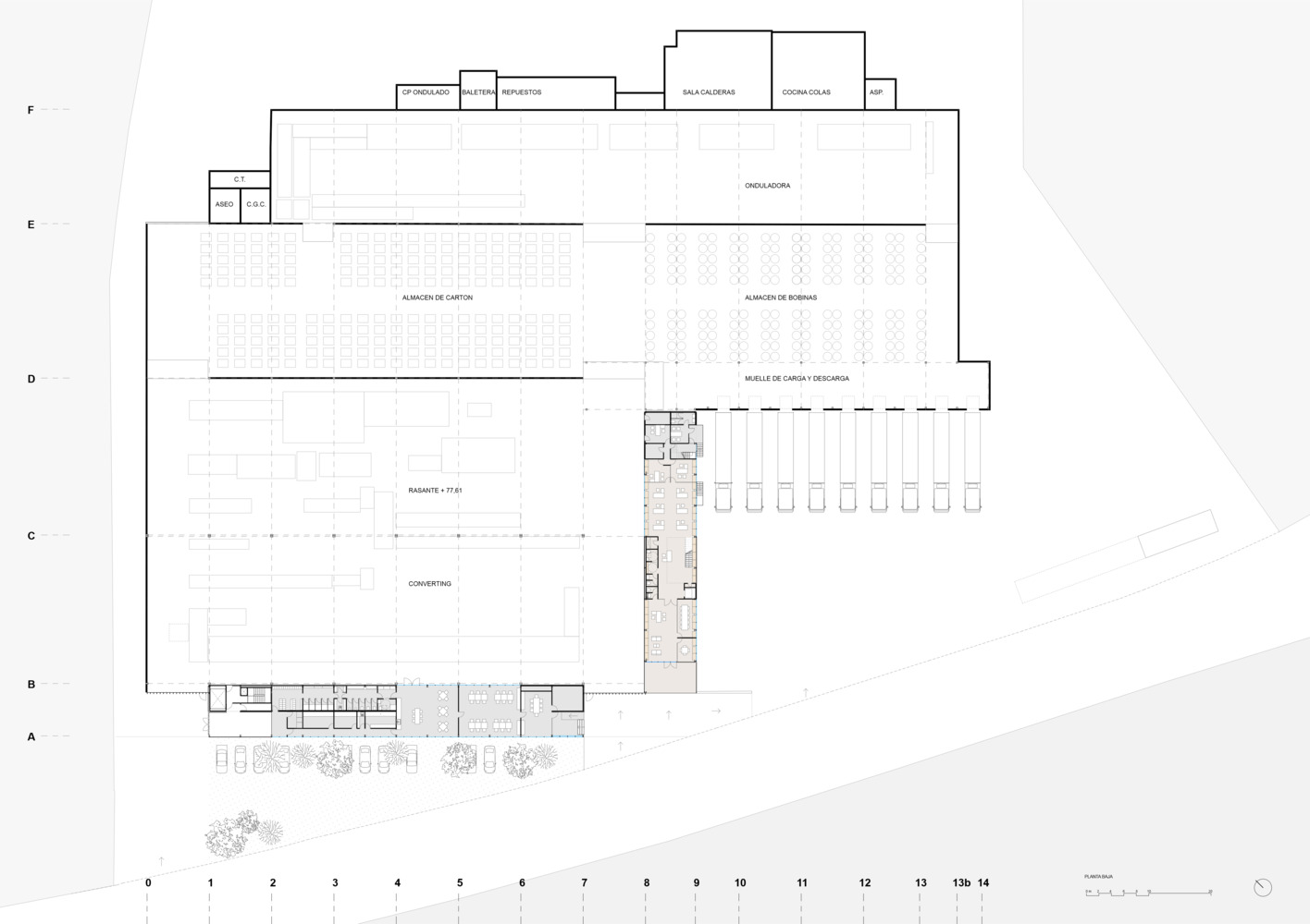
There is a fundamental basis in the efficiency of a factory of this type: having a large work surface. A large FLAT, clear and orderly plane is the foundation of the efficiency of the process: it facilitates communication between different high-speed machines fed by what was produced by any of the above. It was the first achievement of the project. It doesn't show, but it wasn't like that before. (Like all those cables that crossed the property: you don't see them, but it wasn't like that before.)
Our main performance came down to ORDERING where things, people and flows should be —maintaining and prolonging the wonderful original 25x10M GRID. You can't see that either, but the rigidity of the checkerboard is what allows for flexibility in the game. Maintaining the chessboard has allowed the pieces to move freely during various project versions. And will enable continue doing so in the future.
The project studied the expansion of a factory in full production. The work too. "Between production and construction, premium production." That was a motto of the property that clarified the solution to the potential conflicts. In fact, all of our project and construction work could look like this: a simple wrap on the new large box making machine delicately leveled on the new flat plane. And, as in Saint-Exupéry's drawings, where some see a hat, others an elephant.
"Form is not the aim of our work, but only the result. Form as an aim inevitably results in mere formalism." Mies van der Rohe, 1923
In the age of the image, of the dizzying generation, editing, transmission, communication and dissemination of images, it might be convenient to remember with The Little Prince that many important things, perhaps the most important, are not seen:
"- The essential is invisible to the eyes."
Fábrica de Cartones. Ampliación
Crevillente, Spain
Architects : Estudio Alberto Burgos
Year : 2020
Area : 4300㎡





























from. archdaily