2021. 7. 27. 09:52ㆍARCHITECTURE/CULTURE

바다를 입은 벤쿠버의 건물
The Polygon Gallery is the rebirth of the Presentation House Gallery, which has been a passionately independent photography and media institution in North Vancouver for more than forty years. More site-maker than site response, the building stands at the front of urban waterfront renewal where infrastructure is reimagined and culture outgrows an industrial past.
The main mass of the building is lifted from the ground plane to provide open access to both a new public plaza and a wide view of the Vancouver skyline across Burrard Inlet. Its iconic saw-toothed profile is clad in layers of mirrored stainless steel beneath expanded aluminum decking. The interplay between the two materials gives the singular mass an ephemeral depth that shifts with seasonal sunlight and evening atmosphere.
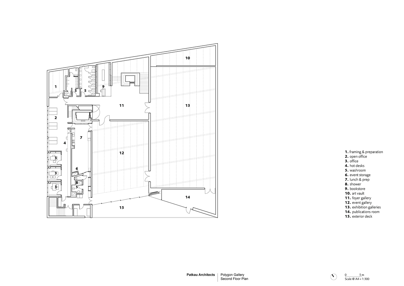
Gallery Director, Reid Shier requested gallery space free of obstacles, with floors and walls that can be cut into, ceilings from which anything could be hung in any position, access to power and media anywhere, lighting that can be natural or controlled. The main gallery is thus conceived as a ready instrument for creativity, more studio than a museum. The structural musculature of the building performs the dual purposes of lifting the gallery and providing a clear space, completely daylit from above with diffuse northern light, or darkened. A system of steel purlins provides a track for lighting, data, media, suspended works, and temporary partitions. The robust and easily patched oak flooring features a continuous central channel for ventilation, electrical, and data chases that give ready access to freestanding works and temporary partitions of any configuration.
The upper level also contains a large flexible event gallery for education, outreach, and private functions. Its entire southern wall is an operable glazed panorama overlooking Burrard Inlet and Vancouver. In addition to the fully glazed entrance and lobby, the lower level supports small retail spaces, to help diversify waterfront development. These fine-grained street-level uses to make the building an attractor for the growing social life on the city’s waterfront and share the energy of the Gallery with the public space. The plaza, so activated by the Gallery, provides a new cultural node for North Vancouver, reinforcing a sense of local identity for a small city that neighbors a larger and more prominent one.
Polygon Gallery
North Vancouver, Canada
Architects : Patkau Architects
Area : 2,100㎡
Year : 2017

















from archdaily