2021. 11. 9. 13:06ㆍARCHITECTURE/CULTURE


Concept. The design concept originates from the idea of “a book falling from the sky”, and the shape of the book is engaged with the architectural form to visualize the metaphor. Visitors are expected to step into the architectural space and get immersed into the tranquility to develop positive self-talk and a journey of self-discovery.
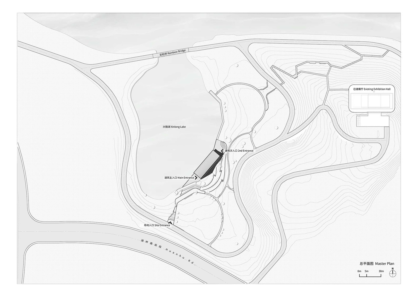
Site. To create an appealing waterfront space, the project starts with a 12m*40m rectangular plane foundation located on the east lakeshore of Xinglong Lake Southwest Bay Area. Two ends of the roof ridge are vertically stretched from 3 meters to different heights where the southwest end is elevated to 16 meters and the northeast end stops at 7.5 meters. The curved roof surface is formed according to the height of four supporting corners as a flipped page, which reinterprets the pitched roof of traditional Sichuan folk dwellings.
Meanwhile, the roof also cooperates with the water ripples in order to extend the wavy feature to the architecture and blend in the natural environment. The architecture is linearly expanded to conform with the site and connect with the lake. The glass curtain wall is installed to be partially subaqueous as the waterfront façade of the bookstore. The natural light penetrates through the water and streams into the interior space of the bookstore, which assists in creating an ambiance of serenity. Designed with both transparent glass walls and a solid coated façade, the architecture introduces the aquatic plants, lawns, other vegetation, and water features into the interior space to correspond to the design theme of “reading in nature”.
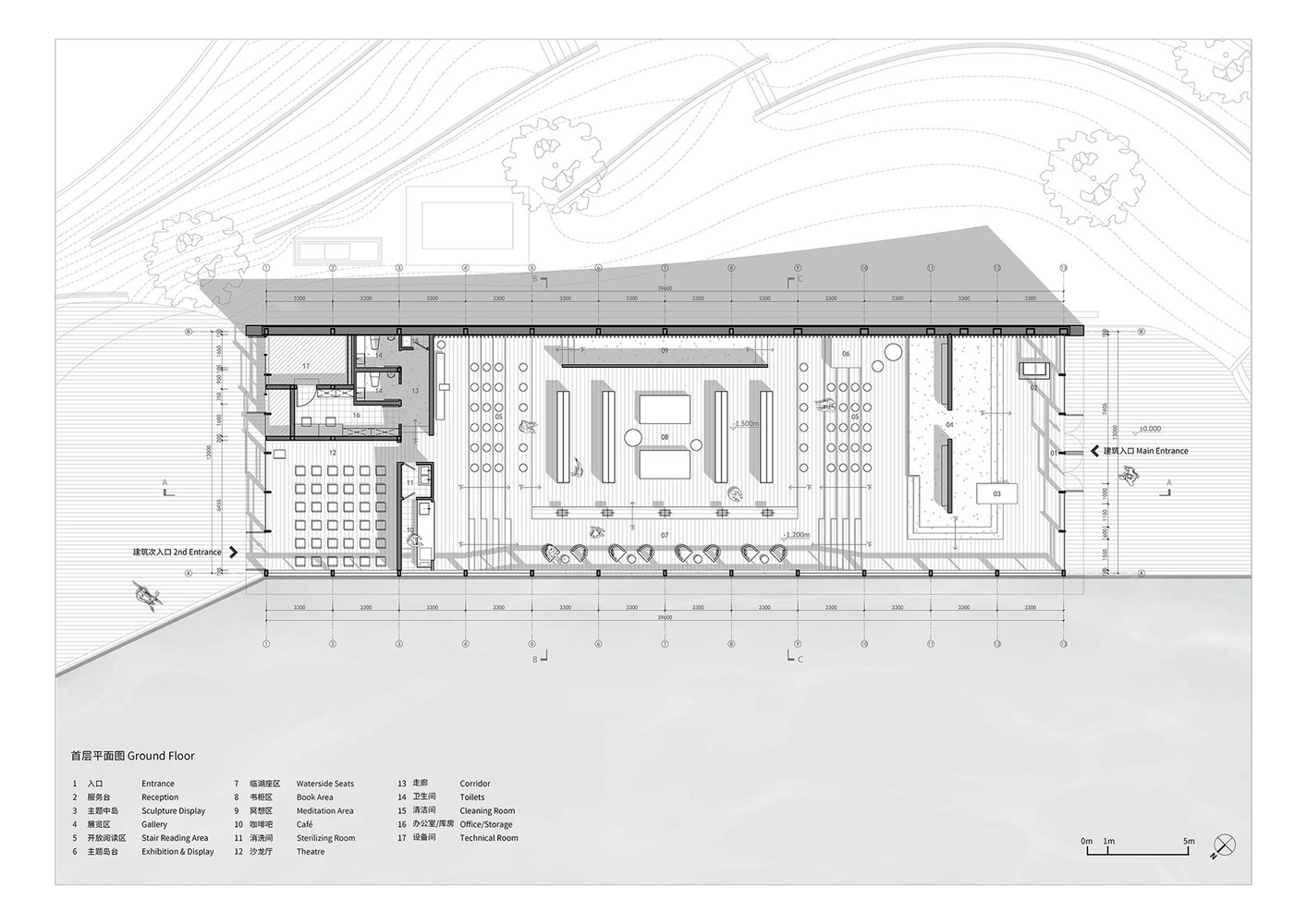
Flow & Function. Visitors could get access to the bookstore from the main entrance on the south end where the reception, the gallery walls, and upwards forming a spatial sequence of the entrance area. Sunlight casts through the glass wall on the left side and introduces the lake view into the interior space.
Art gallery walls and a sculpture display area are placed at the entrance of the bookstore to release a sense of tranquility as the introduction of this book in architectural form. Walking through the art exhibition area and downward with several steps, the sunken reading area could be found as the core of the bookstore. Standing, leaning, or sitting on the steps, users can gain the most comfortable reading state.
The entirety of the architectural structure is presented by a steel frame. The vertical steel columns are subtly concealed in the keel installation of the glass curtain wall and covered by the wall with no traces. The waterfront glass curtain wall extends to about one meter beneath the water, adding more interest to the space with the light and ripples. MUDA thus provides users with a unique underwater reading experience.
A row of cafe tables and chairs are furnished along the glass curtain wall to generate a waterfront reading area, which is functioned as a cafe as well. To complement the ambiance, undulating water waves projected by the natural lights add more interest to the spatial experience. Rocks and submerged plants are plotted in front of the glass curtain wall as the background of swimming fish. Visitors could take a seat and have an ambiguous conversation with the lapsing time and nature.
The design of the meditation area takes account of self-talk and internal monologue potentially needed from the perspective of readers. It is formed as a narrow corridor along the east wall with several windows dispersed in different sizes. Those small openings allow the natural light to stream in with shadow cast while the light and shade tell the traces of time.
Meanwhile, the interior wall is installed with a slender horizontal opening which is designed to be about the level of people’s sight. It creates a relatively enclosed space in the bookstore for visitors to ponder and catch a glimpse of the natural environment, which aims to remind them of the relationship between themselves and the world internally and externally. The theatre space, office, and storage area are located at the secondary entrance, which could ensure privacy and flexibility when activities are arranged.
The landscape design of the site is compatible with the architectural design of the bookstore, respecting nature and the site to the greatest extent. The back of the building restores the original sloping contours of the site, forming layers of cascading grass and setting up an arcing landscape wall to echo it. Users can rest on the grass or sit on the scenic wall, the sense forming a harmonious coexistence among people, architecture, and nature. Wooden platforms are designed at both entrances of the building, providing users with outdoor resting and water-friendly spaces, and providing more space for the bookstore's operational activities.
Details & Materials. Titanium zinc panels imported from France are adopted for the architectural surface. Panels are installed by using the flatlock system to provide a fish scale texture and a visual connection with the shimmering lake. The texture of the titanium-zinc panels also corresponds to the traditional "tile roof" form. The titanium zinc panel could get protected from its zinc carbonate layer and get recovered from slight scratches by its oxidation. The outstanding intrinsic recovering capacity and the oxide layer would bring extra value and interest to the architecture.
More than 700 pieces of aluminum square tubes finished with wood grain extrusion are installed for the grille ceiling, forming the united aura. Each piece is bespoken with its individual curvature for assembling as a smooth hyperbolic ceiling surface. Insisting on obtaining a neat appearance, the mechanical extraction ducts, the smoke detection system, and lighting circuits are strategically wrapped in the gap between the ceiling and the steel frame of the roof. The grille extends from the ceiling to the foot of the wall to stress the tension of the space. The interior is presented in the most simple and pure way, using two materials, wood grain and concrete texture paint as the base color of the space, with the intention of eliminating complicated decorations and bringing a more comfortable visual experience for users.
In order to ensure the quality, the underwater section of the glass curtain wall is calculated under the consideration of the highest water level during the flood season, and it has been tested for waterproof performance by multiple times. The watertight process mainly focuses on the resistant glass wall against the water pressure and the airtightness between column and glass, and it is also designed to reduce the possibility of contacting water and steel structure. Hollow glass panels with double-sided adhesive strips are adapted to meet the functions and requirements. Using 3.2m x 4m form and four layers of salinity along the lake, the design achieves outdoor water pressure resistance, indoor impact resistance, and building insulation and energy saving.
Summary. With neither winding corridors, nor mysterious concealment, the whole space gives the reader unlimited possibilities and great physical and mental freedom. MUDA-Architects use architectural language to propose the relationship between man and books, man and nature, and man and space. Within this building, mountains, lakes, and things are equivalent to people, we regain interest to each other while forgetting ourselves; within this building, people are awakening to face their true self, and to repair the degraded.
Chengdu Xinglong Lake CITIC Bookstore
Chengdu, China
Architects : MUDA-Architects
Area : 500㎡
Year : 2021












































from archdaily
'ARCHITECTURE > CULTURE' 카테고리의 다른 글
| 두바이 엑스포 2020 브라질관[Brazilian Pavilion Expo Dubai 2020] - MMBB Arquitetos + Ben-Avid + JPG.ARQ (0) | 2022.02.04 |
|---|---|
| 체코 파빌리온 리노베이션[Exhibition Centre Pavilon Z] - A8000 (0) | 2022.01.10 |
| 공원 속 방문자 센터[Park Pavilion The Hoge Veluwe National Park]- De Zwarte Hond + MONADNOCK (1) | 2021.09.12 |
| 두 얼굴의 갤러리[Bridge Gallery]-Atlier Lai (0) | 2021.07.27 |
| 더 폴리곤[Polygon Gallery]-Patkau Architects (0) | 2021.07.27 |