2022. 6. 16. 22:53ㆍARCHITECTURE/RESIDENTIAL
The house is part of a small city renovation in the west of Amsterdam. Ten self-build houses and three collective housing projects share a mutual semi-private entrance road. The road connects to the gardens of the houses while the main entrances are located on the park side.
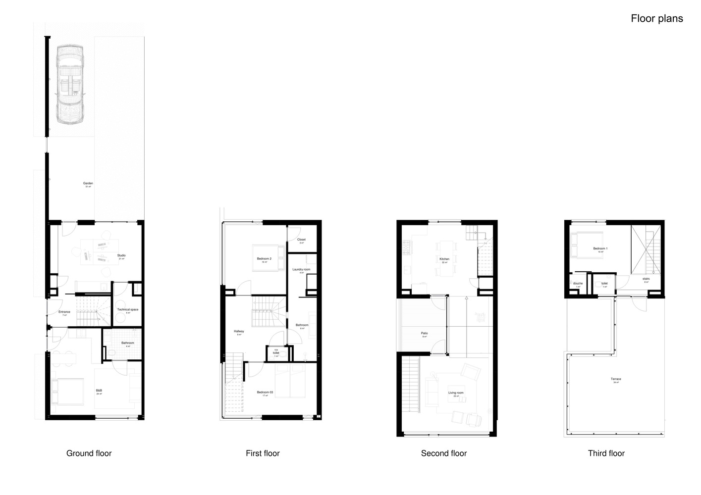
The brief was to design a family house with 3 bedrooms, an office, and a room for rent. Due to the orientation without a south facade, bringing in direct sunlight to the house, as deep as possible, was an essential task. The key element here is the introduction of a patio on the 2nd floor in between the kitchen and living room. This semi-outdoor space acts as a ventilation space, a sound-sheltered outdoor, and a light vent. The organization of the house is based on the unfolding experience of twisted stairs and varying floor heights.
Contrary to the rest of the neighboring houses, the entrance is situated on the long side of the house. The entrance splits the ground floor in two, with an office on the left and B&B on the right. The semi-circular stair invites us to the first floor where the visitor is drawn towards the stairs on the left by the daylight coming from the second floor. The first floor contains the child’s bedrooms and bathroom. The second stair guides the visitor to the framed view of the park while entering the 3.5m high living room. Here one makes a 180-degree turn, to move towards the kitchen, while slowly ascending under an equally descending ceiling. The grandeur of the living room slowly morphs into an intimate kitchen area while passing next to the light patio.
In the kitchen, the visitor makes a second 180-degree turn towards the roof terrace and the third bedroom on the top floor. The route ends on the sunny terrace with a view of the park and metro. The building has a strong sculptural quality due to the composition of the patio, the big windows, the overhang, and the continuous garden wall. The monolithic brick reinforces this shape. The brick pattern has a horizontal accent since the brick lacks a vertical seam.
With an innovative building system of lightweight steel frame (LSF), the skeleton has been built in only three weeks. The system allows great flexibility to create floor openings and varying heights. All walls and floors are filled with insulation. The outer walls contain OSB sheeting with E-board insulations and Brick slips on top. This creates a very sustainable facade. Together with the heat pump and solar panels the house is close to energy neutral.
The interior of the house is a fluid continuous space with a flexible construction system that somewhat reminds of the architecture of Adolf Loos. The sculptural minimalistic façade gives it a unique identity closing of this experimental housing site in Amsterdam West.
KKL13 Housing Complex
AMSTERDAM, NETHERLANDS
Architects : OFMAA
Area : 235 ㎡
Year : 2021
Photographs : Wim Hanenberg


















'ARCHITECTURE > RESIDENTIAL' 카테고리의 다른 글
| 높이 차이가 있는 부지에 긴 지붕으로 이어진 주택[Nangou House] - Hearth Architects (0) | 2022.06.22 |
|---|---|
| 한옥마을 속 산을 바라보는 주택[Nature House] - Concrete Workshop (0) | 2022.06.22 |
| 일본 두 안뜰을 가진 주택[House in Umegaoka] - Container Design (0) | 2022.06.14 |
| 울산 옹벽과 산이 어우러진 주택[Jin-Hwa Mountain Cottage] - Todot Architects & Partners (0) | 2022.06.03 |
| 프랑스 테라스 아파트[110 Housing Units] - CoBe Architecture & Paysage (0) | 2022.06.02 |