2022. 6. 22. 16:51ㆍARCHITECTURE/RESIDENTIAL
This project embarked in a detached housing area in the housing site development district, which is adjacent to Jingwan-dong Hanok village, has been started with the aspiration to achieve the dream of the client in 60s close to retirement. The client’s requirement was simple. The client requested two things: to enable the client to start a day overlooking Mt. Bukhansan when the client opens their eyes at a bedroom in the morning and to have a spacious living room.
The present site located near a road having a width of 12M, which is the access road toward “Jingwansa Temple”, is particularly crowded with floating population on the weekend. In consideration of this aspect, it was the architect’s concern to protect the privacy of the client and at the same time to determine how the house could be perceived by the public in terms of city planning.
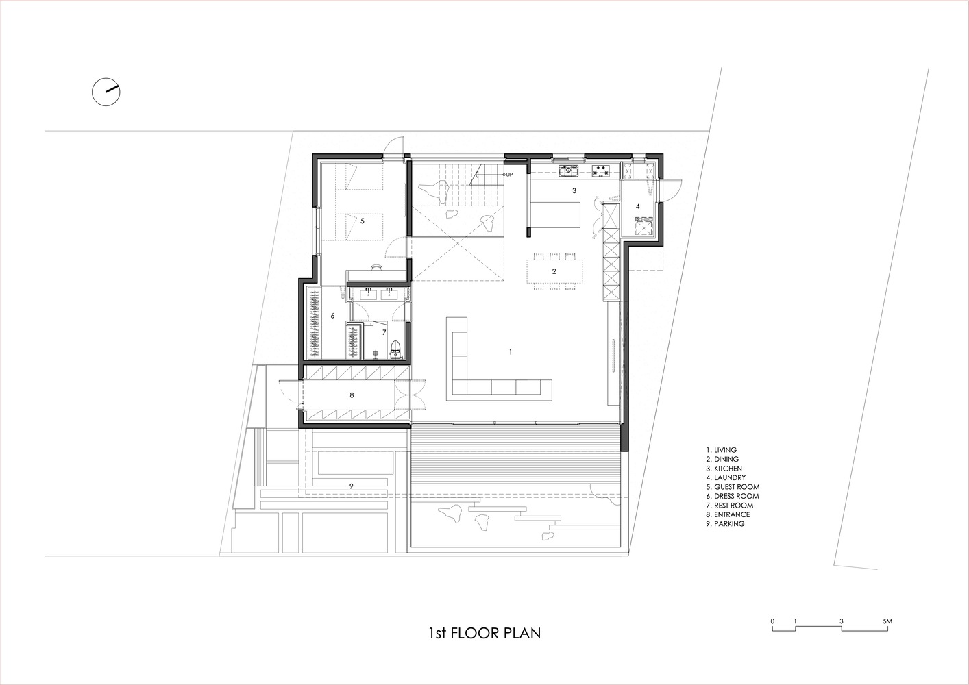
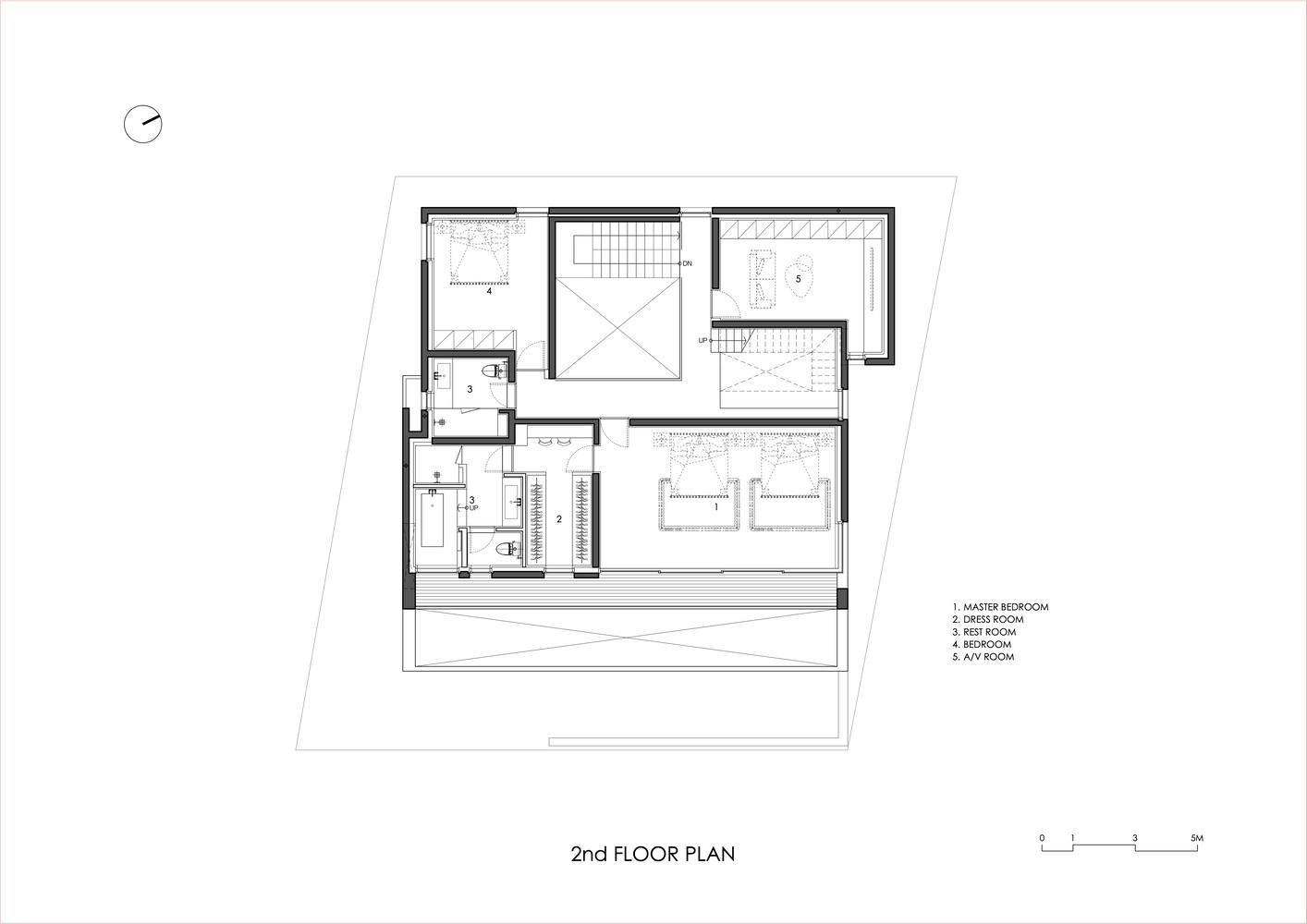
These various conditions functioned as elements defining the square planar configuration and shape of the house.
The exterior of the house was designed to embody sculptural feeling which strongly shows the inherent gradation of materials based on exposed concrete by which it is possible to get a sense of the flow of time through a change in the surface thereof. The pattern of the exposed concrete was separated into the pine plate design pattern and plain design pattern and thus it gives a feeling as if two different masses are entwined. Wing walls (exposed concrete) installed on the 1st floor and 2nd floor itself become compelling design elements of the house and at the same time are important devices protecting the privacy of the client. The exposed concrete wall body perceptually spanning when looking at the outside from the inside enables the viewer to have good tension and at the same time to have a psychologically stable feeling as if the viewer is protected from the outside.
Windows in various sizes are configured to be organically disposed of in the vertical circulation from the 1st floor to the attic and thus it becomes possible to actively see a change in nature. Also, a large-sized skylight installed in 4M x 5M size on the staircase chamber ceiling becomes light well through which light permeates to the living room in the daytime, and gives a feeling as if the watcher goes up to sky seeing stars at night. Black bamboos planted outside the windows of the staircase chamber enable people to entertain their ears as leaves of the black bamboos are hit and thus rustled with each other when the wind blows. All these devices are outputs resulting from the architect’s careful consideration of how to make it possible to impeccably feel the beautiful nature of Jinkwan-dong inside the house as well.
Rather than creating a number of chambers when designing each space, the house was designed to maximize open feeling which can be felt inside by designing the essentially necessary chamber to have as large area as possible, and to increase the coziness inside distinct chamber.
Nature House
EUNPYUNG-GU, SOUTH KOREA
Architects : Concrete Workshop
Area : 330 ㎡
Year : 2021
Photographs : Joonhwan Yoon

























from archdaily
'ARCHITECTURE > RESIDENTIAL' 카테고리의 다른 글
| 콘크리트 벽 출입구를 가진 인도네시아 주택[Cinere House] - After Office (0) | 2022.06.23 |
|---|---|
| 높이 차이가 있는 부지에 긴 지붕으로 이어진 주택[Nangou House] - Hearth Architects (0) | 2022.06.22 |
| 네덜란드 KKL13 주택단지[KKL13 Housing Complex] - OFMAA (0) | 2022.06.16 |
| 일본 두 안뜰을 가진 주택[House in Umegaoka] - Container Design (0) | 2022.06.14 |
| 울산 옹벽과 산이 어우러진 주택[Jin-Hwa Mountain Cottage] - Todot Architects & Partners (0) | 2022.06.03 |