2023. 5. 30. 16:56ㆍARCHITECTURE/COMMERCIAL & OFFICES
Café good & goody, a renewal project, is located in Gimhae, Republic of Korea. With the slogan of ‘Only good things for your ordinary life.’, it was planned with the hope that it would be a comfortable and cozy space that you would want to visit every day.
The exterior was finished in a dark wine color, a striking color, to overcome the handicap of being located in a place a little far from downtown and major roads.
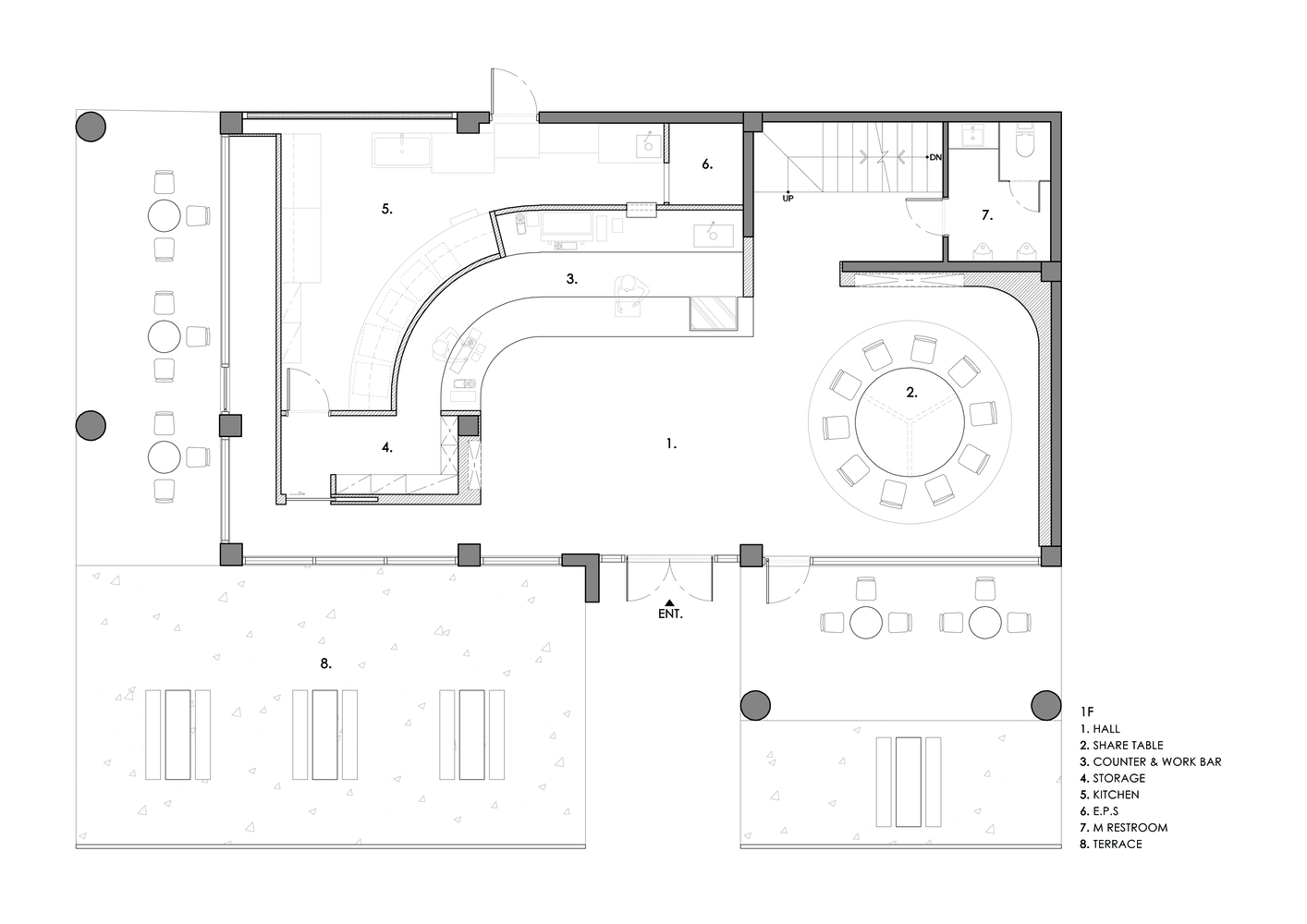
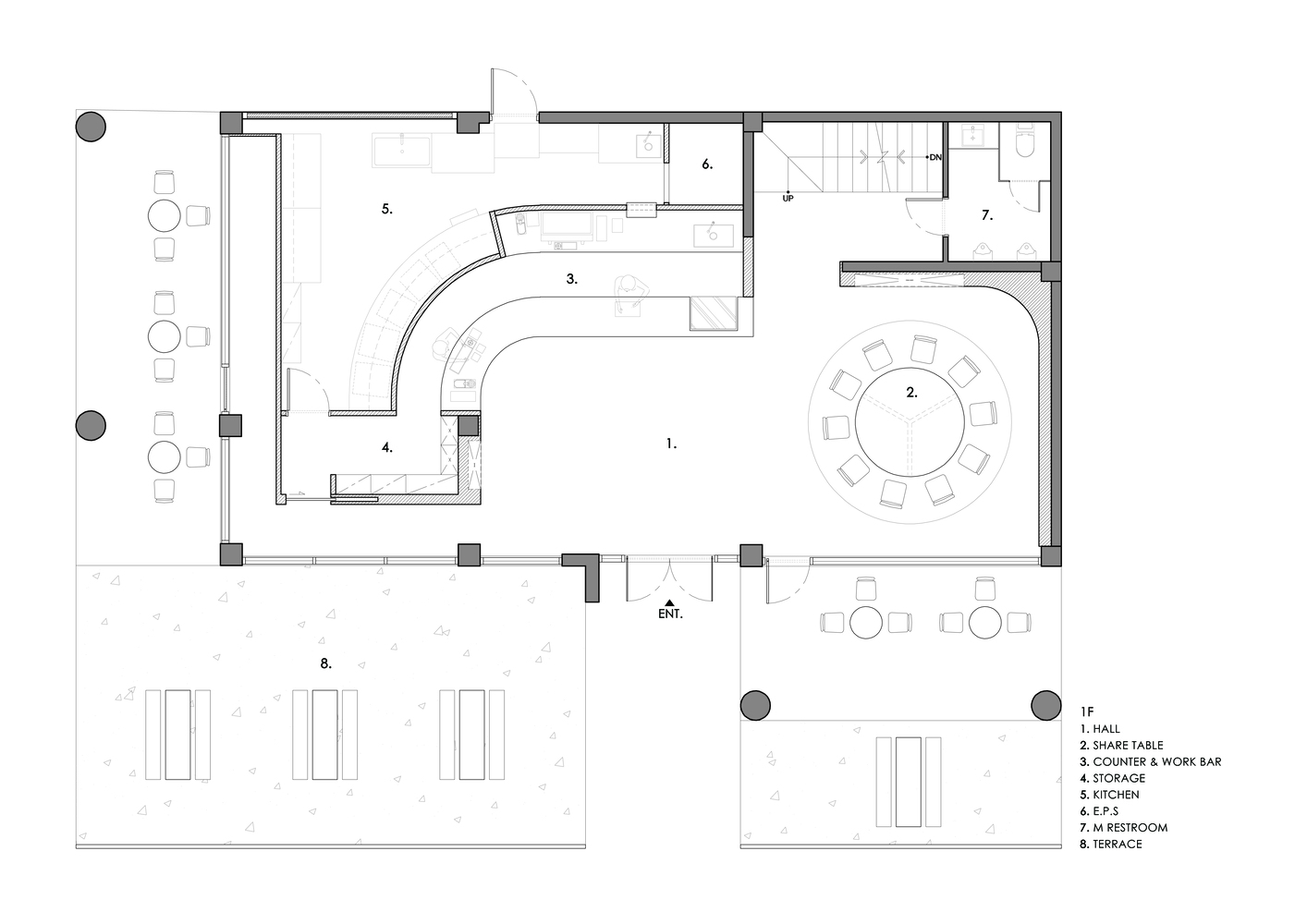
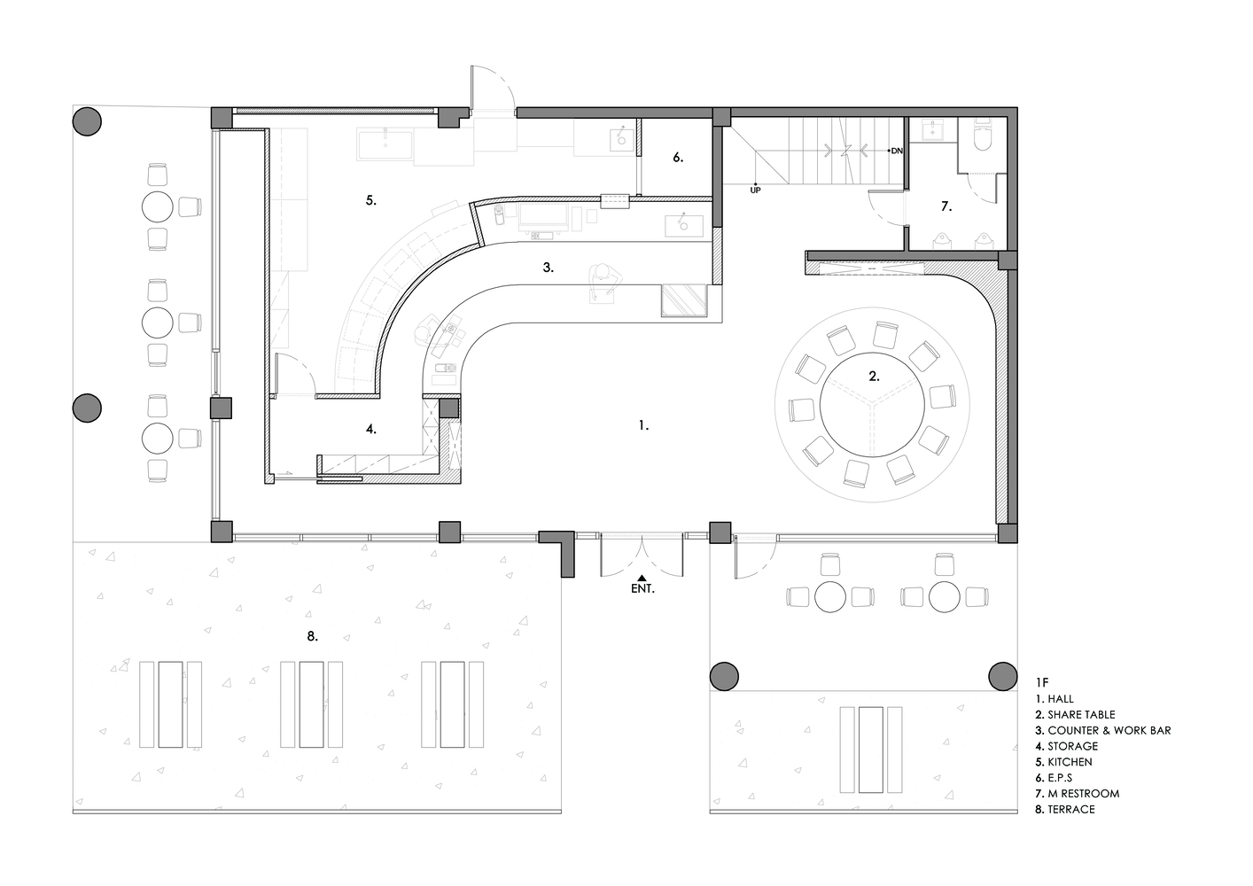
When entering through the main entrance on the first floor following the dark wine-colored exterior, the overall mint-colored base catches the eye with a counter that seems to be comfortably wrapped around it and a round sharing table not far from the entrance.
By reflecting the client's opinion that due to the characteristics of a brunch cafe, a spacious kitchen area is needed unlike a general café, it was placed functionally along with the counter, and the terracotta brick tile finish was intended to emphasize the volume of the mass where a sense of unity can be felt.
In addition, the production pendant located at the top of the share table and the handrail design of the stairs going up to the second floor were designed in a harmonious form with the curve of the huge mass.
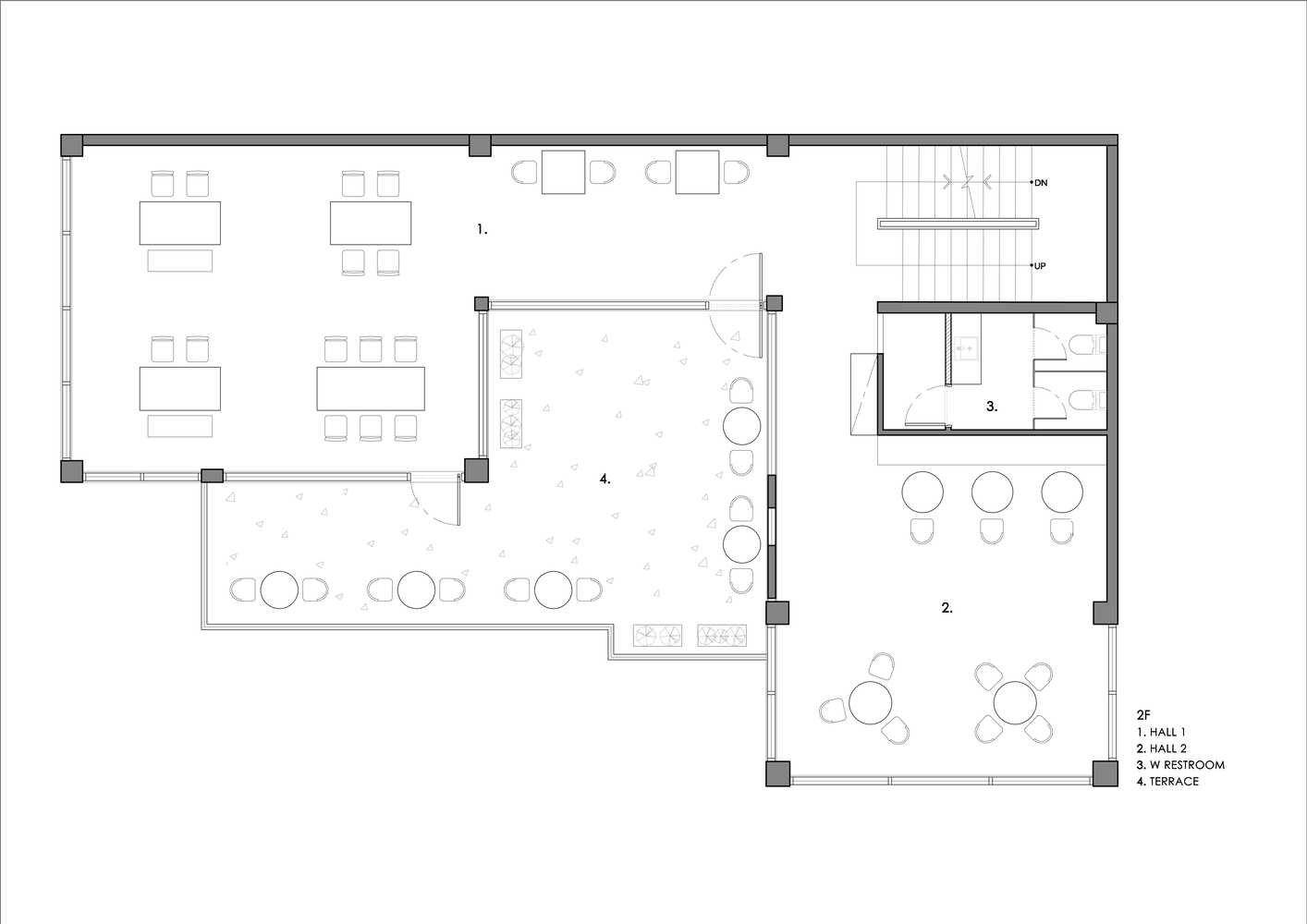
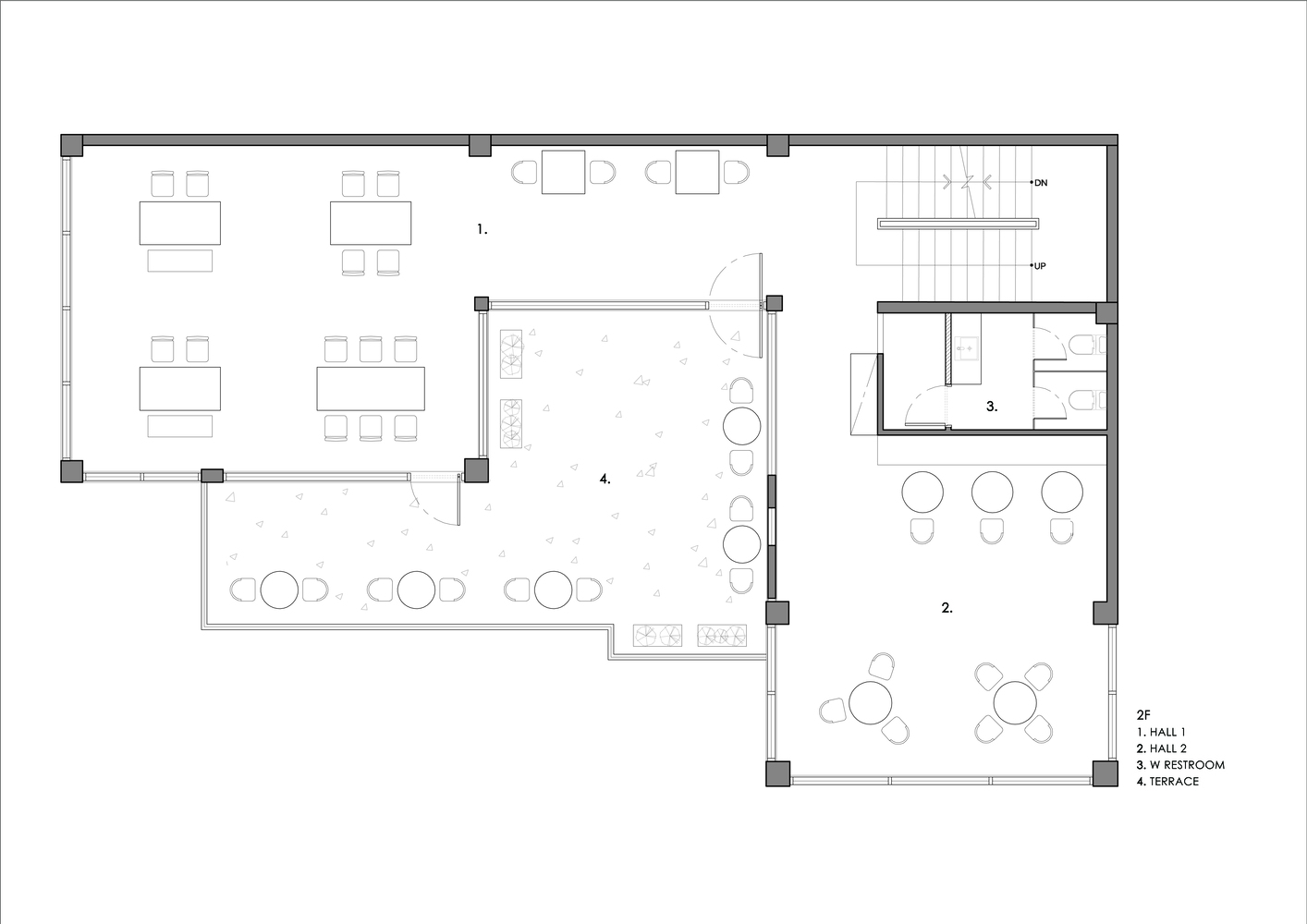
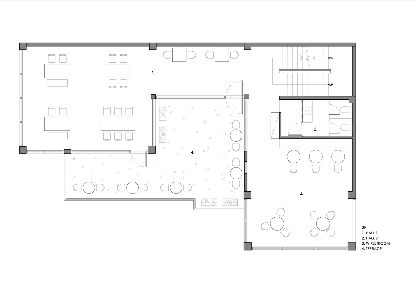
The space on the 2nd floor is laid out comfortably so that anyone can enjoy coffee comfortably and comfortably, and the floor is made of terracotta brick tiles of the same wine color as the 1st floor and finished with a mint color paint, so the overall design is harmonious.
카페 굿앤굿디는 한국 경상남도 김해에 위치한 리뉴얼 프로젝트입니다.
"평범한 일상에만 좋은 것들."이라는 슬로건과 함께, 매일 방문하고 싶은 편안하고 아늑한 공간이 되기를 희망하여 계획되었습니다.
외관은 약간 시내와 주요 도로에서 떨어진 위치의 단점을 극복하기 위해 독특한 어두운 와인색으로 마감되었습니다.
어두운 와인색 외관을 따라 1층의 정문을 통해 들어가면, 전체적으로 민트색 베이스가 눈에 띄며, 편안하게 감싸진 듯한 카운터와 입구에서 멀지 않은 라운드 쉐어링 테이블이 눈에 띕니다.
아침식사 카페의 특성상 일반 카페와 달리 넓은 주방 공간이 필요하다는 고객의 의견을 반영하여 기능적으로 배치되었으며, 테라코타 벽돌 타일 마감은 일관된 느낌의 대량성을 강조하기 위해 의도되었습니다.
또한, 쉐어링 테이블 상단에 위치한 조명과 2층으로 올라가는 계단의 난간 디자인은 거대한 대량의 곡선과 조화롭게 디자인되었습니다.
2층 공간은 누구나 편안하고 편안하게 커피를 즐길 수 있도록 편리하게 배치되었으며, 바닥은 1층과 동일한 와인색 테라코타 벽돌 타일로 마감되어 전반적인 디자인이 조화롭습니다.
Cafe good & goody
GIMHAE-SI, SOUTH KOREA
Architects : design by 83
Area : 255㎡
Year : 2023
Photographs : Dong-gyu Kim




















from archdaily