2024. 6. 18. 14:05ㆍARCHITECTURE/COMMERCIAL & OFFICES
W-Mission의 새로운 본사는 서울 성수동에 위치하며, 전통적인 붉은 벽돌을 사용한 건물로 예술, 문화, 디자인의 중심지로 떠오르고 있습니다. 건물 디자인은 성스러움, 성소, 공동체라는 세 가지 개념을 바탕으로 하며, 곡선 벽돌 커튼월 시스템을 통해 바다의 파도와 직물의 물성을 반영합니다. 건물은 커뮤니티 공간, 오픈 오피스, W-Mission 본사의 세 가지 층으로 구성되며, 각 층은 내부 파티오와 정원을 통해 연결되어 공동체의 느낌을 강화합니다.
W-Mission is one of the highest-quality textile manufacturers in South Korea. Their new headquarters are located in Seongsu-dong, Seoul, and are known for their shoe manufacturing factory buildings, which were built with traditional red brick. This reborn district has become a vibrant urban landmark for art, culture, and design in the Korean capital.
The commission of this design departs from three main existential concepts that best represent the spiritual character of the client: sacredness, sanctuary, and community. The inspiration for it reflects on the ocean waves of the birthplace of our client and the material properties of textiles, such as lightness, weaving patterns, undulation and enclosure, and disclosure. The architectural features heighten the feeling of spirituality, the main one being the reversal of a traditional Gothic high-arched facade from the interior (of a cathedral) to the exterior urban street.
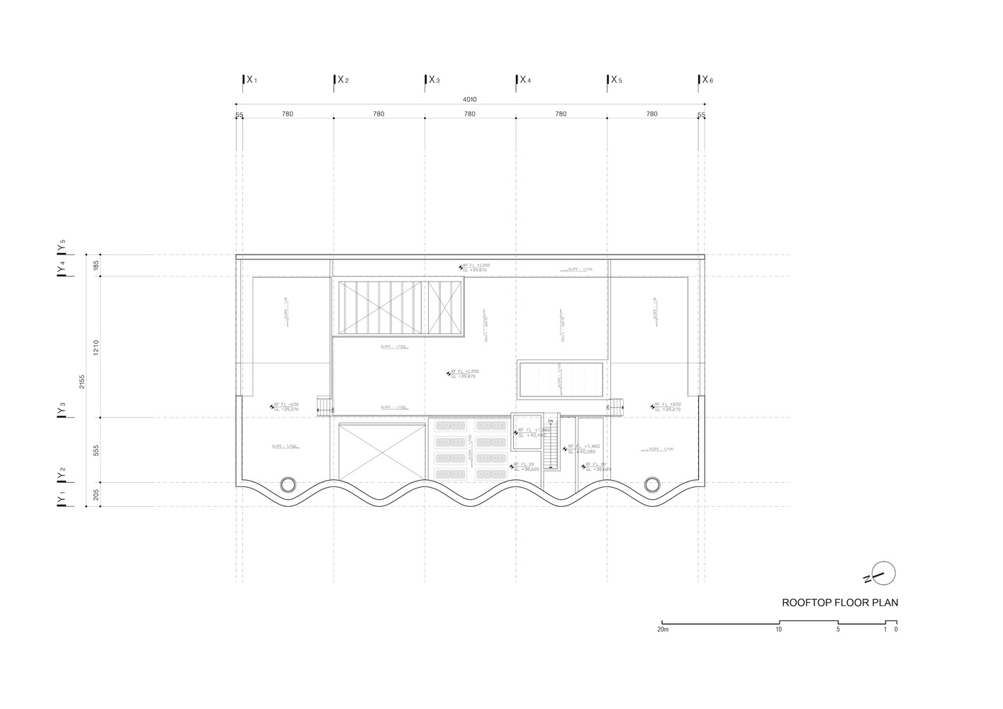
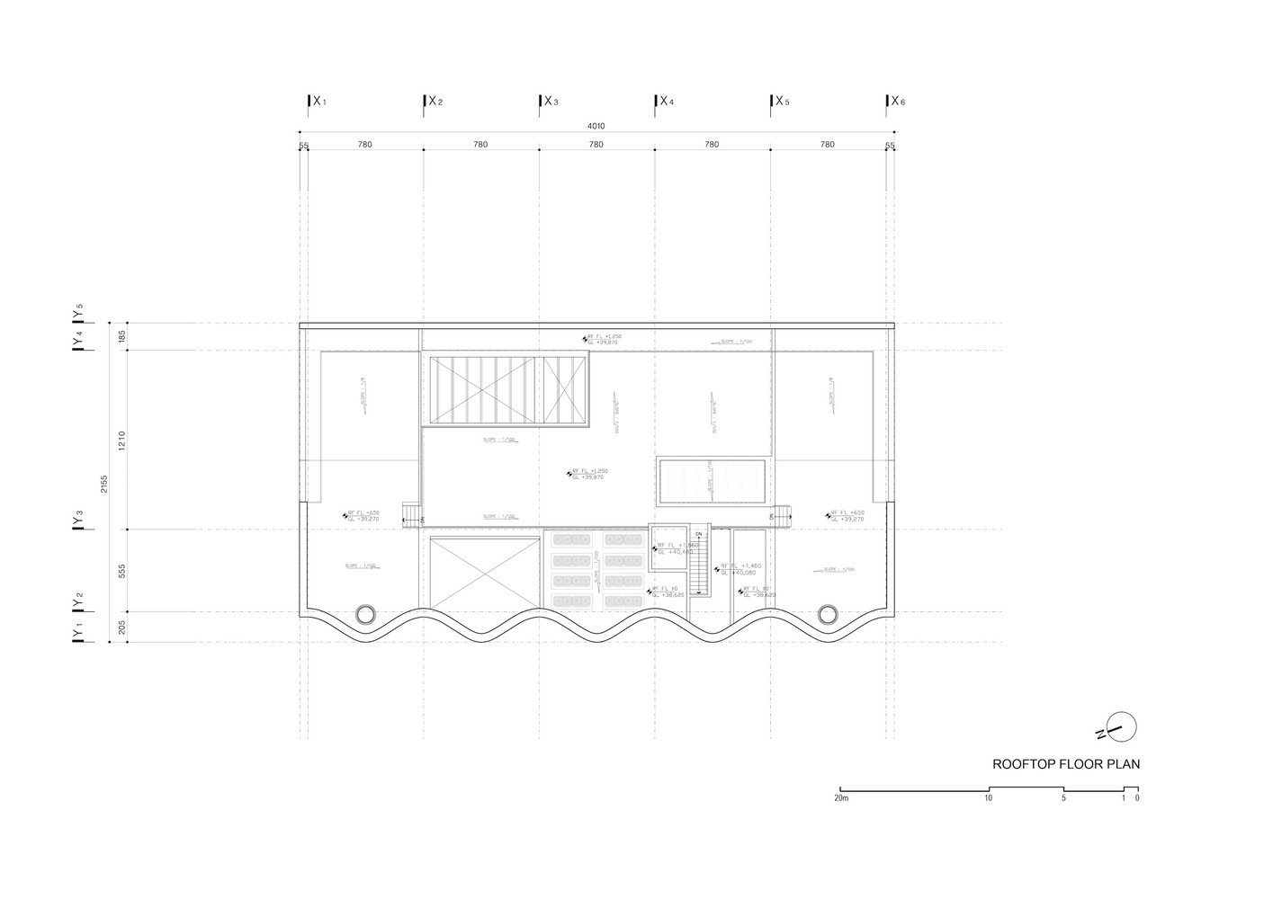
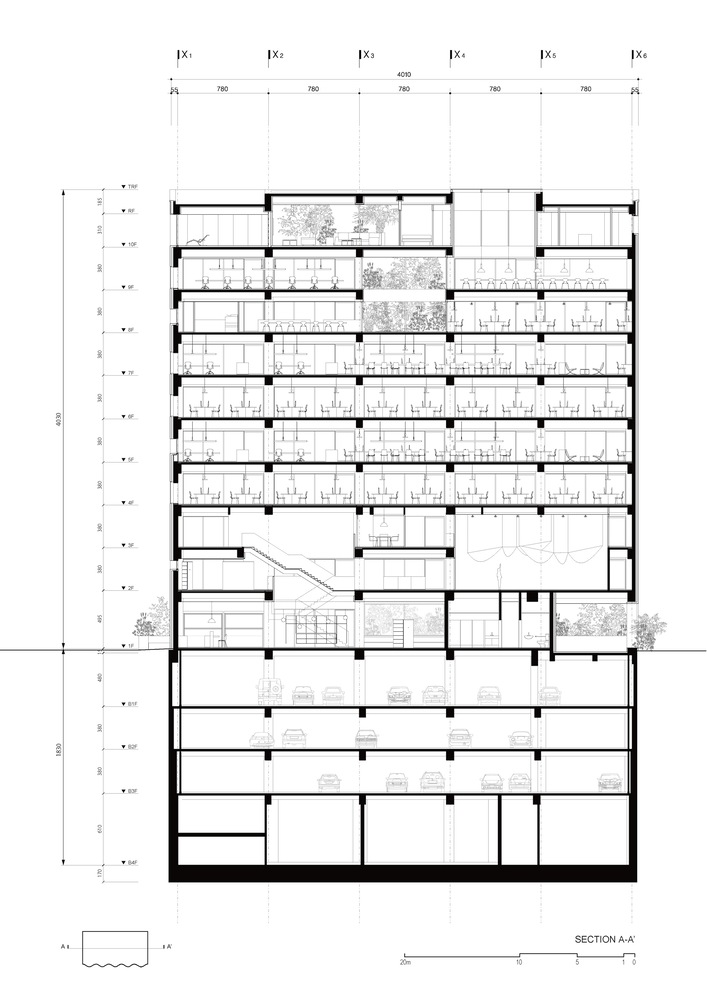
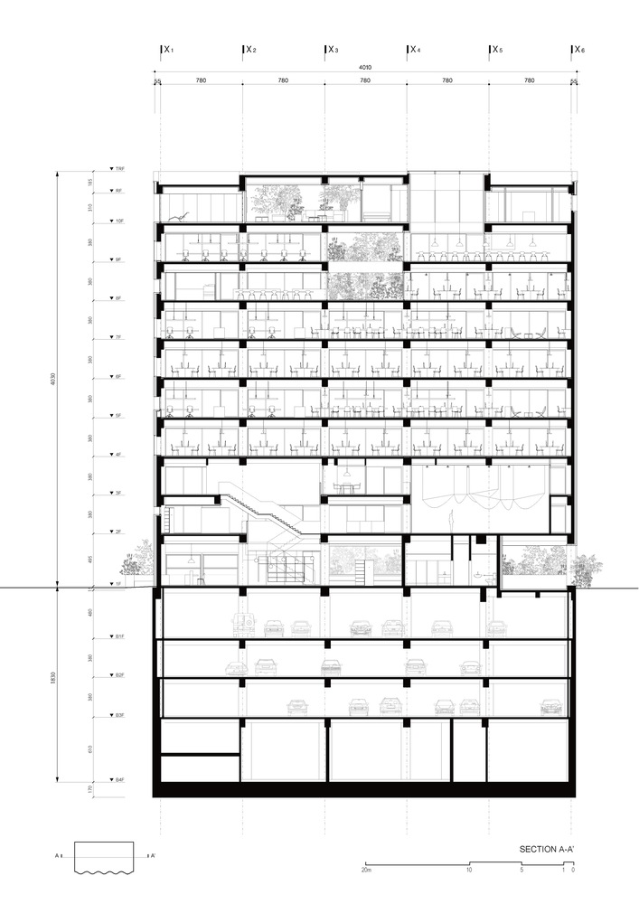
The reproduction of drapery in stone sculpture, as researched during the design process of the Administrative Building for the Textilverband, has always represented a captivating paradox. In this case, the traditional brick masonry system offered great capacity to depict and adapt to the desired curve. Brick construction has a long historical tradition in Seoul. The adopted solution, in this case, is a literal ‘curtain wall’ system using bricks attached to a concrete wall cast “in situ,” which serves as a guide for constructing the curve. With the help of a digital computational tool, we could devise a rather simple algorithm for creating the intended wave effect rising up to the sky. With 520 courses of brick height, every 24 courses, a new brick is added to achieve the desired curve growth. The wave amplitude ranges from 0 on the third floor, where it starts, to 170cm at the roof line.
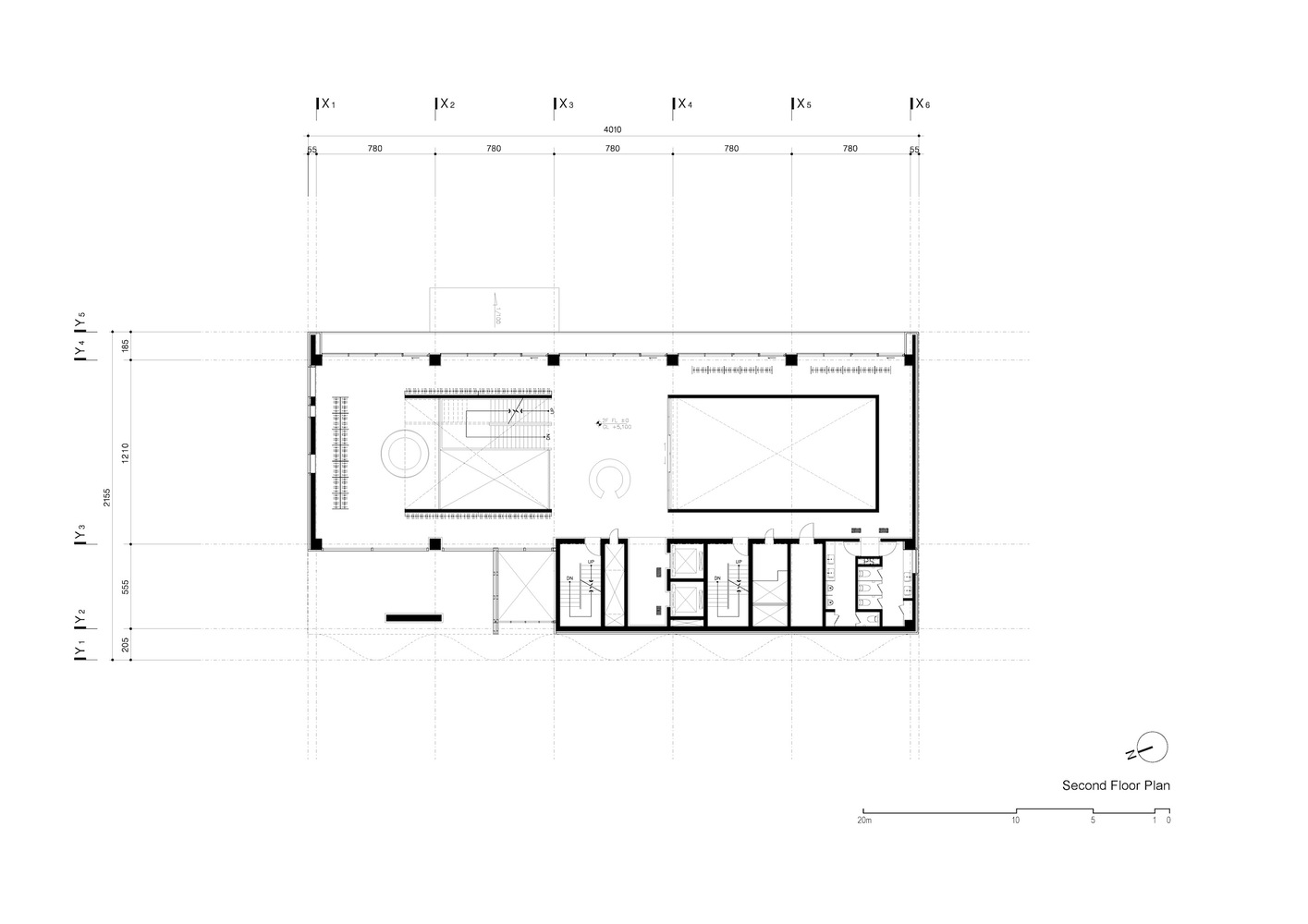
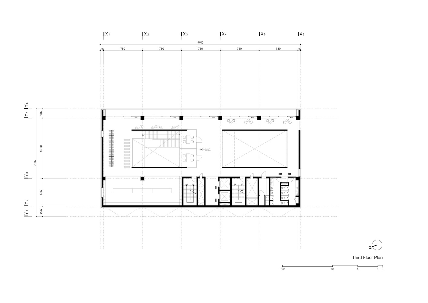
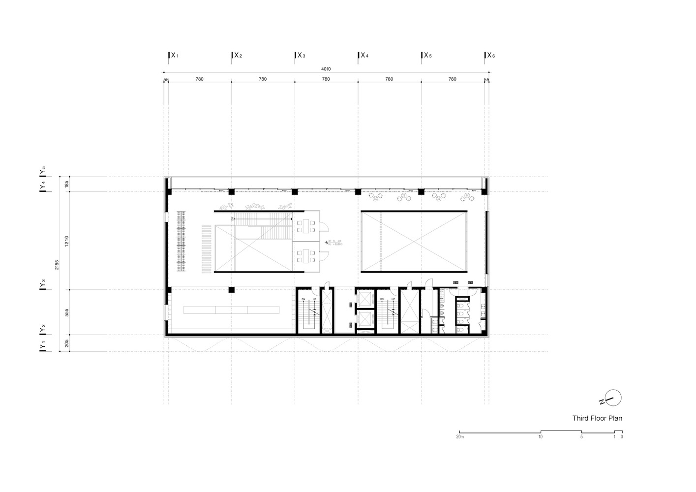
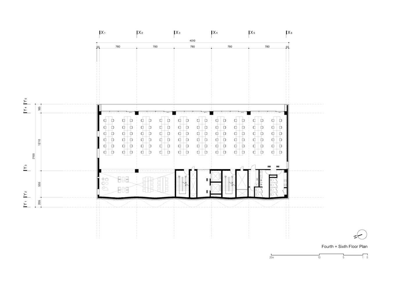
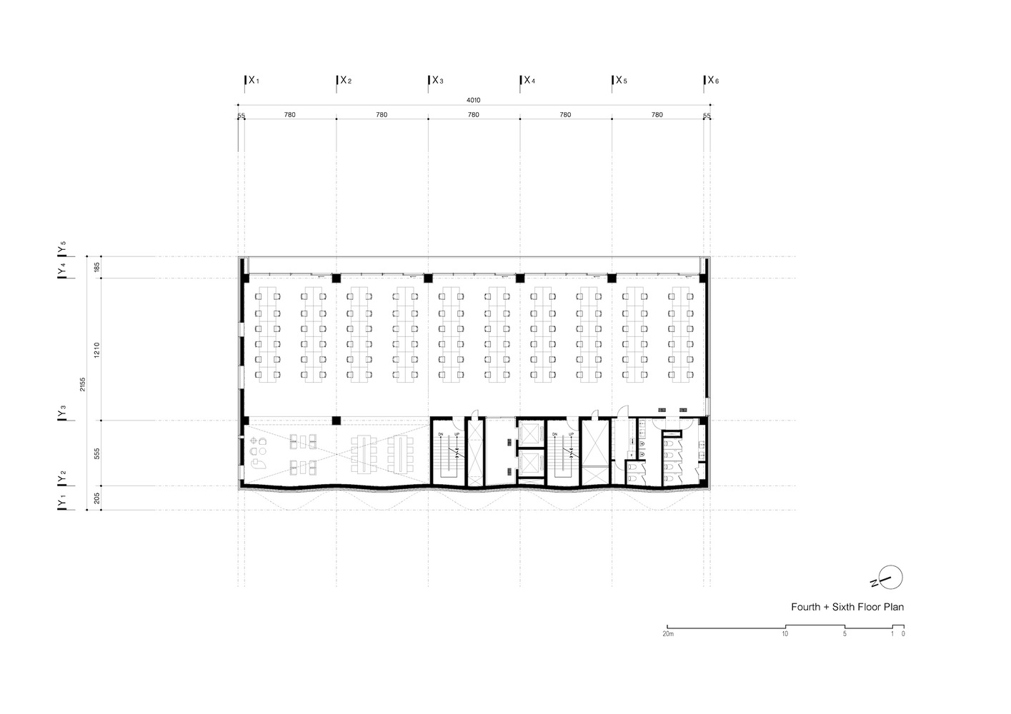
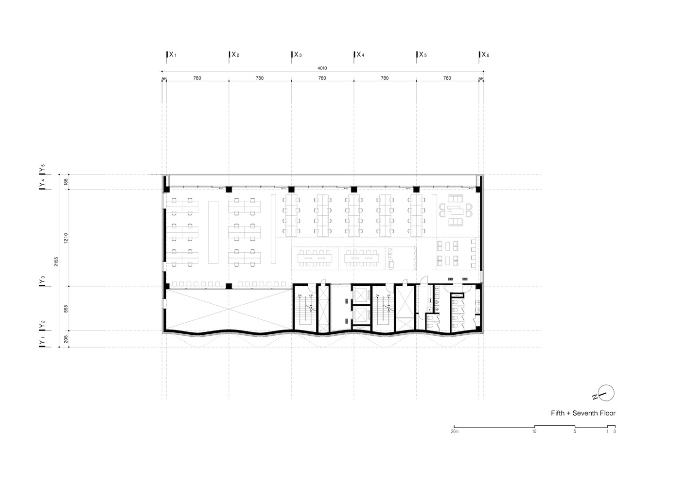
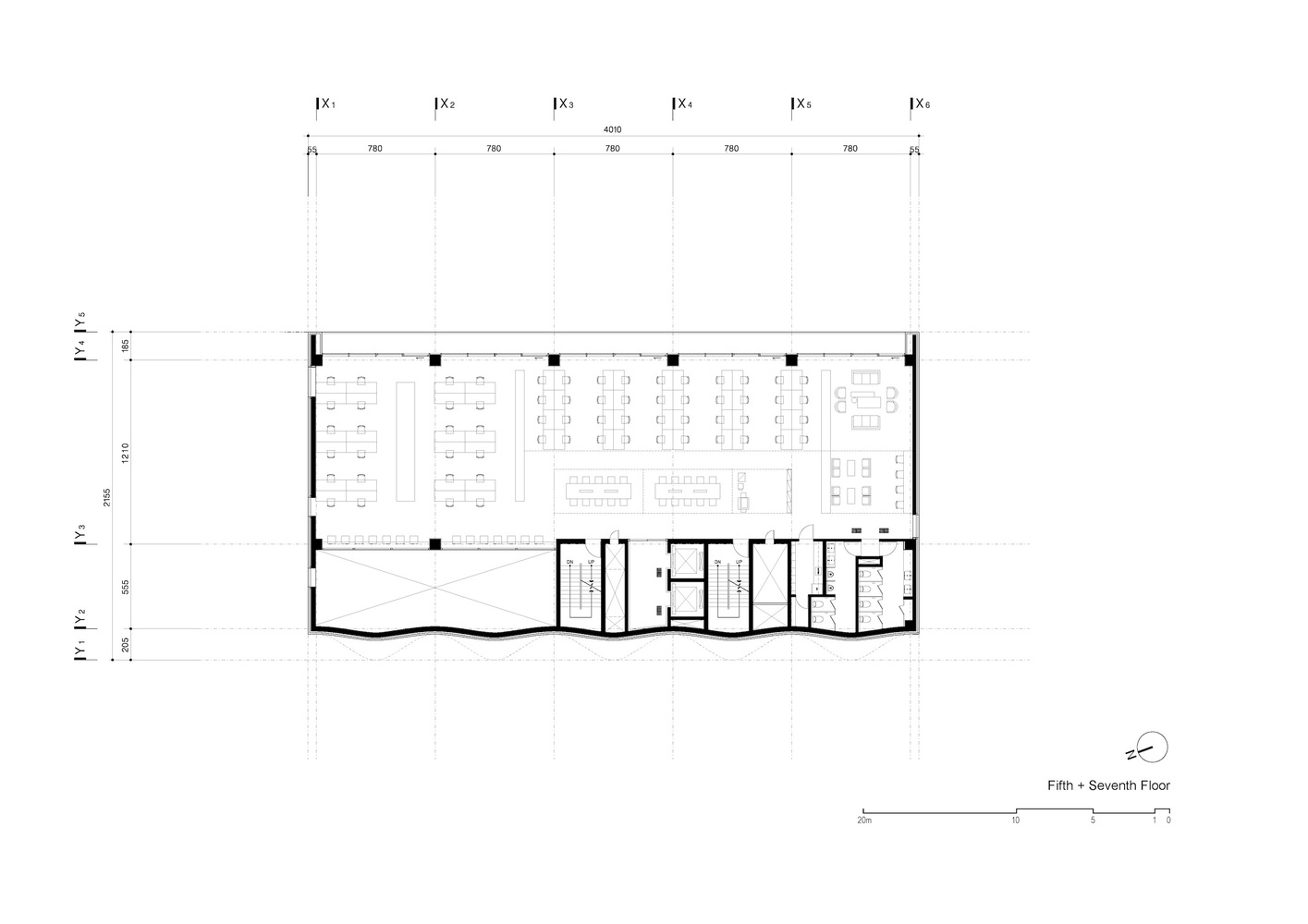
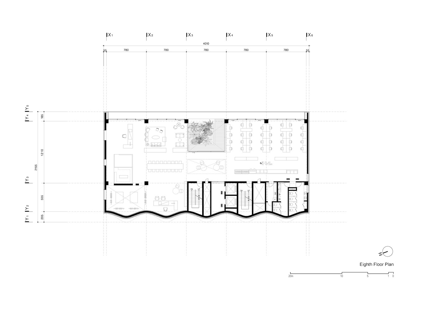
The building consists of 3 stratified programmatic layers:
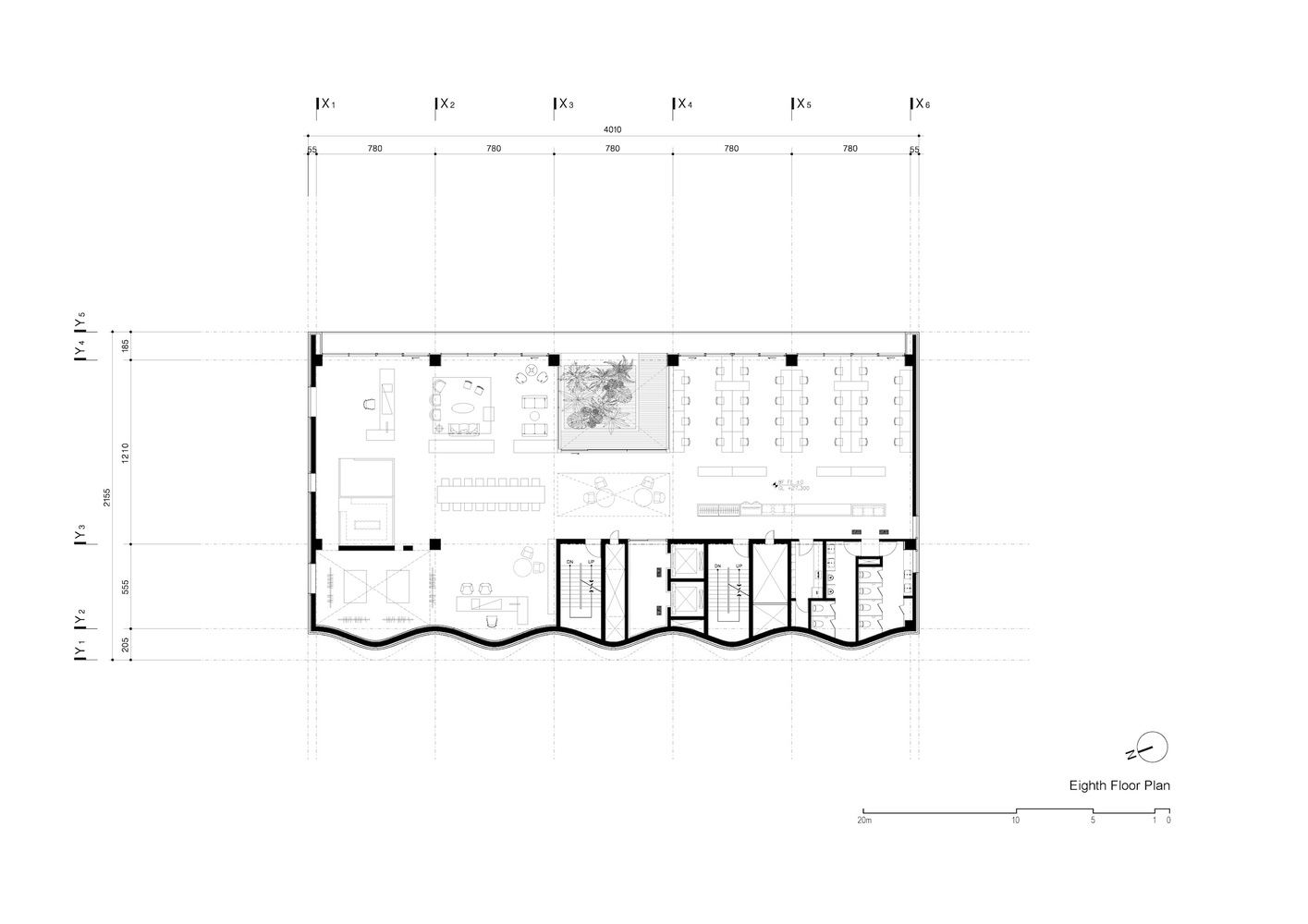
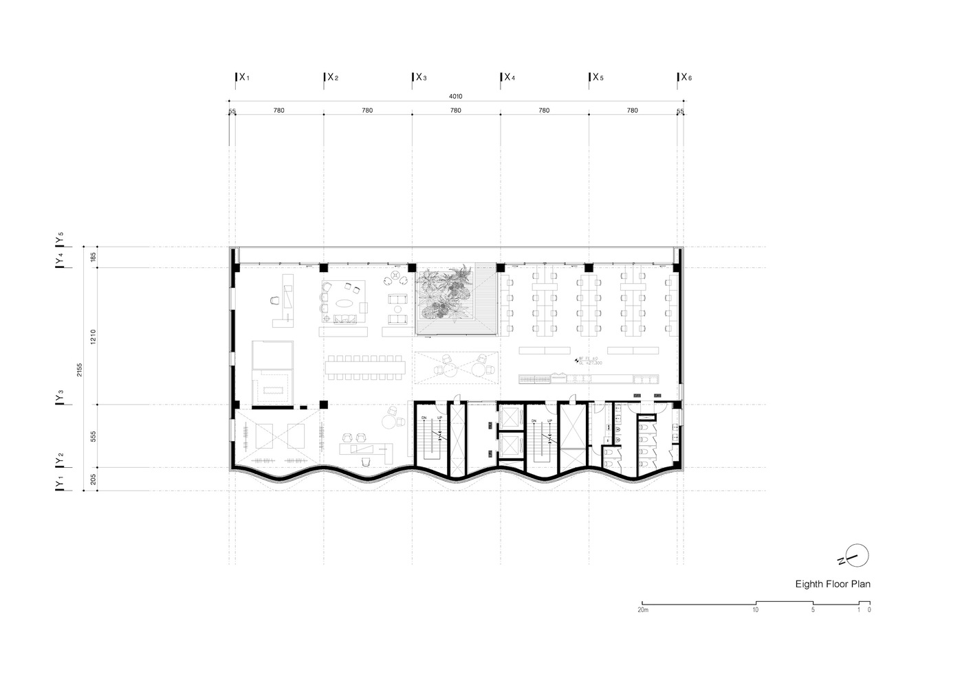
The community zone with street frontage that consists of the WM Café and garden, the WMission academy, workshop, and exhibition spaces. A three-floor height atrium articulates the public program of the building.
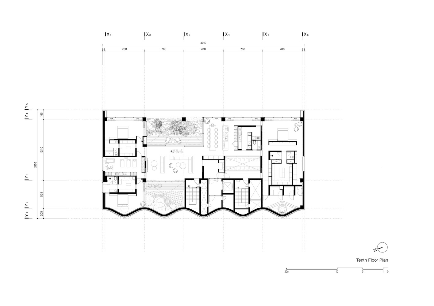
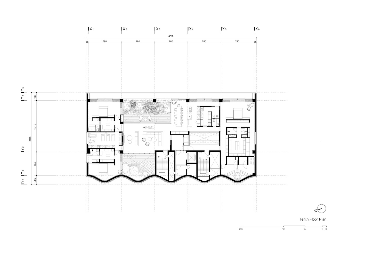
An open office block of four floors is located above the public package. - W-Mission’s headquarters as top zone on the last three floors. Integrated by office program, workshop and gathering spaces. Within this private area of the building, double height interconnected spaces inspired by the typology of the basilica nave introduce natural light that evokes an environment for spirituality and meditation.
All 3 zones offer semi-outdoor double height courtyards. Put together; the building creates a kind of vertical neighborhood with generous outdoor pockets and internal patios that are shifted but interconnected, all reaching out to the outdoor space and the sky and reinforcing the feeling of community.
The waving façade acts as a backcloth for the urban perspectives of the streets that lead into Seongsu-dong District from the west across the Seoul Forest Park. This characteristic solid façade houses the service program and the vertical circulations. In contrast, the outdoor gardens and terraces on the east façade offer a wide open view towards the Han River and Seongsu-dong District. The north façade is composed of apparently random openings categorized by three different types that respond to the programmatic requirements of the space.
W-Mission Headquarters
SUNGSU, KOREA
Architects : Behet Bondzio Lin Architekten
Area : 9,483㎡
Year : 2024
Photographs : YuChen Chao Photography



































from archdaily