2024. 4. 8. 15:55ㆍARCHITECTURE/COMMERCIAL & OFFICES
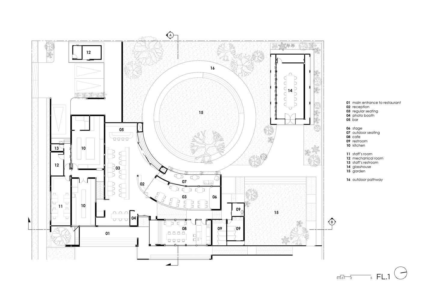
DAWN to DUSK, as the name implies, is meticulously crafted to provide customers with comprehensive services from morning until night. The establishment comprises a restaurant, cafe, bar, and a glass house for events, accompanied by a generously spacious outdoor area. The concept of 'Dawn to Dusk' is vividly expressed in both its exterior and interior design. ‘Dawn’ and ‘Dusk’ can be portrayed through the image of the Sun when it appears and disappears. On the exterior, part of the circle, representing the sun, is carved out of the brick wall, symbolizing sunrise and sunset. This incomplete circle also applies to different zones in the form of an arch.
Each zone has a name and concept in correlation to ‘Dawn’ and ‘Dusk,’ including a Solar bar, Lunar space, and Varda room. The cafe or Solar bar represents ‘Dawn,’ which is the first opening zone of the day. It is located at the front for customers to easily grab their orders and go. Arch and curved lamps are used to represent the Sunrays. They are embedded in the ceiling, rhythmically portraying the moment when the sun is rising. As for Lunar space and Lunar bar, it represents ‘Dusk,’ the time of the day when the sun starts to disappear and gets replaced by the Moon. This concept corresponds to its service time as Lunar space, or the restaurant area, serves till night while Lunar bars open at later hours. To create a romantic atmosphere, indirect and dim light are used, creating partially bright light and portraying moonlight at night. What shines at night is not only the moon but also the stars. The concept of star is applied to the Varda room, which is named after a character who creates stars in J.R.R. Tolkien’s Silmarillion. It is a private room at the glass house where private events can be held. Hanging fairy lights and stars fiber optic lights are used to create a starry sky within the room.
Beyond the indoor sections, an outdoor area named 'New Moon' features a circular pathway portraying a full moon on the ground, creating a captivating atmosphere perfect for evenings and nights. Guests have the freedom to stroll or sit, immersing themselves in the outdoor ambiance. Families with children and pet enthusiasts are also encouraged to make use of this space freely.
Aged brick serves as the primary material for the exterior wall, as its durability and color exceptionally complement the orange-hued sky during sunrise and sunset, conveying the ambiance of a cross-cultural restaurant with a touch of elegance. The pattern of an exterior brick is continuously applied to the interior space, mixing with other good vibes materials and decorations to create a mood suitable for various types of food, offering cross-cultural comfort. Each indoor space provides a view of the New Moon outdoor area through a semi-circle arch shape, symbolizing the sun.
DAWN to DUSK Restaurant
KHET BANG KAPI, THAILAND
Architects : TOUCH Architect
Area : 610㎡
Year : 2023
Photographs : Metipat Prommomate



























From archdaily
'ARCHITECTURE > COMMERCIAL & OFFICES' 카테고리의 다른 글
| 도심 속 계단식 근생건물[Seocho Staircase Neighborhood Living Facilities] - mlnp architects (1) | 2024.09.06 |
|---|---|
| 성수 섬유의류회사 사옥[W‐Mission Headquarters] - Behet Bondzio Lin Architekten (0) | 2024.06.18 |
| 테라코타 벽돌과 민트색 벽의 조화를 가진 카페[Cafe good & goody] - design by 83 (0) | 2023.05.30 |
| 지붕 아래의 시장 타이난마켓[Tainan Market] - MVRDV (0) | 2023.03.08 |
| 망원동 망리단길 상가[REIKIS Mangwon Commercial Building] - Studio Stuckyi (0) | 2023.01.04 |