2024. 9. 6. 14:43ㆍARCHITECTURE/COMMERCIAL & OFFICES
이 계단식 형태의 건물은 서초역 인근에 위치해 있으며, 도시의 활기와 조화를 이루면서도 주변 건물들과 자연스럽게 어우러지도록 설계되었습니다. 건물 하층부는 벽돌 외장으로 둘러싸여 외부의 소음을 차단하고 상업 공간에 독특한 분위기를 제공합니다.
외부는 견고한 벽돌로 강렬한 인상을 주며, 내부는 가벼운 세라믹 패널과 투명한 유리로 시각적인 대비를 이루어 깊이감을 더합니다.
또한, 각 층에 마련된 소규모 테라스는 북향 일조 규제를 활용해 도심 속 휴식을 제공합니다.
이 건물은 기능성과 미적 가치를 모두 갖춘 혁신적이고 실용적인 공간으로, 새로운 도시 생활 방식을 제안합니다.
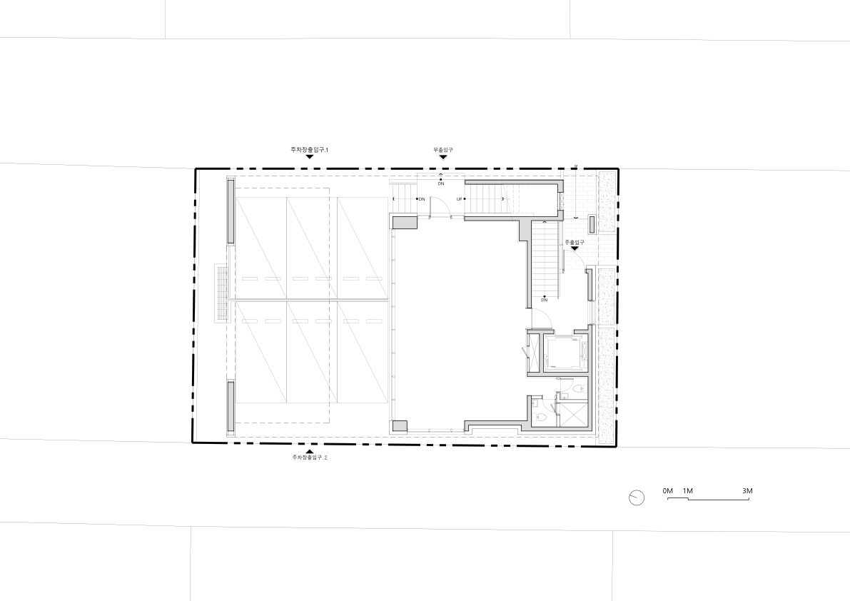
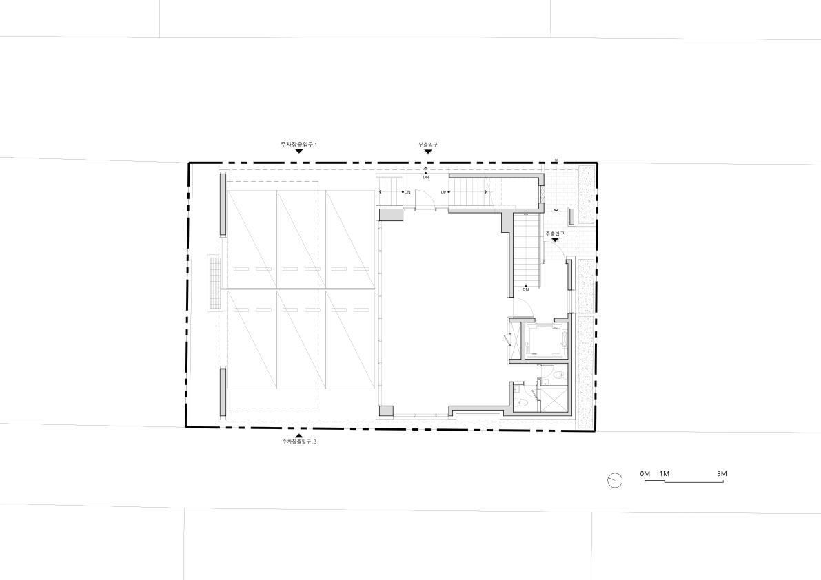
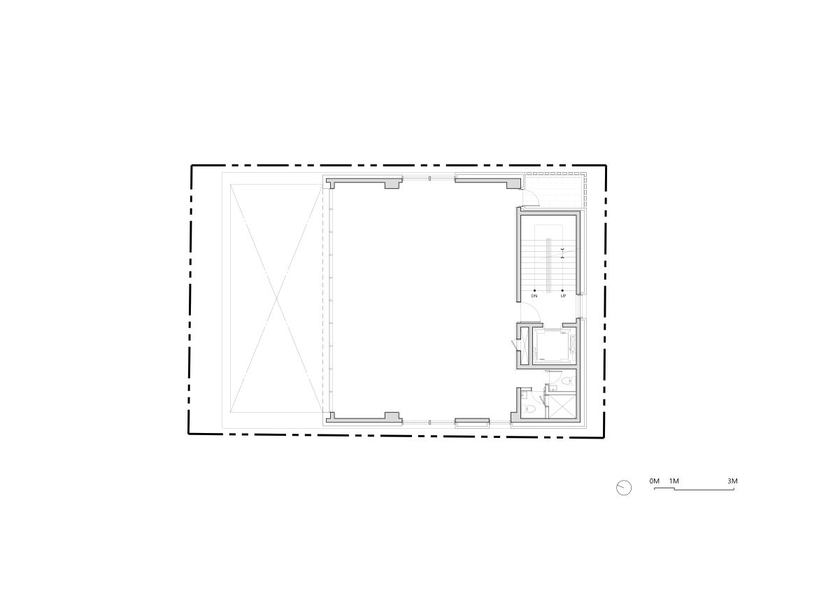
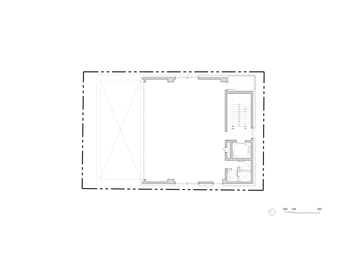
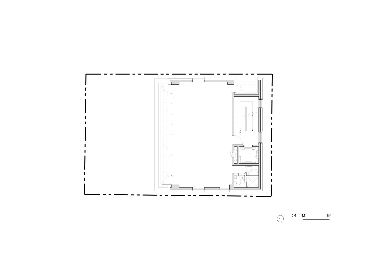
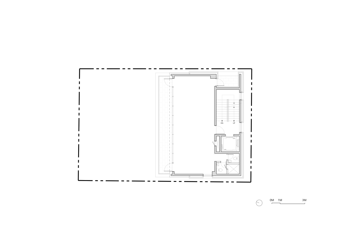
The Seocho-dong Staircase Building is just a step back from the main road near Seocho Station. This location required a design that not only harmonizes with the vibrancy of the city but also blends seamlessly with the older surrounding structures. Additionally, the design had to carefully consider the 4-meter and 6-meter roads flanking the site and the northern sunlight regulations imposed on residential areas.
Brick Facade on the Lower Levels - The brick facade wrapping around the lower levels and the core of the building filters out the bustling external environment while also creating a distinctive atmosphere for the commercial spaces on the first and second floors. This sturdy and solid brick facade delineates the boundary between the building's interior and exterior, emphasizing the building’s volume. It effectively marks the edge of the property without additional fencing, providing convenience for users while establishing a strong presence within the urban context.
Material Contrast - The exterior design of the building leverages the contrast of materials to enhance visual interest. The main volume of the building and the facade enveloping the upper levels emphasize the contrast between the robust exterior and the softer interior. The exterior is clad in heavy, bold brickwork that makes a strong impression. At the same time, the interior surfaces feature light, soft ceramic panels and open, transparent glass, creating a harmonious yet refined feel. This contrast adds depth and texture to the design, offering a rich and varied visual experience.
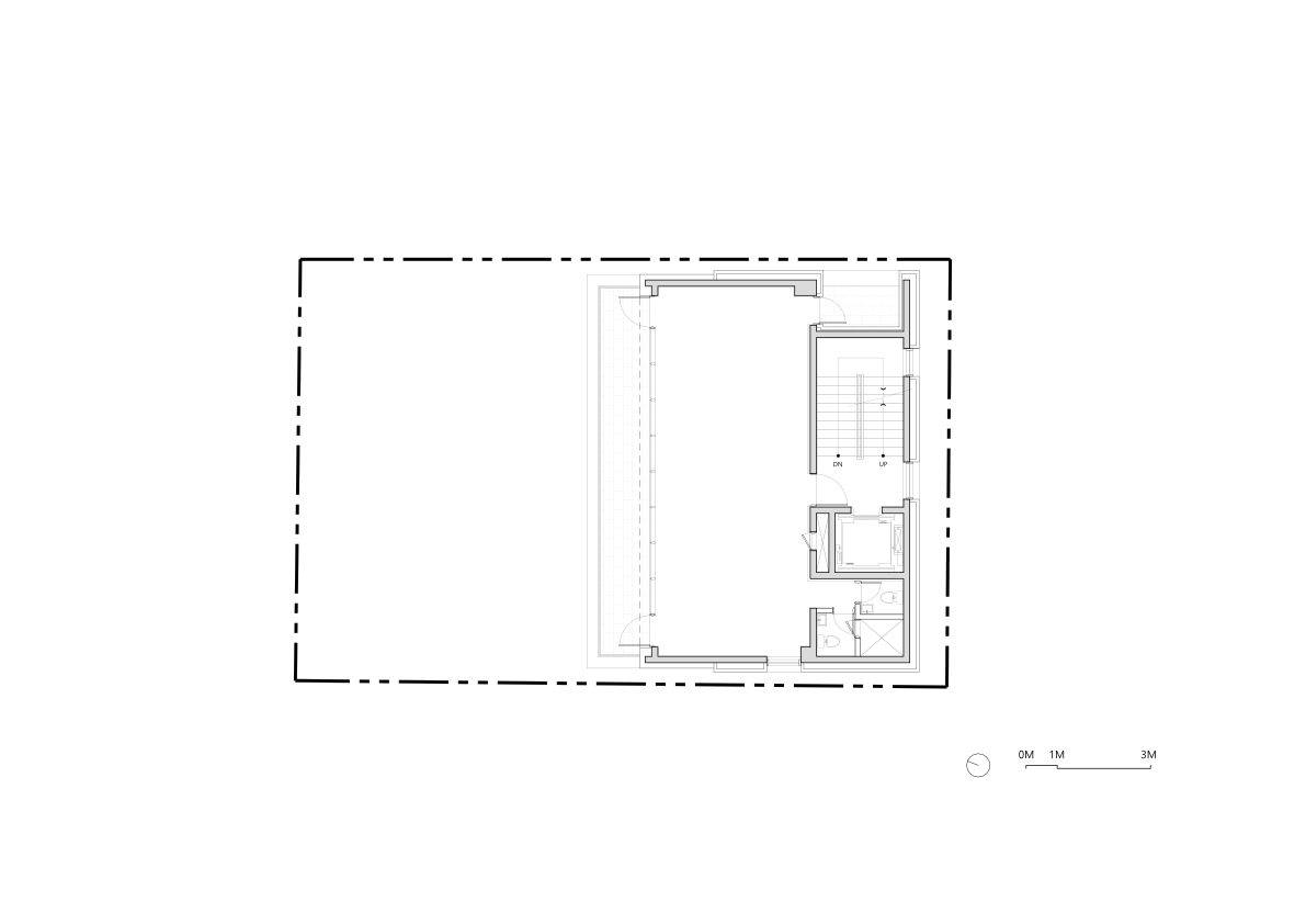
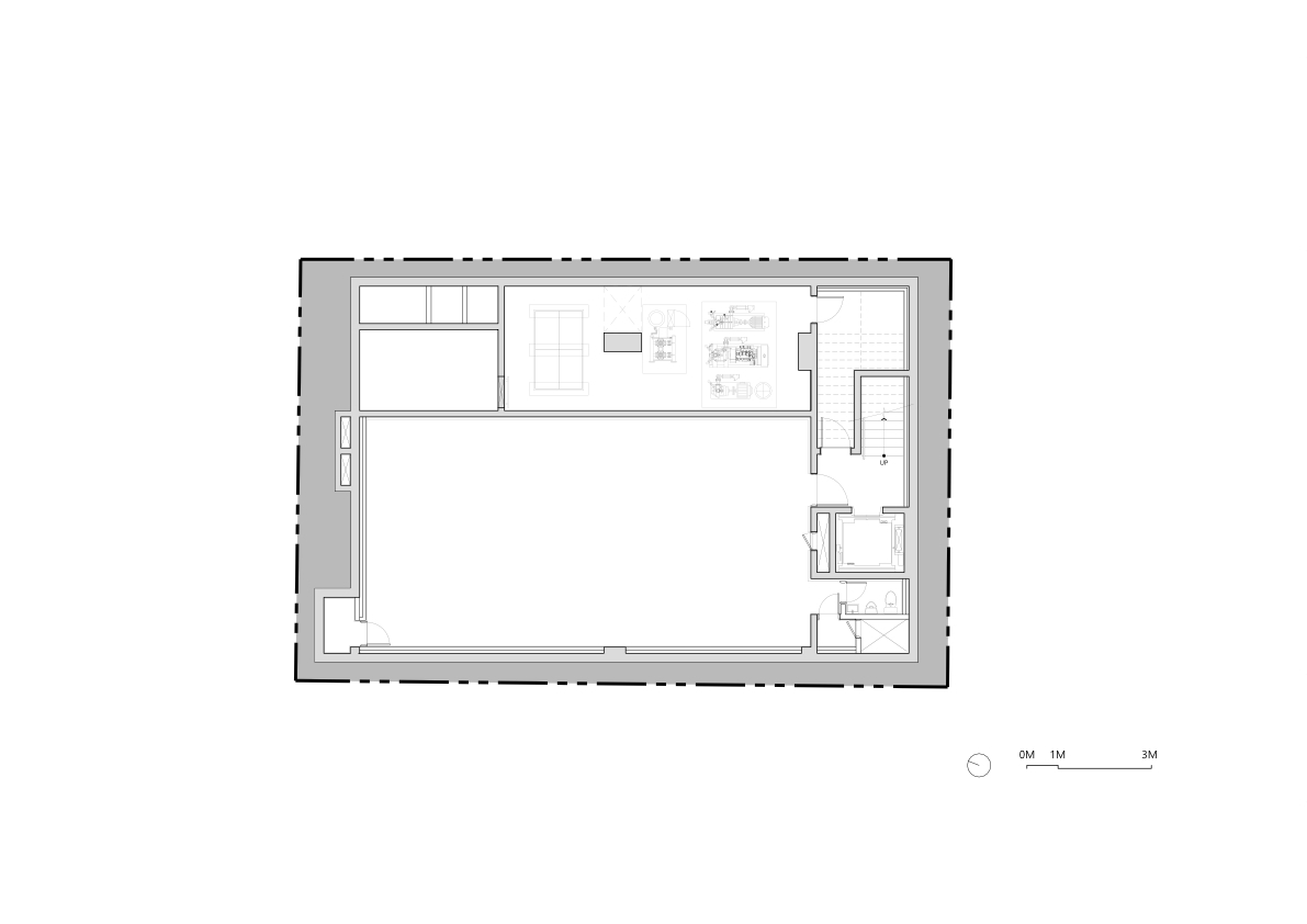
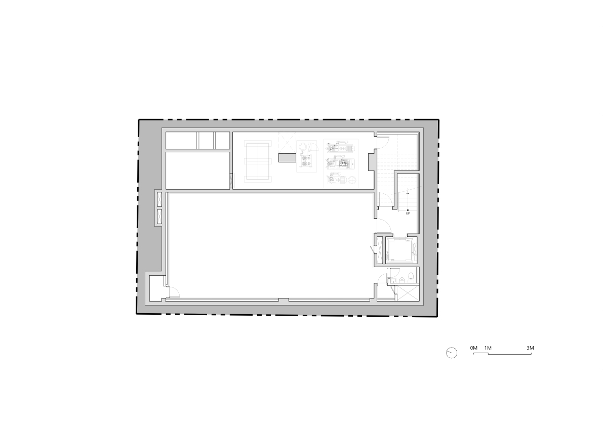
Commercial Space Utilization and Accessibility - The basement, first, and second floors are dedicated to commercial use, focusing on optimizing space utilization and accessibility. A screen wall is installed on the lower levels to provide visual privacy while forming the main access route. This pathway blocks external views while enhancing the vitality of the lower-level commercial spaces with various forms of exterior lighting. These lights highlight the commercial areas at night, making them more accessible and inviting to visitors.
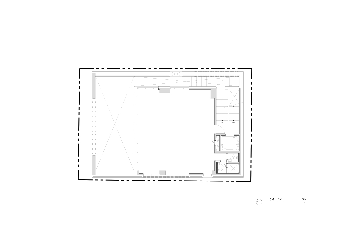
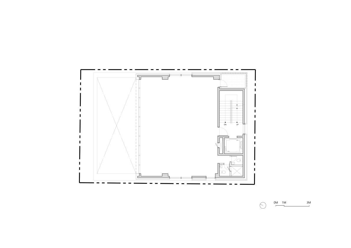
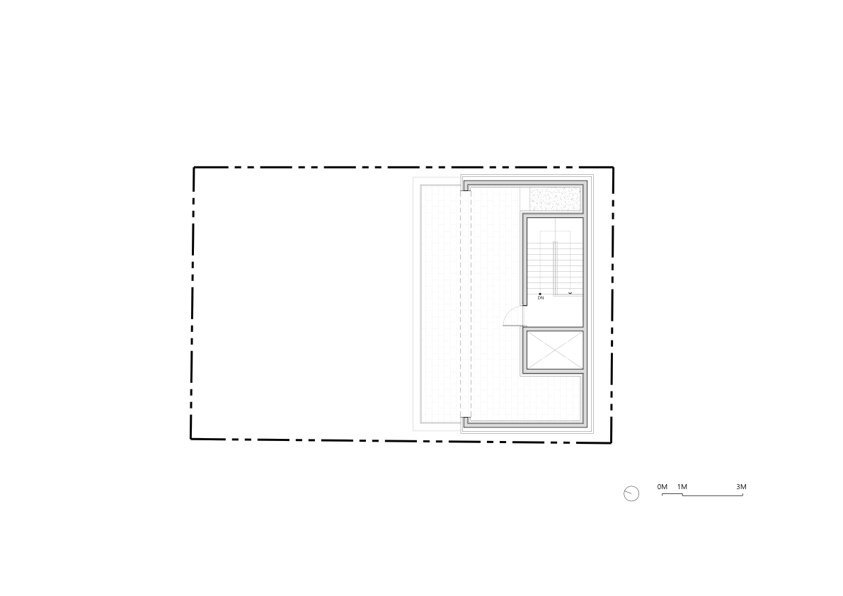
Private Terraces - Taking advantage of the mass setbacks created by the northern sunlight regulations, private outdoor spaces were designed on each floor. Though compact, these spaces allow for various activities, offering building users a unique spatial experience. These terraces, which are not counted as part of the building’s gross floor area, serve as tranquil retreats within the urban environment, enhancing the building’s overall value. Here, users can take a break and enjoy a moment of respite, stepping away from the daily hustle.
The Seocho-dong Staircase Building is a harmonious blend of functionality and aesthetics, creating a space that is both innovative and practical, offering its users a unique and memorable experience. This building transcends the typical mixed-use facility, establishing itself as a space that proposes a new urban lifestyle. Meticulously planned to meet functional requirements while achieving design excellence, the Seocho-dong Staircase Building is a small oasis in the city. It offers a distinctive spatial experience by harmonizing modern sensibilities and traditional materials. This project explores new possibilities in contemporary architecture, enriching urban life.
Seocho Staircase Neighborhood Living Facilities
SEOCHO, SOUTH KOREA
Architects : mlnp architects
Area : 853㎡
Year : 2024
Photographs : Jin Bo Choi



































from archdaily
'ARCHITECTURE > COMMERCIAL & OFFICES' 카테고리의 다른 글
| 낮에는 관리 밤에는 학생들의 무대가 되는 공간[Samian Dormitory Office Building] - Ashari Architects (0) | 2025.10.24 |
|---|---|
| 성수 섬유의류회사 사옥[W‐Mission Headquarters] - Behet Bondzio Lin Architekten (0) | 2024.06.18 |
| 밤낮으로 운영되는 벽돌 아치 식당[DAWN to DUSK Restaurant] - TOUCH Architect (0) | 2024.04.08 |
| 테라코타 벽돌과 민트색 벽의 조화를 가진 카페[Cafe good & goody] - design by 83 (0) | 2023.05.30 |
| 지붕 아래의 시장 타이난마켓[Tainan Market] - MVRDV (0) | 2023.03.08 |