2023. 6. 13. 13:11ㆍARCHITECTURE/RESIDENTIAL
Oostenburg is one of the last urban transformation areas in the center of Amsterdam where former industrial production has made way for inner-city housing over time. In collaboration with OZ, Workshop Architects, and BETA, Space Encounters designed a striking housing complex as part of a large building block that surrounds the historical Werkspoorhal at the heart of the area. The post-industrial site is currently being transformed into a vibrant and high-density residential neighborhood. Between a selection of historical and more recent buildings, a new, mixed urban context is being realized, consisting of buildings that differ in scale and size, and have inviting plinths and variations in the design of their rooflines. The Oostenburg project by Space Encounters was shaped with these parameters in mind to provide high-quality high-density living.
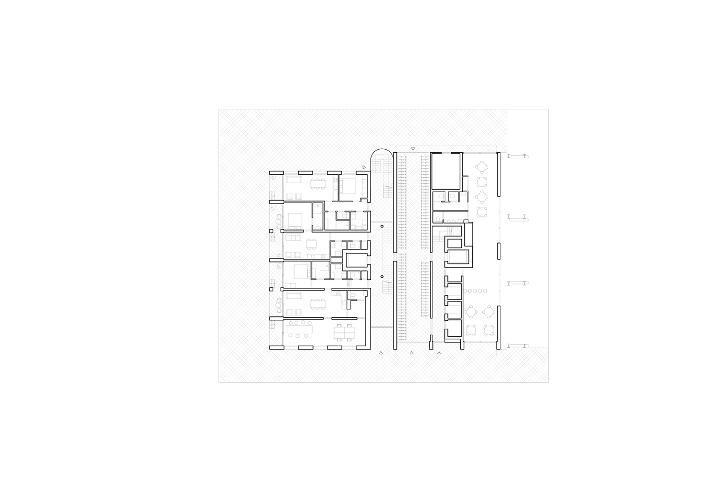
The building consists of three volumes, of which two contain a varied typological mix of dwellings and carry the names: De Gieter and De Slijper. In between these two buildings, a narrow, lifted volume is clamped that accommodates the circulation spaces. This volume is wrapped in a transparent metal net- structure that allows for visual connections to the surroundings and has a light and airy appearance in-between the two housing blocks. The volumes and plinth are materialized with a rich material palette of white tiles, blue fences, and coarse-grained, green-grey concrete elements that are rough on the outside and smooth on the inside. Moreover, the dwellings on the ground floor have a generous ceiling height and a floor that is slightly elevated from the street level, providing them with an outdoor transition space in the densely built neighborhood.
The street-facing facade of De Gieter has a solid grid facade containing three bays of windows, which, in an abstract way, echoes typical Amsterdam canal houses. In contrast, the side facade is open and transparent and contains the private outdoor spaces of the dwellings. The roofline shape of this facade hints at the shed roofs of the former industrial warehouses on the terrain. Further, facade enrichments of De Gieter come from the rough, tactile outer surfaces of the elements. This concrete moonscape engages in a striking play with both rain and sunshine.
The street-facing facade of De Slijper has a strong horizontality that contrasts with the adjacent Werkspoorhal. The bright white tiles with blue joints and fences endow the building with a joyful appearance. The green patio in the center of the project connects to continuous green outside spaces that are flanked by an active plinth consisting of commercial spaces, atelier dwellings, and the entrance lobby that is accessed through large doors. The building is crowned with a collective roof garden that provides all residents with additional outside spaces and magnificent views over the city.
Oostenburg는 암스테르담 중심부에 있는 최후의 도시 개발 지역 중 하나로, 과거의 산업 생산물이 시간이 지나며 도심 주거지로 변화하였습니다. Space Encounters는 OZ, Workshop Architects, BETA와 협력하여 이 지역의 핵심인 역사적인 Werkspoorhal을 둘러싼 거대한 건물 블록의 일부로서 독특한 주거 단지를 설계했습니다. 이 사후 산업 현장은 현재 활기찬 밀집 주거 동네로 변모하고 있습니다. 역사적인 건물과 최근 건물 사이에서 다양한 규모와 크기의 건물들이 조화롭게 배치되어 새롭고 혼합된 도시적 맥락이 실현되고 있으며, 건물의 밑거름이 환영하는 특징과 지붕 디자인의 변화를 갖추고 있습니다. Space Encounters의 Oostenburg 프로젝트는 이러한 맥락을 고려하여 고품질 밀집 주거를 제공하기 위해 구성되었습니다.
건물은 세 개의 매스로 구성되어 있으며, 그 중 두 개는 다양한 유형의 주거 공간을 포함하고 있으며 "De Gieter"와 "De Slijper"라는 이름을 가지고 있습니다. 이 두 건물 사이에는 순환 공간이 배치된 좁고 높은 매스 끼워져 있습니다. 이 매스는 주변 환경과 시각적으로 연결할 수 있는 투명한 금속 그물 구조로 둘러싸여 있으며, 두 주거 블록 사이에서 가벼우면서도 통풍이 잘 되는 외관을 갖고 있습니다. 매스와 받침은 풍부한 소재 팔레트로 구성되어 있으며, 흰색 타일, 파란색 울타리, 거친 표면의 녹색-회색 콘크리트 요소로 구현되었습니다. 이 요소들은 외부는 거칠지만 내부는 매끄럽게 처리되었습니다. 게다가, 1층의 주거 공간은 넉넉한 천장 높이와 거리 수준에서 약간 높아진 바닥을 갖추고 있어 주변에 밀집된 동네에서 실외 공간으로의 전환 공간을 제공합니다.
"De Gieter"의 도로를 향한 파사드는 전형적인 암스테르담 운하 주택을 추상적으로 반영한 세 개의 창을 포함한 견고한 격자 파사드를 갖고 있습니다. 반면, 측면 파사드는 개방적이고 투명하며 주거 공간의 개인적인 실외 공간을 포함하고 있습니다. 이 파사드의 지붕 모양은 이 전 산업 창고 지역의 창고 지붕을 연상시킵니다. 또한, "De Gieter"의 파사드는 요소의 거친 촉감 있는 외부 표면으로부터 파사드의 풍부함을 얻습니다. 이 콘크리트 달의 풍경은 비와 햇빛과 화려한 조화를 이루며 특징적인 연출을 합니다.
"De Slijper"의 도로를 향한 파사드는 인접한 Werkspoorhal과 대조적인 강한 수평성을 갖고 있습니다. 밝은 흰색 타일과 파란색 이음새와 울타리는 건물에 기쁨을 주는 외관을 부여합니다. 프로젝트의 중앙에 위치한 녹색 마당은 상업 공간, 아틀리에 주택, 대형 출입문을 통해 접근하는 입구 로비로 구성된 활발한 밑거름에 의해 둘러싸인 연속적인 녹색 실외 공간에 연결됩니다. 건물은 모든 주민들에게 추가적인 실외 공간과 도시 전망을 제공하는 공동 옥상 정원으로 꾸며져 있습니다.
Oostenburg Housing Complex
AMSTERDAM, THE NETHERLANDS
Architects : Space Encounters
Area : 3600㎡
Year : 2023
Photographs : Marcel van der Burg























from archdaily