2024. 6. 21. 11:13ㆍARCHITECTURE/RESIDENTIAL
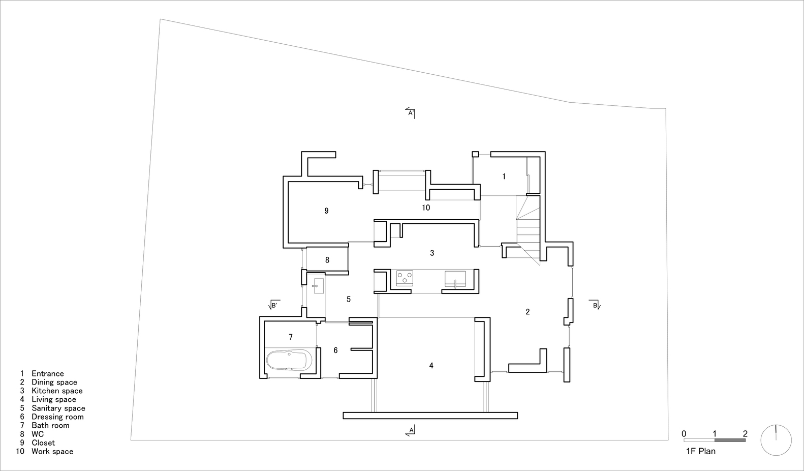
고사이 시즈오카 현에 있는 이 집은 각 공간이 작지만 부분적으로 연결되어 있어
가족이 공간을 상상하고 느낄 수 있게 설계되었습니다.
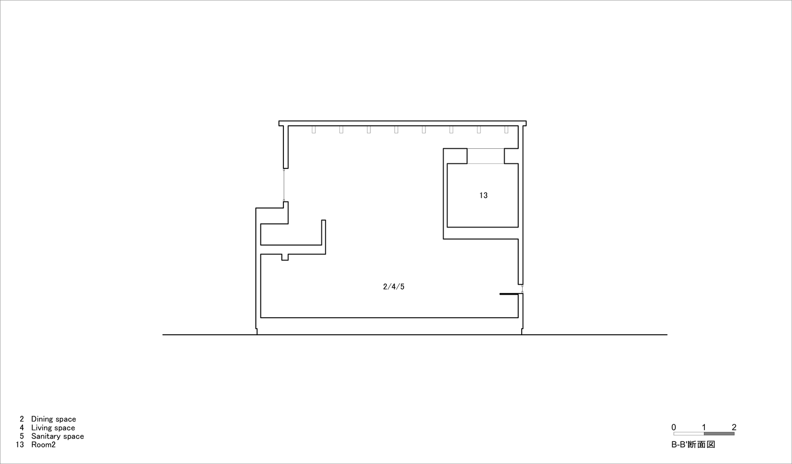
1층에는 거실, 식당, 주방, 욕실, 작업 공간이 있고 2층에는 침실과 두 개의 아이 방이 있으며,
층간의 어긋남과 빛의 변화로 깊이감을 더했습니다.
지붕과 외피로 감싸진 볼륨들은 이동하면서 보였다 사라지며 집 전체의 공간을 느끼게 합니다.
A house for a couple and their two kids in a neighborhood in Kosai, Shizuoka prefecture. The design was driven by a desire to live in a house where each space is small but partially interconnected so residents can sense and imagine the space ahead. The clients also expressed that they did not want to live in a box but in a pitched roof house that could go with a wood carved bear. They preferred a facade that opens onto the street side, and an enclosed but central kitchen where the presence of the whole family can be felt. They also wanted to be able to circulate around the whole house.
Based on these requests, we designed misalignments in the interior that give dimension to the space and also took advantage of the changes in light throughout the day to create a greater sense of depth. The rooms were conceived as volumes that were stacked and shifted—misalignments are created between the first and second floor volumes, a gap is left between the two, and the dining room protrudes on the exterior facade.
By covering these volumes with a roof and enclosing it with an exterior skin, more gaps emerge between the rooms and the roof, as well as between the rooms and the exterior. As you move, the gaps and the volumes flicker between visible and hidden.
Each space is small but has apertures that connect it to other spaces, letting residents perceive the full space of the house, even when not everything is visible. The misalignments create protrusions in the walls that catch light differently depending on the season and time of day. We hope that the resulting experience of the space is never singular and ever-changing.
The organization of the home puts the LDK (living, dining, and kitchen area), bathroom, and workspace on the first floor. The dining and living spaces are double-height, and the second floor has a bedroom and two kids’ rooms. The second floor can be perceived from the first, and the transitioning light on the underside of the roof can be sensed from inside the second-floor rooms.
House in Kosai
KOSAI, SHIZUOKA, JAPAN
Architects : FujiwaraMuro Architects
Area : 102㎡
Year : 2022
Photographs : Toshiyuki Yano
























from archdaily
'ARCHITECTURE > RESIDENTIAL' 카테고리의 다른 글
| 계곡과 마당을 끌어들인 주택[House Valley] - Soar Design Studio + Ray Architects (5) | 2024.09.27 |
|---|---|
| 서랍처럼 돌출된 발코니를 가진 주택[Drawer Balcony House] - Naf Architect & Design (0) | 2024.06.24 |
| 타일 외장의 테라스 주택[The Garden Room] - Objekt Architecten (0) | 2024.06.17 |
| 마드리드 4개의 넓은 안뜰 주택[SFJ6 Building] - MARMOLBRAVO + MADhel (0) | 2023.11.24 |
| 밀라노 다양한 안뜰을 가진 공동주거[Pichi 12 Housing] - Park Associati (1) | 2023.11.17 |