2024. 9. 27. 15:49ㆍARCHITECTURE/RESIDENTIAL
자연과 조화를 이루는 건축 디자인: 계곡과 전통 중정의 결합
이 프로젝트는 자연과의 조화를 강조한 새로운 건축적 접근을 시도한 사례입니다. 기존 대만의 전형적인 주택 형태를 탈피해, 해체주의 건축 기법을 적용하여 자연과 더 긴밀하게 연결된 주거 공간을 설계했습니다. 그 결과, 건축물은 전통적인 구조를 분해하고, 자연 요소를 끌어들이는 혁신적인 공간이 탄생했습니다.
자연을 품은 구조
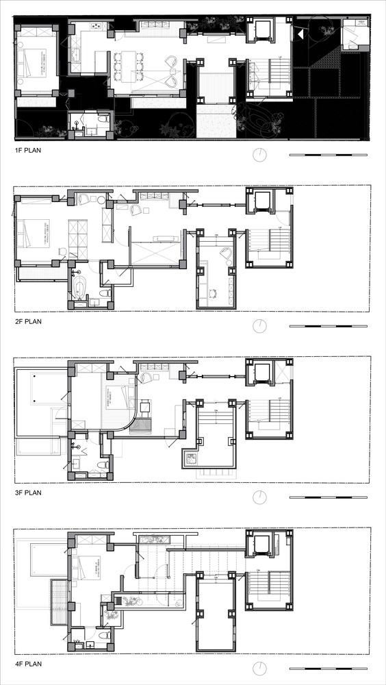
이 건축물은 하나의 긴 건물이 아니라 다섯 개의 불규칙하게 배치된 볼륨으로 구성되어 있습니다. 각 건물 사이의 틈을 통해 자연광과 바람이 집 내부로 흘러들어오며, 다양한 높이와 층이 자연스럽게 실내외를 연결해주죠. 이러한 설계는 계곡의 이미지와 **대만 전통 중정(마당)**의 개념을 결합해 자연스럽게 바람과 햇빛을 집 안으로 끌어들여 쾌적한 미기후를 형성합니다.
자연과 함께하는 삶의 방식
기존 대만의 긴 형태 주택은 전면과 후면에만 창문이 있어 외부와 단절된 느낌을 줍니다. 하지만 이번 디자인은 수평 및 수직적 공간 배치를 통해 집 안 곳곳에서 자연을 느낄 수 있는 새로운 형태를 제안합니다. 건물 사이의 틈과 다양한 층이 외부의 자연 환경을 실내로 끌어들이며, 마치 집 안에서도 계곡 속에 있는 듯한 감각을 경험하게 합니다.
기후에 최적화된 설계
이 집은 특히 차가운 북동풍과 습도가 높은 기후에 대응할 수 있도록 설계되었습니다. 북동풍이 불어오는 쪽에 첫 번째 건물을 배치하고, 주거 공간은 뒤쪽으로 밀어내어 차가운 바람과 습기를 최소화했습니다. 반면, 따뜻한 남서풍은 집 안으로 자연스럽게 유입되도록 구조를 설계해 쾌적한 실내 환경을 조성합니다. 또한, 층별로 심어진 나무들은 각기 다른 자연의 색채를 더해 주거 공간을 더욱 풍성하게 만들어 줍니다.
새롭고 다양한 공간 활용
이 건축 디자인의 또 다른 매력은 공간의 유연성입니다. 각각의 건물은 서로 다른 용도로 활용될 수 있는 독립적인 공간이지만, 동시에 자연스럽게 연결되어 다양한 생활 방식을 수용합니다. 예를 들어, 2층과 3층에는 차를 마실 수 있는 공간, 서재, 식사 공간, 창가의 독서 공간 등이 배치되어 있으며, 개방성과 독립성을 동시에 누릴 수 있습니다.
이 프로젝트는 자연과의 조화를 중심으로 한 새로운 주거 형태의 가능성을 제시합니다. 전통적인 건축 형태에서 벗어나 해체주의적 접근을 통해 자연 요소를 공간 속에 녹여내고, 기후와 환경에 적응한 설계로 쾌적한 생활 환경을 제공합니다. 이러한 시도는 자연과 건축의 경계를 허물고, 현대적인 삶 속에서 자연을 더 깊이 경험할 수 있는 기회를 제공합니다.
이 디자인이 제공하는 새로운 건축적 경험은, 집이라는 공간이 단순한 거주지를 넘어 자연과 공존하는 삶의 터전이 될 수 있음을 보여줍니다.
The design deconstructs architecture to integrate with nature. Long street houses are transformed into five staggered volumes with gaps between them. Horizontal and vertical planes formulate floors of different levels, allowing for natural elements to get in. Imagery of valleys is combined with the traditional Taiwanese courtyard, forming the architecture that adapts to wind and sunlight.
The key points of our design are as follows:
1.Utilizing deconstructive techniques to respond to natural milieu and create favorable microclimates
2.Imagery of valleys combined with traditional courtyard, creating a harmony of architecture in nature
3.In spaces enveloped by nature, one can fully experience the natural elements in the house
The key points of our design are as follows:
Utilizing deconstructive techniques to respond to natural milieu and create favorable microclimates
Imagery of valleys combined with traditional courtyard, creating a harmony of architecture in nature
In spaces enveloped by nature, one can fully experience the nThe project is situated among the common standalone buildings in Taiwan: on a long and narrow site with windows on the front and back only, and closely attached to the adjacent buildings, resulting in its disconnection from the external environment. Given the cold and humid northeast wind it faces, the design mitigates the climatic and physical disadvantages for a comfortable living.atural elements in the house
The design attempts to propose new solutions for adjacent standalone buildings through "deconstruction," reversing the traditional layout of living spaces placed at both ends of the house. By inserting gaps and different levels into nature and breaking up the concrete boxes with semi-outdoor spaces, it creates a new urban residential typology and expands the possibility for residents to connect with nature.
In response to the climate and surrounding physical environment, the standalone building is transformed into five unaligned structures. The vertical circulation is placed in the first building facing the northeast wind, while the living spaces are pushed backward, reducing the adverse effects of cold wind and humidity. The height of the buildings on the southwest side is reduced to receive the southwest wind. By narrowing the wind passage and accelerating wind speed, it can penetrate through the courtyard and follow the buildings and trees upwards, or enter the interior through gaps between the buildings. Thus it creates a favorable indoor microclimate and a comfortable experience. One can fully experience the outdoor nature even staying indoors.
The Eastern style of garden that the scenery changes as one moves. By merging the imagery of valleys with the traditional concept of a courtyard, the plane receiving wind and human activities is altered vertically. The gradually receding balconies become valleys for wind, vegetation, and habitats including humans. Indoors, the voids echo the verticality of the valley, allowing for the senses to have a visual connection with nature.
On the plans, recession and excavation create permeable spaces, while nature simultaneously infiltrates indoors through horizontal and vertical dimensions. This creates a new relationship between architecture and nature, allowing for perspectives from above, below, and at eye level to redefine the living boundaries between indoor and outdoor. The techniques of deconstruction are for the adaptation to the conditions of the site and to reshape the space for a multi-generational lifestyle.
In deconstructed home architecture, the space is defined by structures, gaps, and outdoor elements to create distances and boundaries. Users can navigate through the varied spaces and corners generated by the building's unaligned layers to develop different usage and scenarios. This creates spaces that are conducive for gatherings or by oneself, characterized by a state of being both connected and detached, breaking away from conventional ways of housing and living. The design attempts to integrate abstract sensibility and nature into the rational composition of architecture.
Service functions are predominantly placed in the 1st and 4th buildings, while the 2nd and 3rd buildings allocate spaces such as tearoom, study, dining area, and reading desks by the windows across different floors. This weaves the living spaces amidst the service areas, achieving a balanced utilization of the elongated space. The bedrooms located in the end building can enjoy the comfortable southwest wind privately with an internal valley view. Various trees are planted on the balconies of different levels, introducing different natural color variations reminiscent of valleys and elucidating the natural flow that arises from the differing heights both indoors and outdoors.
House Valley
TAICHUNG, TAIWAN
Architects : Ray Architects, Soar Design Studio
Area : 338㎡
Year : 2024
Photographs : Hey! Cheese































from archdaily
'ARCHITECTURE > RESIDENTIAL' 카테고리의 다른 글
| 산티아고 경사지 주택[Sloping House] - Claudio Santander + María Ines Buzzoni (1) | 2024.10.25 |
|---|---|
| 가족 간 균형과 독립을 위한 십자형 보이드 주거설계[Kumagaya House] - CHOP+ARCHI (3) | 2024.10.08 |
| 서랍처럼 돌출된 발코니를 가진 주택[Drawer Balcony House] - Naf Architect & Design (0) | 2024.06.24 |
| 각 공간들이 연결된 아늑한 2층 목조주택[House in Kosai] - FujiwaraMuro Architects (2) | 2024.06.21 |
| 타일 외장의 테라스 주택[The Garden Room] - Objekt Architecten (0) | 2024.06.17 |