2025. 2. 25. 14:58ㆍARCHITECTURE/RESIDENTIAL
기존 주택을 대체하는 새로운 건축 디자인
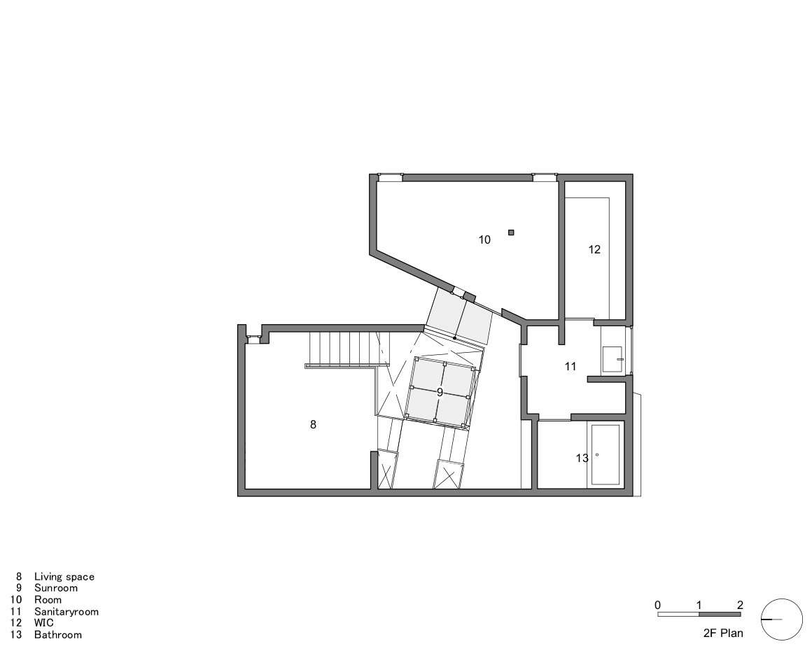
이 프로젝트는 조용한 주거 지역에 위치한 부지에서, 건축주의 가족이 오랫동안 거주했던 기존 주택을 대체하는 새로운 건물을 설계하는 것이 핵심 목표였습니다. 전체적인 구성은 건물을 두 개의 볼륨으로 나누어 LDK(Living, Dining, Kitchen) 공간과 개별적인 프라이빗 공간을 분리하여 배치하였습니다.
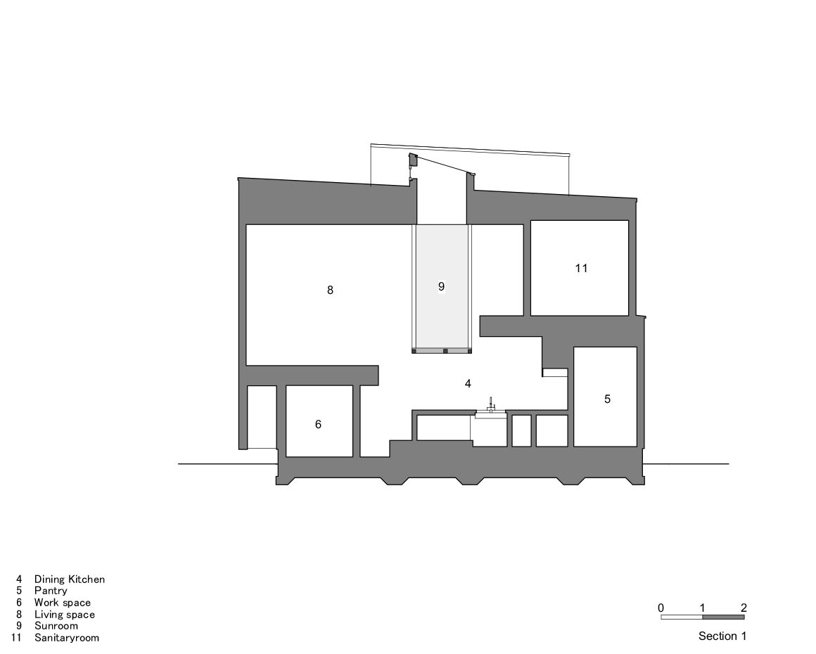
특히, 주요 공간은 단 차이를 활용한 스킵 플로어(Skip Floor) 방식으로 설계되어 수직적 개방감을 극대화했습니다. 이를 통해 단순한 평면적 연결뿐만 아니라 단면에서도 공간이 유기적으로 소통할 수 있도록 계획하였으며, 거실과 주방에서 가족 간 자연스러운 교류가 이루어지도록 하였습니다.
공중에 떠 있는 선룸(Sunroom)의 개념
건축주는 LDK 공간 내에 선룸을 포함하기를 원했으며, 이에 따라 최적의 형태를 연구했습니다. 건물의 전체 볼륨을 줄이고 비용을 절감하는 동시에, 선룸을 더욱 매력적으로 보이게 하려면 어떤 방식이 가장 적절할지 고민한 끝에 ‘공중에 떠 있는 선룸’이라는 개념을 도입하였습니다.
건물 중앙에 배치된 이 선룸은 상부에서 들어오는 채광을 유리면에 반사·확산시켜 마치 빛나는 공간처럼 연출됩니다. 또한 반사된 빛이 예상치 못한 각도의 벽과 바닥에 퍼지면서 실내 곳곳에 색다른 분위기를 연출합니다. 아래에서 바라본 선룸은 공중에 식물이 떠 있는 듯한 독특한 시각적 효과를 제공하여 공간의 다채로운 활용 가능성을 확장합니다.
밤이 되면 빛나는 건축적 요소
야간에는 유리로 된 선룸이 마치 하나의 등불처럼 집 전체를 은은하게 밝히는 역할을 합니다. 철재와 콘크리트로 마감된 공간 요소들은 시간이 지남에 따라 다양한 표정을 드러내며, 이러한 변화 자체가 이 집에서 경험할 수 있는 또 하나의 즐거움이 됩니다.
이 건축 공간은 단순한 거주 공간을 넘어, 가족들이 다양한 방식으로 경험하고 탐색할 수 있는 독창적인 분위기를 제공합니다. 일상의 순간들이 특별하게 느껴질 수 있도록, 집 자체가 가족과 함께 변화하고 성장하는 공간이 될 것입니다.
The site is in a quiet residential area where the client's family's old house originally stood, and we were asked to design a new building to replace the old one. The overall composition splits the building into two volumes, with an LDK (living, dining, and kitchen area) and private rooms arranged separately. The main space is designed with split floors to increase the sense of spaciousness, creating connections not only in the plane but also in the cross-section so that one can communicate with others in the dining room and kitchen.
In response to the client's request for a sunroom in the LDK, we studied its shape. As we considered how to reduce the volume of the building, cut costs, make the sunroom look more inviting, and consider how people might spend time there, we decided to explore the idea of floating it in the air.
The suspended sunroom, located in the center of the building, reflects and diffuses the light from the top light above the sunroom onto the glass, making the entire sunroom glow, with the reflected light illuminating unpredicted areas on the various floors and walls throughout the room. The plantings in the sunroom can be viewed from below to enjoy the unusual appearance of floating in mid-air.
At night, the entire glass box of the sunroom glows like a lamp, illuminating the entire space. The steel and concrete finishes are revealed in various places, and one can appreciate how their expressions change over time. This is one of the things to be enjoyed in this house. The space we created has a unique atmosphere, and family members can discover various ways of viewing the house and spending time there in their daily lives.
Sunroom House in Tsukaguchi
OSAKA, JAPAN
Architects : FujiwaraMuro Architects
Area : 105㎡
Year : 2024
Photographs : Katsuya. Taira (studioREM)
























from archdaily
'ARCHITECTURE > RESIDENTIAL' 카테고리의 다른 글
| 파티오를 중심으로 소통하는 기숙사[La Roca Student Housing] - A6A (1) | 2025.04.28 |
|---|---|
| 숲 속 빛의 공간을 만든 주택[Dinh House] - Story Architecture (0) | 2025.04.09 |
| 프랑스 주변 경관을 고려한 공동주택 단지[Au Loin Residence] - GGR architectes (0) | 2024.11.15 |
| 오슬로 도심 속 파스텔 톤 타운하우스 [Sagene Wood Trade] - Reiulf Ramstad Arkitekter (0) | 2024.11.14 |
| 젊은이와 노인을 위한 네덜란드 임대 주택[Plot 6 Social Housing] - HOH Architecten (1) | 2024.11.01 |